ไปให้สุดแล้วหยุดที่ความ "มินิมอล" เทรนด์การแต่งบ้านสุดฮิตที่ยังคงรับความนิยมอยู่ในขณะนี้ เสน่ห์อยู่ที่ความเรียบง่ายแต่มากด้วยประโยชน์ใช้สอย โดยวันนี้เราจะพาไปเปรียบเทียบ ทาวน์โฮมสไตล์มินิมอล 2 โครงการในโซนบางนา-เทพารักษ์ อารมณ์ขาวๆ คลีนๆ ที่ดูแล้วสะอาดตา ในระคาสบายกระเป๋า ที่ชาว Minimalist เห็นแล้วจะต้องชอบ ไปดูกันว่าแต่ละโครงการเค้ามีทีเด็ดอย่างไร
เอเรน บางนา-วงแหวนฯ | เดอะ มิราเคิล เทพารักษ์ |
![]() | ![]() |
| ราคาเริ่มต้น : 4.39 ล้านบาท เจ้าของโครงการ : บริษัท อารียา พรอพเพอร์ตี้ จำกัด (มหาชน) ประเภทบ้าน : ทาวน์โฮม 2 ชั้น พื้นที่โครงการ : - ไร่ พื้นที่ใช้สอย : 145 ตร.ม. จำนวนบ้าน : 25หลัง ทำเล : ติด Mega บางนา | ราคาเริ่มต้น : 2.79 ล้านบาท เจ้าของโครงการ : บริษัท อัคร บ้านและที่ดิน จำกัด ประเภทบ้าน : ทาวน์โฮม 2 ช้้น พื้นที่โครงการ : 12-2-47 ไร่ พื้นที่ใช้สอย : 125 - 145 ตร.ม. จำนวนบ้าน : 135 หลัง ทำเล : เทพารักษ์ |
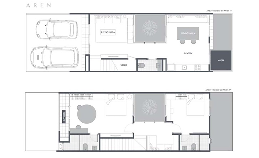
1. เอเรน บางนา - วงแหวนฯ (Aren Bangna - Wongwaen)
AREN บางนา-วงแหวนฯ ทาวน์โฮม 2 ชั้น สไตล์ Modern Minimal ที่มาพร้อมความเป็นส่วนตัวขั้นสุดกับจำนวนบ้านพักอาศัยเพียง 25 ยูนิตเท่านั้น ถูกออกแบบมาภายใต้คอนเซปต์ "MADLY MINIMAL" ตอบโจทย์คนที่หลงใหลความมินิมอลแบบสุดทาง ตัวบ้านดีไซน์ออกมาในสไตล์ Modern Minimal ในโทนสีขาวทั้งหลังดูเรียบง่ายดูสบายตา แต่งด้วยกระจกบ้านใหญ่เพิ่มความสว่างให้พื้นที่ในบ้านด้วยแสงจากธรรมชาติ



รูปแบบบ้าน : มีเพียง 1 แบบเท่านั้น ขนาดพื้นที่ใช้สอยขนาด 145 ตร.ม. 2 ห้องนอน 3 ห้องน้ำ 2 ที่จอดรถ

7 จุดเด่นที่พิเศษไม่เหมือนใคร
1. Private Courtyard : สวนส่วนตัวใจกลางตัวบ้าน ที่ไม่ว่าจะอยู่ในพื้นที่ส่วนไหนในบ้านก็สามารถมองเห็นด้

2. Floor to Celling สูงถึง 3 เมตร : เพิ่มบรรยากาศโปร่งโล่งสบายด้วยความสูงจากพื้นถึงเพดานสูเป็นพิเศษ

3. Passive Airflow : ระบบไหลเวียนอากาศ สามารถทำงานได้โดยไม่ต้องใช้พลังงานไฟฟ้า ติดตั้งไว้ที่ประตูช่วยให้อากาศภายในบ้านหมุนเวียนได้ดีแม้ถึงแม้ไม่ได้เปิดประตู
4. Double Master Bedroom : ห้องนอนขนาดใหญ่ 2 ห้อง พร้อมห้องน้ำในตัว
4. Double Master Bedroom : ห้องนอนขนาดใหญ่ 2 ห้อง พร้อมห้องน้ำในตัว


5. EV Charger : รองรับรถยนต์ไฟฟ้าเพื่อตอบสนองเทคโนโลยีประหยัดพลังงาน
6. Zero waste system : ติดตั้งถังขยะไว้ให้ทุกหลัง บริเวณหลังบ้าน สะดวกต่อการคัดแยกและยังสามารถนำไปรีไซเคิลได้

7. Parking : พื้นที่จอดรถหน้ากว้างขนาด 5.7 เมตร รองรับการจอดรถได้ 2 คัน

โครงการ AREN บางนา-วงแหวนฯ อยู่บนทำเลที่จัดว่าดีในย่านบางนา ใกล้ศูนย์การค้าและแหล่งช้อปปิ้ง อย่าง Mega Bangna ,Central Bangna ,Bitec ,Central Village Outlet ห่างจากรถไฟฟ้าสายสุขุมวิท สถานีอุดมสุข เพียง 14 กม. และในอนาคตจะมีรถไฟฟ้าสายสีเหลืองวิ่งจากรัชดามาเชื่อมต่อสายสีเขียวที่สถานีสำโรง เพิ่มความคล่องตัวในการเดินทางสู่ตัวเมือง และใกล้ทางด่วนบางนาตราด เพียง 20 นาทีจากเอกมัย และ 25 นาทีจากทองหล่อ
สอบถามรายละเอียดเพิ่มเติมได้ที่ www.areeya.co.th
2. เดอะ มิราเคิล เทพารักษ์ (The Miracle Theparak)
เดอะ มิราเคิล เทพารักษ์ ทาวน์โฮม 2 ชั้น สีเอิร์ธโทน คลีนๆ ดูเรียบง่ายสบายตา ได้กลิ่นอาย สไตล์ อังกฤษ เบาๆ เน้นความโล่ง โปร่ง สบาย เชื่อมต่อกันอย่างกลมกลืนระหว่างความทันสมัยแบบโมเดิร์น และความเป็นธรรมชาติเรียบง่ายแบบมินิมอล จำนวนยูนิตน้อย เงียบสงบ และเป็นส่วนตัว ผ่านจุดเด่นของโครงการ อาทิ
1. Extra Design : เน้นความโปร่งโล่ง มีขนาดพื้นที่ใช้สอยกว้างขวาง

2. Extra Space : เลือกใชัวัสดุที่มีคุณภาพ พร้อมความแข็งแรงในส่วนของรากฐาน
3. Extra Function : แบ่งพื้นที่ใช้สอยอย่างคุ้มค่า สิ่งอำนวยความสะดวกครบ อาทิ CCTV รอบโครงการ 40 ตัว, ระบบรักษาความปลอดภัย 24 ชม., สวนสาธารณะ, สนามเด็กเล่น และเข้า-ออกโครงการด้วยระบบ Easy Pass มีรูปแบบบ้านพักอาศัยให้เลือก 2 แบบ

Mello : ทาวน์โฮม 2 ชั้น หน้ากว้าง 5.7 เมตร พื้นที่ใช้สอย 125 ตร.ม. เนื้อที่ 19.2 ตร.วา 3 ห้องนอน 3 ห้องน้ำ 2 ที่จอดรถ 1 ห้องอเนกประสงค์

Merry : ทาวน์โฮม 2 ชั้น หน้ากว้าง 5.7 เมตร พื้นที่ใช้สอย 145 ตร.ม. เนื้อที่ 22.1 ตร.วา 4 ห้องนอน 3 ห้องน้ำ 2 ที่จอดรถ 1 ห้องอเนกประสงค์








Extra Location : ตัวโครงการตั้งอยู่ภายในซอยพรสว่างนิเวศน์ ห่างจากถนนเทพารักษ์เพียง 800 เมตร ใกล้ทางด่วนวงแหวนกาญจนาภิเษกบางนา เพียง 5 นาที ใกล้ถนนสายหลัก อาทิ ถนนเส้นหลักเทพารักษ์ เชื่อมต่อถนนแพรกษา, ถนนศรีนครินทร์, ถนนตำหรุ-บางพลี เป็นทำเลที่สะดวกทุกการเดินทาง ใกล้รถไฟฟ้าสายสีเขียว และอีกไม่นานก็จะมีรถไฟฟ้าสายสีเหลือง ใกล้ห้างสรรพสินค้าชั้นนำ บิ๊กซี บางพลี, โลตัส บางพลี และ เมกะ บางนา

สอบถามรายละเอียดเพิ่มเติมได้ที่ www.akralandandhouse.com
ทาวน์โฮมทั้ง 2 โครงการอยู่ในทำเลที่แตกต่างกัน แต่อุดมสมบูรณ์ทั้งคู่ต่างแวดล้อมด้วยตลาด ห้างสรรพสินค้า และทางด่วน สำหรับโครงการ "AREN บางนา-วงแหวนฯ" จะได้เปรียบในเรื่องของดีไซน์ที่ Minimal แบบสุดๆ ยูนิตพักอาศัยน้อย และได้ความเป็นส่วนตัวขั้นสุด พื้นที่ใช้สอยขนาดใหญ่ แต่มีรูปแบบบ้านให้เลือกน้อย สำหรับส่วนกลางยังไม่มีข้อมูลระบุชัดเจน ส่วนของโครงการ "เดอะ มิราเคิล เทพารักษ์" จะได้ความเป็นมินิมอลเบาๆ แต่ยังคงได้ดีไซน์ที่เรียบง่าย คลีนๆ ยูนิตพักอาศัยมากกว่า แต่มีสิ่งอำนวยความสะดวกมาให้ภายในโครงการ กับราคาเริ่มต้นที่ต่ำกว่า 3 ล้านบาท เป็นราคาที่สามารถจับต้องได้ง่ายกว่า
แท็กที่เกี่ยวข้อง
ทาวน์โฮมสไตล์ญี่ปุ่น
ทาวน์โฮมบางนา
ทาวน์โฮมเทพารักษ์
เปรียบเทียบทาวน์โฮม
ทาวน์โฮมสไตล์มินิมอล
เขียนโดย
เช็คราคา.คอม
Property Guru
พูดคุยกับกูรูได้ที่


