แชร์ทริค "แต่งบ้านผู้สูงอายุ" ยังไง? ให้ปลอดภัยและอยู่สบาย
สังคมผู้สูงวัยกำลังจะก้าวเข้ามาแล้ว ว่ากันว่าภายในไม่เกิน 10 ปีต่อจากนี้ ประเทศไทยจะเข้าสู่สังคมผู้สูงอายุเต็มตัว และที่สำคัญประเทศเราจะติดอันดับสังคมผู้สูงอายุในลำดับต้นๆ ของเอเชีย เป็นรองแค่ ญี่ปุ่น และสิงคโปร์ เท่านั้นเอง
เมื่อเป็นแบบนี้ สิ่งที่เราต้องคิดและเตรียมตัวให้พร้อมสำหรับอนาคตอันใกล้ก็คือ "ที่อยู่อาศัย" หรือบ้านที่เรา ว่าควรจะปรับปรุงบ้านอย่างไรให้ "ปลอดภัย" สำหรับผู้สูงวัย เพื่อเป็นการป้องกัน โดยเฉพาะอย่างยิ่งบ้านใครที่มีผู้สูงวัยอยู่ในบ้านควรปรับเปลี่ยนแบบเร่งด่วน เราไปดูกันดีกว่าว่ามีเรื่องอะไรที่เราควรคิดพิจารณากันบ้าง
1. พื้นทางเดินต่างๆ ผิวสัมผัสต้องไม่ทำให้ลื่นง่าย
สำหรับผู้สูงวัยที่อาจหกล้มได้ง่ายๆ เรื่องของพื้นผิวสัมผัส โดยเฉพาะพื้นบ้านที่ใช้เดินไม่ควรทำให้ลื่นล้ม หากผู้ใหญ่หกล้มจะเป็นเรื่องใหญ่มาก การปรับเปลี่ยนไม่ว่าจะเป็นพื้นกระเบื้องหรือพื้นไม้ ควรมีความฝืดของผิวสัมผัส ควรเปลี่ยนมาใช้กระเบื้องแบบที่กันลื่นได้ พื้นไม่ควรขัดมันเพราะจะลื่นมาก ซึ่งปัจจุบันเราสามารถใช้น้ำยาบางชนิดฉีดเพื่อลดความวาวและความลื่นลงได้ สำหรับคนที่ไม่อยากเปลี่ยนกระเบื้องใหม่ภายในบ้านทั้งหมด

2. ห้องนอนผู้สูงอายุ อากาศถ่ายเทสะดวก พื้นต้องเรียบไม่มีจุดให้สะดุด
สำหรับ ห้องนอนผู้สูงอายุ ควรอยู่ชั้นล่าง ไม่ควรให้ผู้สูงอายุขึ้นลงบันไดหลายชั้น เพราะจะเสี่ยงกับการตกบันได และอาจบาดเจ็บสาหัสได้ การออกแบบห้องนอนก็ควรให้มีการระบายอากาศที่ดีไม่อับชื้น ทำให้มีอากาศบริสุทธิ์ จะช่วยเรื่องการหายใจ โดยเฉพาะอย่างยิ่งช่วงตอนเข้านอนตอนกลางคืน ซึ่งเรื่องนี้สามารถช่วยได้ด้วยการติดเครื่องปรับอากาศที่มีระบบกรองฝุ่น ป้องกันเชื้อโรคที่แฝงอยู่ในอากาศ

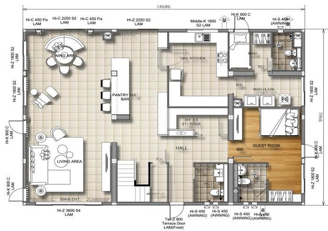
แผนผังห้องนอนผู้สูงวัยชั้นล่าง หลายๆ โครงการมักจะเรียกว่า "Guest Room"
(จากโครงการ Golden-legend-สาทร-กัลปพฤกษ์)
3. เรื่องของ "ห้องน้ำ" สำคัญที่สุด
ห้องน้ำ เป็นห้องที่มีโอกาสเกิดอุบัติเหตุลื่นหกล้มสูงมาก จากสถิติเก่าๆ ผู้สูงอายุมักจะลื่นหกล้มในห้องน้ำ การออกแบบห้องน้ำควรคำนึงถึงความปลอดภัยเป็นหลักใหญ่ใจความสำคัญ
การออกแบบห้องน้ำสำหรับผู้สูงอายุ ควรอยู่ในบริเวณชั้นล่าง มีราวจับสำหรับประคองตัวได้อย่างสะดวกสบาย และควรมีพื้นที่ที่กว้างพอที่จะให้รถเข็นนั่งเข้าไปได้ ประตูทางเข้าก็ควรออกแบบให้เปิดกว้าง พื้นห้องน้ำควรออกแบบให้รถเข็นเข้าไปได้อย่างสะดวก และควรมีผิวสัมผัสที่ไม่เรียบลื่นจนเกินไป

ราวจับสำหรับผู้สูงอายุ และพื้นห้องน้ำระดับเดียว เพื่อป้องกันการเดินสะดุดของผู้สูงอายุ
ขอบคุณภาพจาก โครงการ จิณณ์ เวลบีอิ้ง เคาน์ตี้
4. เครื่องส่งสัญญาณขอความช่วยเหลือ มีไว้อุ่นใจกว่า
เครื่องส่งสัญญาณขอความช่วยเหลือ หรือ Emergency Call Bell ถือเป็นเรื่องจำเป็นสำหรับผู้สูงอายุ ควรติดตั้งไว้ในบริเวณห้องนอน หัวเตียง ในห้องน้ำ หรือแม้กระทั่งห้องนั่งเล่น และควรให้สามารถเชื่อมต่อไปยังกริ่งส่งเสียงเตือนที่ติดตั้งในทุกๆ จุดของบ้าน เพื่อเวลาที่เราไม่ได้อยู่ใกล้ผู้สูงอายุ เราจะสามารถได้ยินเสียงกริ่งเมื่อมีการกดขอความช่วยเหลือได้ทัยท่วงที
โดยปัจจุบันระบบเครื่องส่งสัญญาณขอความช่วยเหลือมีความทันสมัยขึ้นมาก ระบบบางระบบสามารถเชื่อมต่อผ่านอินเตอร์เน็ตความเร็วสูง และสามารถส่งสัญญาณมายังโทรศัพท์มือถือของเราได้ รวมทั้งควรติดตั้งเครื่องตรวจจับไฟไหม้ หรือจับควัน เพราะบางครั้งหากเกิดเหตุเพลิงไหม้จะได้มีการส่งสัญญาณขอความช่วยเหลือได้ทันท่วงที
5. แสงสว่างอัตโนมัติ เพื่อผู้สูงอายุ
สิ่งที่ผู้สูงอายุประสบพบเจอกันทุกคนก็คือ เรื่องของดวงตาที่เริ่มจะฝ้าฟาง ประสิทธิภาพในการมองเห็นก็เริ่มจะถดถอย ทำให้การใช้ชีวิตภายในบ้านมีความยากลำบากขึ้น ความสม่ำเสมอของแสงสว่างภายในบ้านจึงเป็นเรื่องที่สำคัญ
ด้วยความที่ว่าผู้สูงอายุจะมีสายตาที่ตอบรับกับแสงสว่างช้ากว่าคนหนุ่มสาว การปรับสายตาระหว่างพื้นที่สว่างกับพื้นที่มืดจึงไม่ดีเท่าสมัยหนุ่มสาว ดังนั้นภายในบ้านควรมีแสงสว่างที่สม่ำเสมอ ทั้งในระหว่างห้องภายในและภายนอกห้อง ควรมีระดับความสว่างที่ใกล้เคียงกัน เรื่องเหล่านี้เราสามารถปรึกษานักออกแบบที่เชี่ยวชาญได้นะครับ

ไฟรอบเตียงผู้สูงอายุ จำเป็นอย่างมากในช่วงเวลาที่ท่านจะลุกจากเตียงเพื่อไปเข้าห้องน้ำในช่วงกลางคืน
ขอบคุณภาพจาก Elifegear

ระบบไฟส่องสว่างอัตโนมัติ ช่วยอำนวยความสะดวกยามค่ำคืนแก่ผู้สูงอายุเมื่อลุกขึ้นจากเตียง หรือตามสถานที่ต่างๆ ที่ผู้สูงอายุต้องเดินไปในช่วงเวลากลางคืน
ขอบคุณภาพจาก โครงการ จิณณ์ เวลบีอิ้ง เคาน์ตี้
การออกแบบบ้านสำหรับผู้สูงอายุเป็นเรื่องจำเป็นอย่างยิ่ง สำหรับสังคมไทยที่จะเข้าสู่สังคมผู้สูงอายุในอีกไม่กี่ปีนี้ สิ่งที่ควรคิดคำนึง ได้แก่ เรื่องของพื้นผิวสัมผัส ไม่ควรให้ลื่น เรื่องของห้องนอนควรโปร่ง เรื่องของห้องน้ำควรมีความปลอดภัย เรื่องของการติดตั้งสัญญาณขอความช่วยเหลือตามจุดต่างๆ เรื่องของการออกแบบแสงสว่างภายในบ้าน และเรื่องของการเดินเข้าออกนอกบ้าน และในบ้านนั่นเองครับ
เขียนโดย
เช็คราคา.คอม
Property Guru
พูดคุยกับกูรูได้ที่


