รีวิว-เยี่ยมชม โครงการไลฟ์ ปิ่นเกล้า (Life Pinklao)
วันนี้ทีมงาน CheckRaka.com จะพาไปชมโครงการคอนโดมิเนียมสไตล์ญี่ปุ่นในย่านปิ่นเกล้ากันค่ะ อยู่ติดรถไฟฟ้า MRT สายสีน้ำเงินสถานีบางยี่ขัน เพียง 26 เมตรเท่านั้น คอนโดนี้ชื่อว่า ไลฟ์ ปิ่นเกล้า (Life Pinklao) ซึ่งเป็นโครงการที่ร่วมทุนกันระหว่าง เอพี (ไทยแลนด์) และ มิตซูบิชิ เอสเตท กรุ๊ป เป็นคอนโด High Rise มองเห็นวิวสะพานพระราม 8 สร้างเสร็จพร้อมอยู่เรียบร้อยแล้ว เพราะฉะนั้นอย่ารอช้าตามเราไปชมตึกจริงและบรรยากาศจริงของโครงการนี้กันค่ะ ว่าสร้างเสร็จแล้วจะมีหน้าตาสวยงามและน่าอยู่ขนาดไหน ไปชมกันเลยยยย...
ข้อมูลโครงการ
- เจ้าของและผู้พัฒนาโครงการ : บริษัท เอพี (ไทยแลนด์) จำกัด (มหาชน)
- ที่ตั้งโครงการ : ถนนจรัญสนิทวงศ์ แขวงบางบำหรุ เขตบางพลัด กทม.
- อาคารชุดพักอาศัยสูง : คอนโด High-Rise สูง 23 ชั้น 1 อาคาร จำนวน 803 ยูนิต และ 2 ร้านค้า
- ขนาดที่ดินทั้งโครงการ: 4-3-86.9 ไร่
- ลิฟต์ : ลิฟต์โดยสารแบบล็อคชั้น 4 ตัว และลิฟต์บริการ 1 ตัว
- ห้องชุดพักอาศัย:
- 1 Bedroom ขนาด 26 - 30 ตร.ม..
- 1 Bedroom Plus ขนาด 35 ตร.ม.
- 2 Bedrooms ขนาด 50 - 60.05 ตร.ม.
- ที่จอดรถ : ประมาณ 52% ไม่รวมจอดซ้อนคัน
- ราคาเริ่มต้น : 2.49 ล้านบาท (ข้อมูล ณ 22 ม.ค. 61)
- สถานะโครงการ : สร้างแล้วเสร็จพร้อมเข้าอยู่
- วันที่เข้าเยี่ยมชม-รีวิวคอนโด 22 ม.ค. 61
ทำเลที่ตั้งและสภาพแวดล้อมรอบๆ โครงการ
โครงการนี้ตั้งอยู่ในทำเล "ปิ่นเกล้า" ถือเป็นทำเลเก่าแก่ที่มีสถานที่อำนวยความสะดวกกระจายตัวอยู่รอบๆ ในส่วนของห้างสรรพสินค้าก็จะมี เซ็นทรัล ปิ่นเกล้า, เทสโก้ โลตัส, ฟู้ดแลนด์, และเมเจอร์ ที่เป็นสถานที่ยอดฮิตของผู้คนในย่านนี้ และยังมี Community Mall สุดเก๋อย่าง เดอะ เซ้นส์ ปิ่นเกล้า อีกด้วย ในด้านสาธารณสุข โครงการก็ยังอยู่ใกล้กับโรงพยาบาลเจ้าพระยา และโรงพยาบาลศิริราช สำหรับสถานศึกษาที่ใกล้ที่สุดคือ มหาวิทยาลัยธรรมศาสตร์ ท่าพระจันทร์ สำหรับจุดเด่นของโครงการคือตั้งอยู่ใกล้กับรถไฟฟ้าสายสีน้ำเงิน สถานีบางยี่ขัน เพียง 26 เมตร จากโครงการสามารถเดินไปยังรถไฟฟ้าได้อย่างสะดวกสบายเลยทีเดียว

ภาพแผนที่โครงการแจกแจงให้เห็นระยะใกล้-ไกลของโครงการกับสถานที่
หรือ Landmark รอบๆ โครงการที่น่าสนใจ (คลิกดูภาพใหญ่)
ตำแหน่ง GPS โดยประมาณของโครงการ 13.7765597,100.4847874

ทางเข้า-ออกโครงการ ติดถนนใหญ่จรัญสนิทวงศ์ เห็นทางรถไฟฟ้าผ่านด้านหน้าโครงการเลยค่ะ

เซ็นทรัล ปิ่นเกล้า อยู่ไม่ไกลจากโครงการ

ละแวกนี้ก็จะมีเมเจอร์ ปิ่นเกล้าด้วยค่ะ

เดอะ เซ้นส์ ปิ่นเกล้า Community mall ที่เต็มไปด้วยร้านอาหารที่น่าสนใจ

และยังมี Tesco Lotus อยู่ใกล้ๆ อีกด้วย
- การเดินทางโดยรถยนต์
โครงการตั้งอยู่ติดกับถนนจรัญสนิทวงศ์ สามารถเดินทางได้ด้วยถนนบรมราชชนนี และยังใกล้ทางด่วนศรีรัช 2 สามารถใช้วิธีเดินทางได้ตามแผนที่ Google Map ด้านล่างนี้เลยค่ะ
- การเดินทางโดยรถไฟฟ้า
รถไฟฟ้าที่อยู่ด้านหน้าโครงการ เป็นรถไฟฟ้าสายสีน้ำเงินช่วง เตาปูน - ท่าพระ ปัจจุบันอยู่ในระหว่างก่อสร้าง กำหนดเปิดให้บริการประมาณปี 2564 โดยสถานีที่ใกล้ที่สุดคือ สถานีบางยี่ขัน ตั้งอยู่ในระยะที่สามารถเดินไปได้ประมาณ 26 เมตร เรียกว่าเป็นจุดเด่นของโครงการเลยทีเดียว


รูปแบบตึก และตัวโครงการโดยรวม
ตัวโครงการ "ไลฟ์ ปิ่นเกล้า" ออกแบบมาภายใต้แนวคิด "Discover The New Joy of Old Memories" เสน่ห์ใหม่แห่งวิถีที่คุ้นเคย ที่เป็นการผสมผสานระหว่างรูปแบบแนวคิดญี่ปุ่น กับการเอาความเป็นธรรมชาติเข้ามาอยู่ใกล้ตัวมากขึ้น เลือกใช้วัสดุจำพวก ไม้ สวนหิน และบ่อน้ำ มาเป็นส่วนประกอบตกแต่ง เน้นพื้นที่สีเขียวภายในโครงการรวมกันกว่า 2 ไร่
ตัวอาคารเป็นคอนโดมิเนียม High-rise สูง 23 ชั้น อยู่บนพื้นที่ 4-3-86 ไร่ ประกอบด้วยอาคารรูปทรงตัว S จำนวน 1 อาคาร มีห้องพักอาศัยรวมทั้งหมด 803 ยูนิต และร้านค้า 2 ยูนิต โดยข้อดีของอาคารรูปทรงตัว S คือห้องพักอาศัยทุกห้องจะไม่อยู่ในตำแหน่งที่บังวิวกัน ดังนั้นจึงสามารถเทควิวเมืองได้อย่างเต็มที่ จากตำแหน่งที่ตั้งของโครงการถึงถนนจรัญสนิทวงศ์จะมีระยะร่นอยู่ที่ประมาณ 50 เมตร ช่วยลดปัญหาเรื่องเสียงรบกวนจากถนนใหญ่ได้เยอะพอสมควร ห้องพักอาศัยเริ่มต้นตั้งแต่ชั้น 2-23 โดยตั้งแต่ชั้น 5 เป็นต้นไปก็สามารถมองเห็นวิวสะพานพระราม 8 ได้แล้ว รูปแบบห้องพักอาศัยมีให้เลือกตั้งแต่แบบ 1 Bedroom - 2 Bedrooms โดยห้องส่วนใหญ่กว่า 80% เป็นห้องแบบ 1 Bedroom ขนาด 26 - 35 ตร.ม. สำหรับสิ่งอำนวยความสะดวกส่วนกลางจัดไว้ที่ชั้น 5 ประกอบด้วย สระว่ายน้ำ, ห้องฟิตเนส, Casual Space, ห้องสตีม และห้องซาวน่า ส่วนพื้นที่จอดรถอยู่ที่ชั้น 1-4 โดยที่ชั้น 3-4 จะมีประตูเดินเชื่อมต่อเข้าอาคารพักอาศัยบริเวณโถงลิฟต์ได้เลย อัตราส่วนการใช้ลิฟต์เฉลี่ยทั้งโครงการอยู่ที่ 200 ยูนิตต่อลิฟต์ 1 ตัว ถือว่าค่อนข้างหนาแน่นพอสมควร
ทิศตะวันตกเฉียงเหนือ : เป็นฝั่งด้านหน้าโครงการ ติดถนนใหญ่จรัญสนิทวงศ์ ฝั่งตรงข้ามเป็นคอนโดสูง 22 ชั้น และอาคารพาณิชย์สูง 4 ชั้น
ทิศตะวันออกเฉียงใต้ : สามารถมองเห็นวิวสะพานพระราม 8 ประมาณชั้น 5
ทิศตะวันออกเฉียงเหนือ : ใกล้กับโรงแรมสูง 2 ชั้น และที่พักอาศัยสูง 2 - 5 ชั้น
ทิศตะวันตกเฉียงใต้ : ติดคอนโดสูง 22 -23 ชั้น และบ้านพักอาศัยสูง 2-4 ชั้น
ทิศตะวันออกเฉียงใต้ : สามารถมองเห็นวิวสะพานพระราม 8 ประมาณชั้น 5
ทิศตะวันออกเฉียงเหนือ : ใกล้กับโรงแรมสูง 2 ชั้น และที่พักอาศัยสูง 2 - 5 ชั้น
ทิศตะวันตกเฉียงใต้ : ติดคอนโดสูง 22 -23 ชั้น และบ้านพักอาศัยสูง 2-4 ชั้น
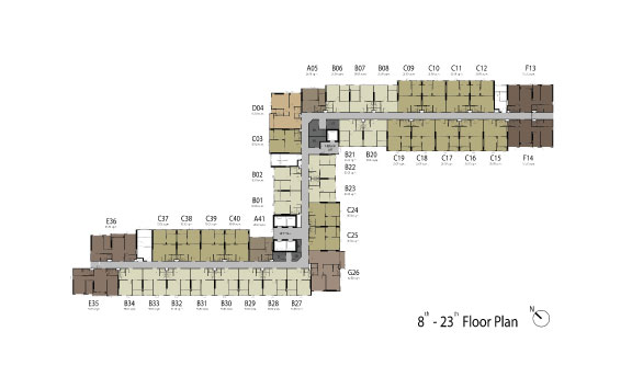
Master Plan และ Floor Plan ของโครงการ ไลฟ์ ปิ่นเกล้า

Master Plan บริเวณชั้น 1 : การเดินรถภายในโครงการเป็นการเดินรถแบบทางเดียว (Two-way) มีทางเข้า-ออกทางเดียว คือฝั่งถนนจรัญสนิทวงศ์ จากประตูทางเข้าโครงการขับตรงเข้ามาทางซ้ายมือจะเป็นพื้นที่สวนสไตล์ญี่ปุ่น "Mura" A Village within Nature ขับตรงเข้ามาจะผ่านร้านค้า 2 ร้าน (ยังไม่ระบุชัดเจนว่าจะเป็นร้านอะไร) ผ่านจุด Drop off, ผ่าน Lobby และท้ายโครงการจะเป็นพื้นที่จอดรถในร่ม นอกจากนี้ยังมีพื้นที่จอดรถสำหรับ Visitor อีกนิดหน่อย

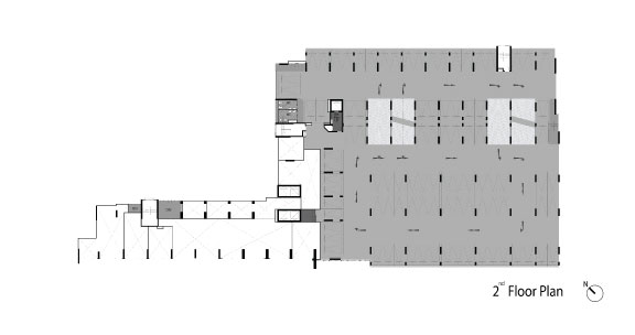
Floor Plan ชั้น 2 : เป็นพื้นที่จอดรถทั้งหมด

Floor Plan ชั้น 3 : เป็นพื้นที่จอดรถ และพื้นที่พักอาศัยอีก 14 ยูนิต
แบ่งเป็นห้องแบบ 1 Bedroom และ 1 Bedroom Plus รวมกันจำนวน 12 ยูนิต และแบบ 2 Bedrooms อีก 2 ยูนิต

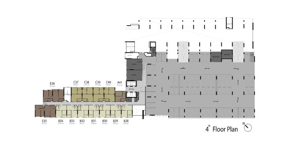
Floor Plan ชั้น 4 : เป็นพื้นที่จอดรถ และพื้นที่พักอาศัยอีก 14 ยูนิต
แบ่งเป็นห้องแบบ 1 Bedroom และ 1 Bedroom Plus รวมกันจำนวน 12 ยูนิต และแบบ 2 Bedrooms อีก 2 ยูนิต

Floor Plan ชั้น 5 : เป็นพื้นที่ส่วนกลาง สระว่ายน้ำ, ฟิตเนส, Casual Space, สตีม, ซาวน่า
และส่วนพักอาศัยอีก 38 ยูนิต ข้อดีของลูกบ้านที่อยู่ชั้นนี้คือ อยู่ใกล้สิ่งอำนวยความสะดวก
แต่ก็อาจจะแลกมาด้วยเสียงรบกวนจากผู้ที่มาใช้พื้นที่ส่วนกลางเช่นกัน

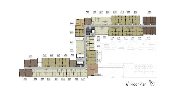
Floor Plan ชั้น 6 : เป็นพื้นที่พักอาศัยจำนวน 40 ยูนิต
แบ่งเป็นห้องแบบ 1 Bedroom และ 1 Bedroom Plus รวมกันจำนวน 35 ยูนิต และแบบ 2 Bedrooms อีก 5 ยูนิต

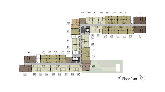
Floor Plan ชั้น 7 : เป็นพื้นที่พักอาศัยจำนวน 41 ยูนิต
แบ่งเป็นห้องแบบ 1 Bedroom และ 1 Bedroom Plus รวมกันจำนวน 35 ยูนิต และแบบ 2 Bedrooms อีก 6 ยูนิต

Floor Plan ชั้น 8-23 : จะเหมือนกันคือเป็นพื้นที่พักอาศัยจำนวน 41 ยูนิต
แบ่งเป็นห้องแบบ 1 Bedroom และ 1 Bedroom Plus รวมกันจำนวน 35 ยูนิต และแบบ 2 Bedrooms อีก 6 ยูนิต
ส่วนกลางและสิ่งอำนวยความสะดวก
สิ่งอำนวยความสะดวกของโครงการนี้ยกรวมมาไว้บนชั้น 5 เกือบทั้งหมด และอีกบางส่วนอยู่ที่ชั้น 1 บริเวณรอบโครงการ โดยรวมถือว่าจัดสิ่งอำนวยความสะดวกมาให้ลูกบ้านค่อนข้างหลากหลายพอสมควร อาทิ
- สวนส่วนกลาง แนวคิด "Mura" A Village within Nature
- สระว่ายน้ำ Infinity Edge Pool ยาวกว่า 40 เมตร ในรูปแบบ "Mori" The Forest Pool
- Panoramic Fitness พร้อมอุปกรณ์
- Casual Space หรือห้องอ่านหนังสือ
- พนักงานรักษาความปลอดภัย 24 ชม.
- CCTV
- ระบบ Key Card เข้า-ออก
- ระบบลิฟต์ล็อกชั้น
- ที่จอดรถ 52% (ไม่รวมจอดซ้อนคัน)

ด้านหน้าโครงการเป็นระบบ Key Card มี รปภ. ตลอด 24 ชั่วโมง

CCTV ด้านหน้าทางเข้าบริเวณไม้กั้นกระดก

ด้านหน้าโครงการมีสวนสาธารณะ เป็นพื้นที่สีเขียวที่ช่วยให้โครงการดูร่มรื่น

ส่วนที่เป็นทางเดิน มีที่ร่มสำหรับกันแดด กันฝน และมีสระน้ำเพิ่มความสวยงาม

จัดพื้นที่บางส่วนเป็นสนามเด็กเล่นสำหรับเด็กๆ มีเครื่องเล่นมาให้ 3 เครื่อง

สนามหญ้าพร้อมพื้นที่นั่งภายใต้แนวคิด "Mura" A Village within Nature

เข้ามาที่ตัวตึกกันบ้างค่ะ ถ้าขับตรงไปจะผ่าน ร้านค้า, จุด Drop Off, Lobby และพื้นที่จอดรถ
ถ้าเลี้ยวซ้ายจะไปจะเป็นที่จอดรถจักรยานยนต์ด้านหลังอาคาร (การเดินรถแบบ One-way)

หน้าตาที่จอดรถจักรยานยนต์ด้านหลังอาคาร สามารถจอดได้หลายคัน

ที่จอดรถในร่มอยู่บริเวณชั้น 1 - 4 สามารถจอดได้ประมาณ 52% ไม่รวมจอดซ้อนคัน

ด้านในอาคารก็ยังมีพื้นที่สำหรับจอดจักรยานยนต์ให้เหมือนกันค่ะ

จุดชาร์จแบตเตอรี่สำหรับรถยนต์ไฟฟ้าก็มีนะคะ

ตู้ Smart Locker สำหรับให้ลูกบ้านฝากของ โดยใช้ร่วมกับบัตรประชาชนเพียงใบเดียวก็สามารถฝากได้แล้ว
เริ่มใช้ที่นี่เป็นโครงการแรก

Lobby ของโครงการอยู่ที่ชั้น 1 ก็ตกแต่งในสไตล์ Modern Japanese ความสูงจากพื้นถึงเพดาน 3.25 เมตร
โดยที่ล็อบบี้จะมีเจ้าหน้าที่จากบริษัทในเครือของ AP คอยให้บริการรับฝากเช่า ฝากซื้อ ฝากขาย ด้วยนะคะเผื่อใครสนใจปล่อยขาย หรือปล่อยเช่า เบื่องต้นอัตราค่าเช่าจะอยู่ที่ประมาณ 300 บาท/ตร.ม.

ปัจจุบันใช้เป็น Sale Gallery มีพื้นที่รองรับผู้คนได้เยอะทีเดียวค่ะ

ประตูที่จะเข้าโซนพักอาศัยก็เข้าออกด้วยระบบคีย์การ์ด
ด้านข้างประตูมีเครื่อง AED หรือเครื่องกระตุ้นหัวใจไฟฟ้า สำหรับไว้ใช้ช่วยเหลือลูกบ้านในยามฉุกเฉิน

เคาน์เตอร์ด้านนอก

บริเวณนี้จะเป็นจุด Drop off ออกแบบเป็นโถงเปิดโล่งค่ะ

ตู้ล็อคเกอร์เก็บจดหมาย

มีลิฟต์โดยสาร 4 ตัวระบบล็อคชั้น ที่จะต้องใช้ Key Card สำหรับลูกบ้านเท่านั้น และลิฟต์บริการอีก 1 ตัว

ขึ้นมาที่ชั้น 5 จะเป็นพื้นที่ส่วนสระว่ายน้ำ และฟิตเนส

ด้านขวามือจะเป็นฟิตเนส และห้องน้ำแยกหญิงชาย ด้านในห้องน้ำหญิงมีสตีม ห้องน้ำชายเป็นซาวน่า

เข้ามาดูด้านในฟิตเนส ดูกว้างขวางมากค่ะ

อุปกรณ์ออกกำลังกายครบครัน ทันสมัย มีเครื่องออกกำลังกายมาให้ประมาณ 10 เครื่อง

คอนเซปต์ของฟิตเนสที่นี่คือ Panoramic Fitness

สามารถออกกำลังกายไป พร้อมมองดูวิวด้านนอกได้อย่างกว้างขวาง

ด้านนี้สามารถออกไปยังสระว่ายน้ำได้ค่ะ

มาดูชั้นบนของฟิตเนส

Casual Space พื้นที่สำหรับลูกมาบ้านมาพูดคุยสังสรรค์กัน

ด้านในโอ่อ่า กว้างขวางทีเดียวค่ะ สามารถรองรับสมาชิกได้หลายคน

สำหรับสระว่ายน้ำของโครงการจะอยู่ด้านนอก เป็นสระว่ายน้ำกลางแจ้ง Infinity Edge Pool
ในรูปแบบ "Mori" The Forest Pool สามารถเทควิวสะพานพระราม 8 ได้อย่างชัดเจน

มีที่นั่งพักผ่อนหย่อนใจอยู่ริมสระให้อย่างครบครัน ด้านนึงมองเห็นวิวเมือง

อีกด้านนึงเป็นวิวตึกโครงการ

สระว่ายน้ำมีความยาวกว่า 40 เมตร เลยค่ะ แยกสระเด็ก สระผู้ใหญ่
สระผู้ใหญ่ลึก 1.2 เมตร ส่วนสระเด็กลึก 60 ซม.

ชมภาพสวยๆ ของสระว่ายน้ำกันค่ะ


สระว่ายน้ำล้อมรอบด้วยพื้นที่สีเขียวและต้นไม้น้อยใหญ่

พื้นทางเดินปูด้วยหินกรวดให้อารมณ์สไตล์ญี่ปุ่น

มีพื้นที่นั่งเล่นริมสระน้ำออกแบบคล้าย Sunken seat ให้ความรู้สึกเหมือนนั่งเล่นอยู่ระดับเดียวกับผิวน้ำ


สระว่ายน้ำอยู่ทางฝั่งทิศใต้ช่วงบ่ายอาจจะโดนแดดอยู่บ้างแต่ก็จะได้ลมจากทางทิศใต้มาช่วยทำให้เย็นสบายไม่ร้อนมาก

โถงทางเดินกว้าง 1.5 เมตร โทนสีขาว

บันไดหนีไฟขนาดไม่เล็กไม่ใหญ่ เจาะหน้าต่างให้ช่องแสงเข้าทำให้สว่าง

ประตูเชื่อมต่อลานจอดรถที่ชั้น 3 และชั้น 4

ใกล้กันเป็นประตูทางเข้าส่วนพักอาศัย เข้าออกด้วยระบบคีย์การ์ดเช่นกัน
ภาพห้องตัวอย่าง และ Lay out
ภายในห้องพักอาศัยออกแบบ Modern Japanese กลิ่นไอสไตล์ญี่ปุ่นผสมผสานความเป็นโมเดิร์นในโทนสีเอิร์ธโทน ขายแบบ Fully Fitted มีเฟอร์นิเจอร์ Built-in มาให้บางส่วน โดยสิ่งที่ทางโครงการให้มาประกอบด้วย ชุดเคาน์เตอร์ครัว Built-in เตาไฟฟ้า เครื่องดูดควัน, วอลล์เปเปอร์สีน้ำตาลอ่อน, แอร์ Panasonic (1 Bedroom และ 1 Bedroom Plus ได้แอร์ 2 เครื่อง ส่วนห้อง 2 Bedrooms ได้ 3 เครื่อง) นอกนั้นที่เห็นในห้องตัวอย่างเป็นเพียงของตกแต่งเท่านั้น
- ห้องแบบ 1 Bedroom : ขนาด 26-30 ตร.ม.
- ห้องแบบ 1 Bedroom Plus : ขนาด 35 ตร.ม.
- ห้องแบบ 2 Bedrooms : ขนาด 50-60.05 ตร.ม.






ความพิเศษของห้องที่ "ไลฟ์ ปิ่นเกล้า" คือบาง Type จะออกแบบมาให้เป็นห้อง Plus หรือห้องอเนกประสงค์ที่สามารถปรับเปลี่ยนทำเป็น Walk in closet สำหรับผู้ที่อาจจะมีเสื้อผ้าหรือเครื่องแต่งกายเยอะๆ น่าจะชอบ หรือปรับเป็นห้องทำงาน หรือจะทำเป็นห้องนอนเล็กอีกห้องก็ยังได้
โดยห้องที่จะพาไปดูกันในวันนี้เป็นห้องแบบ 1 Bedroom Plus ขนาด 35 ตร.ม. ที่อยู่บนชั้น 12 A และห้องแบบ 2 Bedrooms ขนาด 55 ตร.ม. บนชั้น 3 ตามเราไปดูทีละห้องกันเลยค่ะ เริ่มจากห้องแรก
ภาพห้องตัวอย่างแบบ 1 Bedroom Plus ขนาด 35 ตร.ม.


ประตูสำเร็จรูป HDF มือจับแบบก้านโยก พร้อมช่องมองตาแมว
ได้ Digital Door Lock ของ Yale (ขึ้นอยู่กับ Promotion)

พื้นห้องปูด้วยลามิเนตลายไม้หนา 8 มม. เรียบเสมอกับโถงทางเดิน
จบด้วยลามิเนตลายเดียวกับพื้นห้องช่วยป้องกันแมลง และฝุ่น

เข้ามาจะเจอกับโซนห้องนั่งเล่นความสูงของห้อง 2.55 เมตร บนเพดานได้ไฟแบบดาวน์ไลท์ทรงกลม
ภายในห้องทางโครงการตกแต่งด้วยเฟอร์นิเจอร์ลอยตัวของ MUJI เลือกใช้วัสดุประเภทไม้แต่งด้วยโทนสีเอิร์ธโทนดูเป็นธรรมชาติและให้ความรู้สึกสบายตา

ห้องนั่งเล่นวางโซฟาได้ขนาด 2 ที่นั่ง ห้องนี้จะได้แอร์ 2 เครื่องที่บริเวณห้องนั่งเล่น และห้องนอน

ระยะดูทีวีประมาณ 180 ซม.
ผนังฉาบเรียบติดวอลล์เปเปอร์สีอ่อนมาให้ตามนี้ ส่วนผนังที่เหลือทางโครงการตกแต่งมาให้ดูเป็นไอเดีย

ใกล้กับโซฟาทางโครงการ Built-in เป็นโต๊ะทำงานมาให้ดูเป็นตัวอย่าง

ด้านบนทำเป็นช่องสำหรับเก็บของ ที่ผนังบางส่วนตกแต่งด้วยกระจกทำให้ห้องดูกว้างมากขึ้น

ประตูห้องนอนเป็นกระจกบานเลื่อน 2 ตอน กรอบอลูมิเนียมสีเข้ม มือจับแบบมาตรฐาน

รางประตูบานเลื่อนแบบฝังพื้น

ในห้องนอนวางเตียงขนาด 5 ฟุตมาให้ดู ของ MUJI

ใต้เตียงออกแบบมาเป็นลิ้นชักสำหรับเก็บของ

ระยะห่างจากเตียงถึงประตูกว้าง 100 ซม.

พื้นที่ปลายเตียงเหลือระยะเดิน 80 ซม.

ข้างเตียงถึงหน้าต่างเหลือระยะเดิน 55 ซม.
ใต้เตียงออกแบบเป็นลิ้นชักสำหรับเก็บของได้ด้วย

หน้าต่างห้องนอนจะเป็นกระจกบานใหญ่ แต่รางม่านไม่ได้ให้มานะคะ

และได้หน้าต่างบานกระทุ้งสำหรับช่วยระบายอากาศ

ปลายเตียงสามารถติดทีวีแขวนผนังได้

ปลายเตียงเป็นผนังทึบติดตั้งประตูบานเลื่อน 2 ตอนมาให้สูงจากพื้นถึงฝ้าเลย กั้นแบ่งระหว่างห้องนอนกับห้องอเนกประสงค์

ทางโครงการทำเป็น Walk In Closet มาให้ดูเป็นไอเดีย แต่ห้องที่ส่งมอบจริงตรงนี้จะเป็นห้องเปล่านะคะ

ดีไซน์ผนังบางส่วนเป็นกระจกทำให้ห้องดูโปร่งขึ้นไม่อึดอัดจนเกินไป
และยังสามารถมองเห็นส่วนของห้องครัวและห้องนั่งเล่นได้อีกด้วย

พื้นที่ Walk In Closet จะติดกับส่วนของระเบียง เป็นประตูกระจกบานเลื่อนสีเขียวตัดแสง 2 ตอน
ราวระเบียงสูง 110 ซม.

ตัวล็อคมาตรฐาน มีที่จับถนัดมือ

แต่ด้านนอกจะมีแค่ตัวล็อกมาตรฐานเท่านั้น

ประตูระเบียงยกธรณีสูงเกือบ 20 ซม. เวลาเดินเข้าออกระวังสะดุดด้วยนะคะ
พื้นระเบียงปูกระเบื้องเซรามิกสีอ่อนขนาด 30 x 30 ซม.

ที่ระเบียงติดตั้งท่อน้ำดี น้ำทิ้งเรียบร้อย

ติดคอมเพรสเซอร์แอร์ไว้ด้านบน เป่าลมร้อนออกด้านนอกระเบียง ติดกริลบังสายตามาให้ด้วย
ได้โคมไฟติดผนัง 1 ดวง

ห้องนี้ได้เป็นครัวแบบเปิด ตั้งอยู่เยื้องกับห้องนั่งเล่น

ส่วนโต๊ะกินข้าวที่เป็นเคาน์เตอร์บาร์หินสีขาวกับชุดเก้าอี้ไม่ได้ให้มานะคะ ตกแต่งมาให้ดูเป็นไอเดียเท่านั้น

ฝ้าเพดานห้องครัวเรียบเสมอกับห้องนั่งเล่น ไม่ได้ Drop ฝ้า ข้อดีคือทำให้พื้นที่ห้องครัวดูโปร่งมากขึ้นมาอีกนิดนึง

พื้นห้องครัวเป็นกระเบื้องแกรนิตโต้สีอ่อนขนาด 60 x 60 ซม.

ได้ชุดเคาน์เตอร์ครัว Built-in รูปทรงตัว L
ตำแหน่งเครื่องซักผ้าตั้งไว้ใต้เคาน์เตอร์ครัว

ได้เครื่องดูดควันของ Teka ระบบหมุนเวียน ส่วนช่องสำหรับวางไมโครเวฟอยู่ด้านล่าง
พื้นที่วางตู้เย็นเหลือประมาณ 80 ซม.

มีช่องเก็บของทั้งด้านบน และด้านล่าง
ชุดครัวบานพับ Soft closed ใต้ตู้ติดตั้งถังขยะมาให้สะดวกในการใช้งาน

Top ครัวเป็นหินสังเคราะห์สีขาว ที่ผนังด้านหลังติด Back Splash กรุด้วยกระเบื้องแกรนิตโต้ ทำความสะอาดง่าย

อ่างล้างจานสแตนเลสแบบฝังของ Teka

ได้เตาไฟฟ้า 2 หัวของ Teka

ไปดูห้องน้ำกันต่อค่ะ ประตูลูกบิดแบบเปิดเข้า

ธรณีประตูห้องน้ำเป็นกระเบื้องแกรนิตโต้ ยกสูงประมาณ 8 ซม.
พื้นห้องน้ำปูด้วยกระเบื้องแกรนิตโต้ สีครีมขนาด 60 x 60 ซม.

ภายในห้องน้ำแบ่งส่วนแห้งส่วนเปียกมาให้เรียบร้อย
ผนังในห้องน้ำกรุกระเบื้องมาให้ตามแบบนี้เลยค่ะ

ได้โถสุขภัณฑ์ อ่างล้างมือทรงสี่เหลี่ยม และก๊อกน้ำของ Kohler
ใต้อ่างล้างมือไม่มีช่องเก็บของแต่มีที่สำหรับแขวนผ้ามาให้แทน

ได้ฉากกั้นห้องกระจกเทมเปอร์แบบบานผลัก ที่ประตูมีที่สำหรับแขวนผ้าได้
แต่ทางโครงการไม่ได้ติดตั้งเครื่องทำน้ำอุ่นมาให้นะคะ

ชุดฝักบัว และก๊อกน้ำของ Grohe

ได้พัดลมระบายอากาศของ Panasonic

จากโซนเปียกมองย้อนกลับไปจะเห็นว่าทางโครงการให้กระจกเงาบานค่อนข้างใหญ่ยาวตลอดแนวผนัง

ปลั๊กไฟและสวิตช์ภายในห้องได้สีขาวแบบนี้ของ Siemens
ภาพห้องตัวอย่างแบบ 2 Bedrooms ขนาด 55 ตร.ม.

เดินเข้ามาภายในห้องทางซ้ายจะเป็นพื้นที่ของห้องน้ำ และห้องนอนเล็ก
ส่วนพื้นที่กลางห้องจัดเป็นห้องนั่งเล่น และโซนทานอาหาร

ที่ห้องนั่งเล่นสามารถวางโซฟาได้ขนาด 2 ที่นั่งได้ เหลือพื้นที่พอวางโต๊ะกลางได้อีกสบายๆ

ส่วนฝั่งขวาของห้องจะเป็นพื้นที่ของห้องครัว และห้องนอนใหญ่ซึ่งมีห้องน้ำอยู่ในตัว

ห้องนี้ได้ครัวแบบปิด วางผังเป็นแนวสี่เหลี่ยมผืนผ้า ได้ชุดครัว Built-in รูปทรงตัว I
หน้าต่างบานติดตาย และบานกระทุ้ง สำหรับเป็นช่องแสง และช่วยเปิดช่วยระบายกลิ่นเวลาทำอาหาร

ห้องนอนใหญ่วางเตียงขนาด 5 ฟุตไว้ใกล้กับหน้าต่าง ทำให้เหลือพื้นที่ข้างเตียงกว้างขึ้น

ปลายเตียงติดทีวีแบบแขวนผนังได้ แต่พื้นที่ปลายเตียงเหลือไม่เยอะมากแค่พอเดินได้

ภายในห้องนอนใหญ่ Type นี้ก็มีห้องแบบ Plus เช่นกัน
ทางโครงการตกแต่งมาให้ดูเป็น Walk In Closet เพิ่มความสะดวกในการแต่งตัว

ที่ผนัง Built-in เป็นตู้เสื้อผ้าบานเลื่อนมาให้ดู หน้าบานติดเป็นกระจกเงาทำให้พื้นที่ส่วนนี้ดูกว้างมากขึ้น

ห้องน้ำตรงจุดนี้เป็นแบบ Double Access สามารถเข้าออกได้ 2 ทางทั้งจากห้องนั่งเล่น และห้องนอนเล็ก

ในห้องนอนเล็กวางเตียงได้ขนาด 5 ฟุต ข้างเตียงเหลือพื้นที่ค่อนข้างกว้าง สามารถ Built-in เป็นโต๊ะเครื่องแป้งได้สบายๆ

ประตูทางเข้าห้องน้ำอยู่ทางซ้ายของห้อง
ราคาและค่าใช้จ่ายที่เกี่ยวข้องโดยประมาณ (ม.ค. 61)
- 1 Bedroom ขนาด 26 ตร.ม. ราคาเริ่มต้น 2.49 ล้านบาท
- 1 Bedroom Plus ขนาด 35 ตร.ม. ราคาเริ่มต้น 3.8 ล้านบาท
- 2 Bedrooms ขนาด 50 ตร.ม. ราคาเริ่มต้น 5.5 ล้านบาท
- ค่าส่วนกลาง : 34 บาท/ตร.ม./เดือน (ชำระล่วงหน้า 1 ปี)
- เงินกองทุนแรกเข้า : 450 บาท/ตร.ม. (ชำระครั้งเดียว ณ วันโอนกรรมสิทธิ์)
Promotion
- จ่าย 20,000 บาท* เข้าอยู่เลย
- ฟรีค่าทำสัญญา+ค่าใช้จ่ายวันโอน+Digital Door Lock ของ Yale
สถานะปัจจุบันของโครงการ (ม.ค. 61)
โครงการ ไลฟ์ ปิ่นเกล้า เปิดขายทุกห้องทุกชั้น สร้างเสร็จพร้อมเข้าอยู่แล้วตั้งแต่เดือน ตุลาคม 2560 สามารถเข้าชมห้องจริงได้ทุกวันตั้งแต่เวลา 9.00 - 18.00 น. สอบถาม โทร. 1623
แท็กที่เกี่ยวข้อง
คอนโดใกล้รถไฟฟ้า
คอนโดใกล้รถไฟฟ้าสายสีน้ำเงิน
คอนโดปิ่นเกล้า
รีวิวคอนโด
คอนโดเอพี
ไลฟ์ ปิ่นเกล้า
life pinklao
เขียนโดย
เช็คราคา.คอม
Condo Guru
พูดคุยกับกูรูได้ที่




