
รีวิว-เยี่ยมชม Ideo Thaphra-Interchange (ไอดีโอ ท่าพระ-อินเตอร์เชนจ์)
สวัสดีค่ะ วันนี้ Checkraka.com จะพาไปเยี่ยมชมคอนโด Ideo Thaphra-Interchange (ไอดีโอ ท่าพระ-อินเตอร์เชนจ์) จาก "อนันดา ดีเวลลอปเม้นท์" นั่นเองค่ะ ซึ่งจุดนี้ในอนาคตจะเป็นจุด Interchange เชื่อมต่อของโครงข่ายรถไฟฟ้าสายสีน้ำเงินส่วนต่อขยาย (สายบางซื่อ-ท่าพระ และสายหัวลำโพง-บางแค) ซึ่งจะทำให้การเดินทางคมนาคมไม่ว่าจะเดินทางเข้าเมืองหรือออกนอกเมืองก็สะดวกสบาย อีกทั้งยังใกล้โรงพยาบาล, มหาวิทยาลัย และตลาดใหญ่ๆ อย่างตลาดวงเวียนใหญ่และตลาดพลูอีกด้วย ไปดูข้อมูลกันดีกว่าค่ะว่าโครงการนี้มีอะไรน่าสนใจบ้าง

ข้อมูลโครงการ
- เจ้าของและผู้พัฒนาโครงการ: บริษัท อนันดา ดีเวลลอปเม้นท์ จำกัด (มหาชน)
- ที่ตั้งโครงการ: ถนนเพชรเกษม แขวงท่าพระ เขตบางกอกใหญ่ กทม.
- อาคารชุดพักอาศัยสูง 22 ชั้น จำนวน 1 อาคาร รวม 844 ยูนิต
- ขนาดที่ดินทั้งโครงการ: 4-2-16.7 ไร่
- ลิฟต์โดยสาร 4 ตัวต่ออาคาร ลิฟต์บริการ 1 ตัว
- ห้องชุดมี 3 รูป คือ สตูดิโอ, 1 ห้องนอน และ 2 ห้องนอน
- ที่จอดรถ : ประมาณ 40% แบบไม่รวมจอดซ้อนคัน
- ราคาเริ่มต้น 2.69 สําหรับห้องขนาด 27.5 ตร.ม. (ข้อมูล ณ 3 ก.พ. 59)
- สถานะโครงการ : อยู่ระหว่างดำเนินการก่อสร้าง
- วันที่เข้าเยี่ยมชม-รีวิวคอนโด 3 ก.พ. 59
เจ้าของและผู้พัฒนาโครงการ
บริษัท อนันดา ดีเวลลอปเม้นท์ จำกัด (มหาชน) เป็นบริษัทมหาชนประกอบธุรกิจพัฒนาอสังหาริมทรัพย์ และเป็นผู้นำตลาดคอนโดมิเนียมติดรถไฟฟ้า ที่มีสโลแกนสำคัญในการพัฒนาโครงการที่พักอาศัยคือ "Live / Work / Play" (Let's live, work and play more) ปัจจุบันบริษัทฯ พัฒนาทั้งคอนโดมิเนียม และโครงการบ้านจัดสรรในกรุงเทพ และปริมณฑล โดยในส่วนของคอนโดมิเนียมนั้นมุ่งเน้นไปที่โครงการที่ห่างจากรถไฟฟ้าไม่เกิน 300 เมตรกับแบรนด์ "ไอดีโอ" และไม่เกิน 600 เมตรกับแบรนด์ "เอลลิโอ" โดยคอนโดมิเนียมโครงการแรกของบริษัทฯ ที่ถูกพัฒนาขึ้นมาในปี 2550 คือโครงการ "ไอดีโอ ลาดพร้าว 17" จวบจนปัจจุบัน บริษัทฯ พัฒนาคอนโดมิเนียมมาแล้วทั้งหมดกว่า 40 โครงการ โดยในปี 2559 บริษัทจะเปิดขายโครงการใหม่อีก 10 โครงการ โดยเป็นโครงการคอนโดมิเนียม 8 โครงการ ซึ่งเป็นโครงการร่วมทุนกับมิตซุย ฟูโดซัง 4 โครงการ และโครงการแนวราบ 2 โครงการ รวมมูลค่ารวม 22,000 ล้านบาท
ทำเลที่ตั้ง
ไอดีโอ ท่าพระ-อินเตอร์เชนจ์ ตั้งอยู่ภายในซอบเพชรเกษม 9 ถนนเพชรเกษม แขวงวัดท่าพระ เขตบางกอกใหญ่ กรุงเทพฯ 10600 ใกล้สี่แยกท่าพระและห่างจากรถไฟฟ้าสถานีท่าพระ (ส่วนต่อขยายสายสีน้ำเงิน) เพียง 100 เมตร

แผนที่โครงการ ไอดีโอ ท่าพระ-อินเตอร์เชนจ์ (Ideo Thaphra-Interchange)

คลิกเพื่อดูภาพใหญ่
แผนที่โครงการแจกแจงให้เห็นรายละเอียดใกล้-ไกลกับสถานที่ หรือ Landmark รอบๆ โครงการที่น่าสนใจ

"โรงพยาบาลตากสิน" ระยะทางห่างจากโครงการประมาณ 3.9 กม.

"โรงพยาบาลสมด็จเจ้าพระยา (สถาบันจิตเวช)" ระยะทางห่างจากโครงการประมาณ 3.8 กม.

"มหาวิทยาลัยราชภัฏธนบุรี" ระยะทางห่างจากโครงการประมาณ 2.9 กม.

"มหาวิทยาลัยราชภัฏบ้านสมเด็จเจ้าพระยา" ระยะทางห่างจากโครงการประมาณ 2.7 กม.

"โรงพยาบาลสมิติเวช ธนบุรี" ระยะทางห่างจากโครงการประมาณ 4 กม.

"โรงพยาบาลสมเด็จพระปิ่นเกล้า" ระยะทางห่างจากโครงการประมาณ 3.7 กม.

"ตลาดวงเวียนใหญ่" ระยะทางห่างจากโครงการประมาณ 2.4 กม.

"เดอะมอลล์ ท่าพระ" ระยะทางห่างจากโครงการประมาณ 1.9 กม.

"ตลาดพลู" ระยะทางห่างจากโครงการประมาณ 1.2 กม.

"โรงพยาบาลบางไผ่" ระยะทางห่างจากโครงการ 1.6 กม.

"โรงพยาบาลพญาไท 3" ระยะทางห่างจากโครงการประมาณ 1.5 กม.
การเดินทาง
1. เดินทางด้วยรถยนต์
การเดินทางด้วยรถยนต์สามารถมาได้หลายเส้นทางค่ะ โดยมีเส้นทางหลักดังต่อไปนี้
- ทางเข้าโครงการเส้นทางที่ 1 - เริ่มจากสะพานตากสิน

มาดูภาพประกอบการเดินทางกันค่ะ โดยเราจะเริ่มบริเวณบริเวณสะพานสมเด็จพระเจ้าตากสิน










ถึง Sales Gallery ของโครงการเรียบร้อยแล้วค่ะ
- ทางเข้าโครงการเส้นทางที่ 2 - จากอนุสาวรีย์ชัยสมรภูมิ

- ทางออกเส้นทางที่ 1 - ไปสะพานตากสิน

- ทางออกเส้นทางที่ 2 - ไปอนุสาวรีย์ชัยสมรภูมิ

2. เดินทางด้วยรถไฟฟ้า
สำหรับการเดินทางด้วยรถไฟฟ้านั้น ปัจจุบันสามารถนั่งรถไฟฟ้า BTS มาลงสถานีวงเวียนใหญ่ได้ค่ะ แต่จะต้องต่อรถเข้ามาอีก ส่วนในอนาคตหากรถไฟฟ้าสายสีน้ำเงินส่วนต่อขยายแล้วเสร็จ สามารถนั่งมาลง "สถานีท่าพระ" ที่เป็นจุด Interchange เชื่อมต่อเส้น "บางซื่อ-ท่าพระ" กับเส้น "หัวลำโพง-บางแค" เข้าด้วยกัน ตัวสถานีนั้นอยู่ห่างจากโครงการ 100 เมตรค่ะ สำหรับกำหนดแล้วเสร็จของการก่อสร้างรถไฟฟ้านั้นคาดว่าจะให้บริการปี 2561 ค่ะ

แผนที่โครงข่ายรถไฟฟ้าแต่ละเส้นทางที่อยู่ใกล้โครงการ

ความคืบหน้าการก่อสร้างสถานีท่าพระ อยู่ระหว่างงานเทปูนคานยื่นสถานี (ข้อมูล ณ มกราคม 2559)
ขอบคุณข้อมูล : www.mrta-blueline.com

งานติดตั้งทางวิ่งรถไฟฟ้า ข้ามแยกท่าพระ เข้าเส้นเพชรเกษม (ข้อมูล ณ มกราคม 2559)
ขอบคุณข้อมูล : www.mrta-blueline.com
สภาพแวดล้อมใกล้เคียง
ตัวโครงการอยู่ติดถนนเพชรเกษม ปากซอยเพชรเกษม 9 พอดี สภาพแวดล้อมโดยรอบโครงการนั้นส่วนใหญ่เป็นบ้านพักอาศัย 1-2 ชั้น ตึกแถวและอาคารพาณิชย์ 2-3 ชั้นค่ะ สำหรับร้านค้าหรือร้านสะดวกซื้อใกล้ๆ โครงการนั้นค่อนข้างหายากสักหน่อยนะคะ แต่เมื่อการพัฒนาของโครงการรวมถึงรถไฟฟ้าส่วนต่อขายแล้วเสร็จ ก็น่าจะมีการพัฒนาพื้นที่เพิ่มเติมอย่างแน่นอนค่ะ

แผนที่ภาพรวมสถานที่รอบๆ โครงการ

เริ่มจากหน้าโครงการค่ะ มองตรงไปจะเป็นแยกท่าพระ

เดินเลี้ยวซ้ายออกจากโครงการจะเจอซอยเพชรเกษม 9 ซึ่งซอยนี้จะเป็นซอยตันค่ะ

บรรยากาศภายในซอยเพชรเกษม 9 ซึ่งด้านซ้ายจะเป็นพื้นที่โครงการ เป็นแนวยาวไปตลอดซอยเลยค่ะ

ภายในซอยมีโรงเรียนประสาทวิทยาอนุชนอยู่ค่ะ จะอยู่ตรงข้ามกับพื้นที่โครงการ

เดินออกจากซอยเพชรเกษม 9 กันค่ะ เวลาเราออกจากโครงการสามารถกลับรถก่อนถึงแยกท่าพระได้เลย
บรรยากาศข้างทางโดยรวมส่วนใหญ่จะเป็นอาคารพาณิชย์ค่ะ

เดินต่อมาอีกนิด ด้านซ้ายมือจะเป็นซอยเพชรเกษม 11 เป็นที่ตั้งของวิทยาลัยเทคโนโลยีสายประสิทธิ์บริหารธุรกิจ

ย้อนมาฝั่งขวามือของโครงการกันบ้างค่ะ ด้านนี้จะมีร้านอาหารตามสั่งและร้านก๋วยเตี๋ยวที่พอฝากท้องได้อยู่

เดินมาอีกนิดจะเป็นธนาคารกรุงไทยค่ะ

ถัดจากธนาคารกรุงไทยก็จะเป็นศูนย์การแพทย์ธนบุรีค่ะ
รูปแบบตึก และตัวโครงการโดยรวม
โครงการ "ไอดีโด ท่าพระ อินเตอร์เชนจ์" เป็นคอนโดมิเนียม High-Rise ความสูง 22 ชั้น จำนวน 1 อาคาร ลักษณะที่ดินเป็นรูปสี่เหลี่ยมผืนผ้าลึกขนานกับถนนเพชรเกษม ซึ่งตั้งอยู่ระหว่างซอยเพชรเกษม 7 และซอยเพชรเกษม 9 ด้านหน้าโครงการติดถนนเพชรเกษม ตัวอาคารมีระยะร่นห่างจากถนนเข้ามาประมาณ 120 เมตร สิ่งอำนวยความสะดวกกระจายอยู่บริเวณชั้น 1 ชั้น, ชั้น 6, ชั้น 21 และชั้นดาดฟ้าของอาคาร มีลิฟต์โดยสารมาให้ 4 ตัว และลิฟต์บริการอีก 1 ตัว อัตราส่วนเฉลี่ยในการใช้ลิฟต์อยู่ที่ประมาณ 211 ยูนิตต่อลิฟต์ 1 ตัว ซึ่งถือว่าค่อนข้างจะหนาแน่นทีเดียว เวลาเร่งด่วนคงจะต้องใจเย็นๆ และรอลิฟต์กันนานหน่อย เดี๋ยวเราไปดูกันค่ะว่า ตำแหน่งที่ตั้งของตัวโครงการแต่ละทิศจะติดกับอะไรบ้าง

อาคารฝั่งทิศเหนือ : ติดถนนเพชรเกษม มีอาคารพาณิชย์สูง และห้องเช่าที่สูงประมาณ 8 ชั้นอยู่ด้านหน้าอาคาร
วิวหันไปทางถนนจรัญสนิทวงศ์ แต่ทางโครงการแก้ไขปัญหาตรงจุดนี้ด้วยการปลูกต้นไม้ไว้บังตา
ทำให้ลูกบ้านไม่รู้สึกว่าโดนบังวิวจากอาคารภายนอก แต่จะได้ความรู้สึกร่มรื่นจากต้นไม้ และพื้นที่สีเขียวตรงนี้มาแทน

อาคารฝั่งทิศตะวันตก : เป็นวิวเปิดค่อนข้างเปิดโล่ง ติดบ้านพักอาศัยสูงไม่เกิน 3 ชั้น
วิวหันไปทางสี่แยกท่าพระ และทางฝั่งบางแค

อาคารฝั่งทิศใต้ : อยู่ติดชุมชนบ้านพักอาศัยเช่นกัน
วิวหันไปทางถนนรัชดา-ท่าพระ และถนนราชพฤกษ์ หรือทางห้างเดอะมอลล์ท่าพระ

อาคารฝั่งทิศตะวันออก : อยู่ติดบ้านพักอาศัยสูง 2-3 ชั้น วิวหันไปทางวงเวียนใหญ่

มุมมองจากชั้นดาดฟ้าของอาคารซึ่งทางโครงการจัดเป็นส่วนขนาดใหญ่แบบเต็มพื้นที่ พร้อมสระว่ายน้ำมาให้
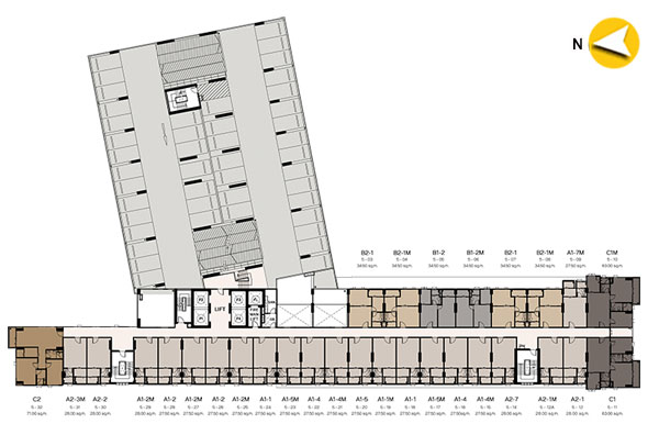
เดี๋ยวมาดูในส่วนของ Floor Plan ของโครงการกันค่ะ ว่าแต่ละชั้นมีอะไรอยู่ตรงไหนบ้าง

ชั้น 1 : ชั้นนี้เป็นส่วนของสวนหย่อม, ลู่สำหรับวิ่งจ๊อกกิ้ง, จุด Drop Off, Lobby, ห้องจดหมาย,
สำนักงานนิติบุคคล, ลิฟต์โดยสาร, ลิฟต์บริการ และพื้นที่จอดรถ

ชั้น 2-4 : เป็นพื้นที่สำหรับจอดรถทั้งหมด สามารถขึ้นลิฟต์ไปยังห้องพักจากลานจอดรถได้เลยค่ะ

ชั้น 5 : แบ่งเป็นพื้นที่จอดรถ และส่วนของห้องพักอาศัยจำนวน 30 ยูนิต

ตั้งแต่ชั้น 7-20 จะคล้ายกันค่ะ คือเป็นส่วนของห้องพักอาศัยจำนวน 50 ยูนิต/ชั้น
โดยโครงการนี้ จัดวางตำแหน่งของห้องแต่ละขนาดแยกออกจากกันได้ค่อนข้างชัดเจน ดังนี้
- ทิศตะวันตก และทิศเหนือเกือบทั้งหมด จะเป็นห้องแบบ Studio ขนาด 27.50 ตร.ม. - 28.00 ตร.ม.
- ทิศตะวันออก และทางฝั่งทิศใต้ เป็นห้องแบบ 1 ห้องนอน ขนาด 34.50 ตร.ม.
- ทิศเหนือ จะเป็นห้องนอนใหญ่แบบ 2 ห้องนอนขนาด 71.00 ตร.ม. และทิศใต้อีกบางส่วนจะเป็นแบบ 2 ห้องนอนขนาด 63.00 ตร.ม. ซึ่งจะตั้งอยู่ที่หัวมุมของอาคาร โดยแต่ละชั้นจะมีห้องแบบ 2 ห้องนอนเพียง 3 ห้องเท่านั้น

ชั้น 21 : เป็นส่วนของ Facility ประกอบด้วย ห้องฟิตเนส, ห้องโซเชียล คลับ, สกายเลาจน์, ห้องเกม, ห้องประชุม,
ห้องสตีม, ห้องซาวน่า, ห้องซักรีด และส่วนห้องพักอาศัยอีก 33 ยูนิต
ส่วนกลางและสิ่งอำนวยความสะดวก
ในส่วนของสิ่งอำนวยความสะดวกทางอนันดาไม่เคยทำให้ลูกบ้านผิดหวัง ซึ่งโครงการนี้ก็ยังคงจัดเต็มมาให้ลูกบ้านเหมือนเช่นเคย โดยครั้งนี้ได้ยกสิ่งอำนวยความสะดวกหลักๆ ไปไว้บนชั้นดาดฟ้า และชั้น 21 ของอาคาร เพื่อให้ลูกบ้านได้เทควิวแบบ 360 องศากันอย่างเต็มอิ่ม นอกจากนี้ยังมีบางส่วนที่กระจายอยู่ที่ชั้น 6 และชั้น 1 ของโครงการ ส่วนลานจอดรถจะอยู่ตั้งแต่ชั้น 1 - 5 สามารถจอดได้ทั้งหมด 344 คัน หรือคิดเป็นประมาณ 40% แบบไม่รวมจอดซ้อนคัน โดยสิ่งที่ทางโครงการให้มาก็จะมี
- Lobby รับสไตล์ Futuristic
- สระว่ายน้ำ White Cloud Pool ระบบเกลือแบบน้ำล้น ขนาด (กว้าง x ยาว) 15 x 50 เมตร ลึก 1.2 เมตร
- ห้องออกกำลังกาย
- สวนหย่อม พร้อมลู่วิ่งจ๊อกกิ้ง
- ห้องโซเชียล คลับ
- สกายเลาจน์
- ห้องเกม
- ห้องประชุม
- ลิฟต์โดยสารแบบล็อคชั้น 4 ตัว และลิฟต์บริการ 1 ตัว
- ระบบรักษาความปลอดภัย รปภ. 24 ชม.
- ระบบ Access control
- กล้อง CCTV

ทางเข้าออกหลักของโครงการติดถนนใหญ่เพชรเกษม วิ่งแบบสวนกันได้
ส่วนถนนภายในโครงการกว้าง 6 เมตร ตามมาตรฐาน

จากทางเข้าโครงการขับเข้ามาจะเจอกับจุด Drop Off ซึ่งอยู่ด้านหน้าประตูทางเข้าส่วนของ Lobby

ฝั่งทิศตะวันตกของอาคารถูกออกแบบให้เป็นสวนหย่อม พร้อมลู่วิ่งสำหรับให้ลูกบ้านได้มาออกกำลังกายในวันพักผ่อนสบายๆ

ชั้น 6 ของอาคาร ก็จัดเป็นสวนหย่อมเช่นกัน มีการปลูกต้นไม้ไว้สำหรับบังสายตาจากอาคารโดยรอบโครงการ

พื้นที่จอดรถของโครงการบริเวณชั้น 1- ชั้น 5

สิ่งอำนวยความสะดวกบนชั้น 21 ที่จัดมาให้ลูกบ้านอย่างเยอะ

และที่โดนเด่นอีกอย่างของโครงการนี้คือสระว่ายน้ำขนาดใหญ่ที่ตั้งอยู่บนชั้นดาดฟ้าของโครงการ

ภาพจำลองบรรยากาศ Lobby สุดหรูสไตล์ Futuristic บริเวณชั้น 1

ภาพจำลองบรรยากาศ Social Club ของโครงการบนชั้น 21

ภาพจำลองบรรยากาศ Sky Fitness บนชั้น 21 ที่ออกแบบเป็นกระจกใส สามารถเทควิวเมืองโดยรอบได้แบบเต็มๆ ตา

ภาพจำลองบรรยากาศ White Cloud Pool ที่ออกแบบให้สะท้อนกับเงาท้องฟ้า

ภาพจำลอง Scenic Bridge สะพานที่เชื่อมต่อกับส่วนของสระว่ายน้ำไปยังสวนลอยฟ้าขนาดใหญ่

ภาพจำลองบรรยากาศพื้นที่ส่วนกลางบนชั้นดาดฟ้าอีกมุมหนึ่งของโครงการ
ภาพห้องตัวอย่างและ Lay out
ห้องของโครงการนี้มีขายแบบ Fully Furnished มีเฟอร์นิเจอร์ให้ครบ เรียกว่าซื้อเพิ่มเติมอีกนิดหน่อยก็สามารถเข้าอยู่ได้เลย โดยสิ่งที่ทางโครงการให้มาก็จะมี ชั้นวางของ Built-in, ชั้นวางทีวี, ชุดโซฟา, โต๊ะทานข้าว, ตู้เสื้อผ้า Built-in, ฐานเตียงนอน, ฉากกั้นอาบน้ำ ส่วนเครื่องใช้ไฟฟ้าก็จัดให้มาเช่นกัน อาทิ เตาไฟฟ้าแบบฝัง, เครื่องดูดควัน,และแอร์ (Studio ได้ 1 ตัว, 1 ห้องนอนได้ 2 ตัว) โดยทุกห้องจะได้เป็นครัวปิดทั้งหมด โดยห้องของที่นี่แบ่งออกเป็น 3 Type ด้วยกัน
- ห้องแบบ Studio (1 ห้องนอน, 1 ห้องน้ำ, 1 ห้องครัวปิด) - เนื้อที่ 27.50 - 28.00 ตร.ม.
(คลิกเพื่อชมแปลนห้อง) - ห้องแบบ 1 ห้องนอน (1 ห้องนอน, 1 ห้องน้ำ, 1 ห้องครัวปิด) - เนื้อที่ 34.50 ตร.ม.
(คลิกเพื่อชมแปลนห้อง) - ห้องแบบ 2 ห้องนอน (2 ห้องนอน, 1 ห้องน้ำ, 1 ห้องครัวปิด) - เนื้อที่ 34.30 - 35.00 ตร.ม.
(คลิกเพื่อชมแปลนห้อง)
ภาพห้องตัวอย่างแบบ Studio

Layout ห้องตัวอย่าง ขนาด 28.00 ตร.ม.

ธรณีบริเวณประตูทางเข้าห้องยกสูงประมาณ 5 ซม. เป็นหินสังเคราะห์ สีเทาช่วยป้องกันฝุ่น และแมลงจากโถงทางเดิน
ประตูห้องจริงจะเป็นระบบ Digital Door Lock ของ Samsung

เดินเข้ามาในห้องจะเจอกับโซนห้องนั่งเล่น เชื่อมต่อโซนห้องนอน และถัดไปเป็นส่วนของห้องครัว และห้องน้ำ
พื้นห้องปูด้วยลามิเนตหนา 8 มม. ความสูงจากพื้นถึงฝ้าเพดานอยู่ที่ 2.6 เมตร
ไฟติดเพดานเป็นไฟดาวน์ไลท์ ผนังห้องได้วอลล์เปเปอร์สีขาวบางส่วน

ได้ชุดโต๊ะทานข้าว พร้อมชุดโซฟาขนาด 2 ที่นั่ง

ได้โต๊ะหัวเตียงเล่นระดับสำหรับวางโคมไฟ ด้านล่างเปิดมาเป็นลิ้นชักใส่ของ

ห้องจริงได้เบาะหนังที่ติดมาบริเวณหัวเตียงซึ่งเชื่อมต่อยาวไปจนถึงชุดโซฟาตามแบบนี้เลยค่ะ
แต่ฉากสีน้ำเงินที่ผนังหัวเตียงไม่ได้นะคะ



ได้เตียงนอนขนาด 5 ฟุต ไม่รวมฟูกที่นอน

อีกข้างของเตียงเป็นโต๊ะเครื่องแป้ง พร้อมเก้าอี้ทรงสตูลเบาะสี่เหลี่ยม

เยื้องกับปลายเตียงเป็นตู้เสื้อผ้าบานเปิดแบบ 4 บาน สูงจรดฝ้า แต่ตู้ที่จริงจะเป็นหน้าบานแบบทึบ
(เหมือนตู้เสื้อผ้าของห้องแบบ 1 ห้องนอน) ไม่ใช่กระจกแบบนี้นะคะ
มีที่จับง่ายต่อการเปิด-ปิด ใช้งาน

เปิดตู้ออกมาจะเป็นประมาณนี้ค่ะ ในตู้เสื้อผ้ามีไฟให้ด้วยนะคะ ดีจัง

ในห้องตัวอย่างนี้ทางโครงการดีไซน์เป็นประตูกระจกเงาแบบบานสไลด์เพิ่มขึ้นมาเพื่อเพิ่มความรู้สึกให้ห้องดูกว้างมากขึ้น
ซึ่งสามารถเลื่อนสลับไปมาได้ทั้ง 2 ฝั่ง ไม่ว่าจะเป็นฝั่งของห้องน้ำ หรือฝั่งของห้องครัว เก๋ดีนะคะ

ห้องครัวแบบปิด ได้ประตูกระจกบานสไลด์แบบ 2 ตอน กรอบอลูมิเนียมสีดำ รางประตูเซาะร่องสูงเสมอกับพื้น
พื้นห้องครัวปูด้วยกระเบื้องเซรามิกขนาด 30x30 ซม.
กล่องบังรางม่านไม่ได้นะคะต้องติดตั้งเอง

เคาน์เตอร์ครัว พร้อมตู้แบบลอยตัวด้านบนสูงจรดฝ้าของ Starmark มีที่วางไมโครเวฟอยู่ด้านบน เหนืออ่างล้างจาน
ที่ผนังติดกระจกกันเปื้อน ง่ายและสะดวกต่อการทำความสะอาด พร้อมราวแขวนอุปกรณ์เครื่องครัว
หน้าท็อปเป็นหินสังเคราะห์ ป้องกันความชื้น และรอยขีดข่วนได้ดี
อ่างล้างจานไม่มีที่พักจาน และก๊อกน้ำของ MEX

ได้เครื่องดูดควันแบบต่อท่อออกไปด้านนอกของ MEX และเตาไฟฟ้า 2 หัวของ MEX เช่นกัน
ใต้เคาน์เตอร์ครัวเป็นตู้เก็บของแบบบานเปิดปิดผิวหน้าท็อปสีเทา และลิ้นชักเก็บช้อนส้อมแบบ Soft Close

ฝั่งตรงข้ามเคาน์เตอร์ครัวเป็นตู้วางของแบบลอยตัว พร้อมชั้นวางของด้านบน
ด้านข้างเป็นพื้นที่สำหรับตั้งตู้เย็น สามารถวางตู้เย็นได้ขนาด 8 คิว

ประตูระเบียงแบบบานสไลด์สีเขียวตัดแสง 2 ตอน กรอบอลูมิเนียมสีดำ ธรณีประตูยกสูงประมาณ 5 ซม.

ได้ตัวล็อคประตูหน้าตาแบบนี้

จุดนี้จะเป็นระเบียงสำหรับซักล้าง วางเครื่องซักผ้า ต่อท่อน้ำดีน้ำทิ้ง และก๊อกน้ำมาให้พร้อม

คอมเพรสเซอร์แขวนด้านบนเหนือเครื่องซักผ้า และมีโคมไฟกิ่งติดผนังอลูมิเนียมสีดำทรงสี่เหลี่ยมมาให้ 1 ดวง

ธรณีห้องน้ำยกสูงช่วยป้องกันน้ำไหลออกมาด้านนอกได้ดี
พื้นกระเบื้องสีครีมขนาด 60x60 ซม.

อ่างล้างหน้าเซรามิคจาก American Standard ด้านล่างเป็นตู้เก็บของ พร้อมกระจกเงาบานใหญ่

โถสุขภัณฑ์ของ American Standard มีสายฉีดชำระอยู่ทางด้านขวามือ

กั้นแบ่งโซนเปียกโซนแห้งด้วยฉากกั้นอาบน้ำกระจกเทมเปอร์ พร้อมธรณียกสูงอีกประมาณ 5 ซม.
ได้หน้าต่างบานกระทุ้ง 1 บาน พร้อมพัดลมระบายอากาศติดเพดาน
ไฟในห้องน้ำเป็นแบบดาวน์ไลท์

ทางโครงการเพิ่มลูกเล่นให้กับผนังส่วนอาบน้ำด้วยกระเบื้องโมเสกตามแบบนี้
ได้ฝักบัวสายอ่อน และที่วางสบู่ของ American Standard แต่ไม่ได้เครื่องทำน้ำอุ่นนะคะ

ที่ประตูกระจกมีตัวจับอลูมิเนียมสีเงินมาให้เพิ่มความสะดวกในการเปิด-ปิด

หน้าตาสวิตช์เปิด-ปิดภายในห้อง
ภาพห้องตัวอย่างแบบ 1 ห้องนอน

Layout ห้องแบบ 1 ห้องนอนขนาด 34.50 ตร.ม.

เข้ามาจะเจอกับส่วนของโซนนั่งเล่น ถัดเข้ามาเป็นส่วนของห้องครัว และห้องน้ำ
ส่วนห้องนอนจะอยู่ทางด้านซ้ายสุดของห้อง (ด้านหลังชั้นวางทีวี)

ห้องนี้จะได้โซฟาขนาด 4 ที่นั่งซึ่งใหญ่กว่าห้องที่แล้ว โต๊ะทานอาหารเป็นกระจกสี่เหลี่ยมตัดมุมให้มนเหมือนห้องที่แล้ว

มีระยะดูทีวีประมาณ 1.5 เมตร ผนังด้านหลังชั้นวางทีวีห้องจริงจะเป็นผนังทึบนะคะ ไม่ใช่กระจกแบบนี้

ลืมบอกว่าติดกับประตูทางเข้าห้อง ทางโครงการ Built-in ตู้เก็บของทรงสูงแบบบานเปิดมาให้ด้วย
สำหรับไว้เก็บรองเท้า หรือของใช้เล็กๆ น้อยๆ

ได้ชั้นวางทีวี Built-in ตามแบบนี้ค่ะ

เปิดตู้มาเป็นลิ้นชักสำหรับเก็บของ 2 ช่อง

ครัวห้องนี้เป็นแบบครัวปิด ประตูครัวแบบบานสไลด์เช่นกัน แต่ไม่ได้ที่บังรางม่านนะคะ

พื้นที่ครัวห้องนี้จะใหญ่กว่าห้องที่แล้ว เคาน์เตอร์ครัวได้คล้ายกันกับห้องที่แล้ว
ต่างกันที่มีขนาดใหญ่มากขึ้น ทำให้มีพื้นที่สำหรับเตรียมอาหารมากชั้น มีลิ้นชักและพื้นที่เก็บของมากขึ้น

เปิดตู้และลิ้นชักออกมาหน้าตาประมาณนี้ ส่วนเครื่องซักผ้าจะตั้งอยู่ใต้เคาน์เตอร์ครัวแบบนี้ค่ะ

เตาไฟฟ้าแบบฝัง 2 หัว และเครื่องดูดควันของ MEX

ตู้เก็บของด้านบนเป็นบานเปิดแบบ Soft Close ทั้งหมด

ห้องนี้จะไม่ติดกับระเบียงเหมือนห้องที่แล้ว แต่ได้เป็นหน้าต่างบานกระทุ้งเพื่อช่วยระบายอากาศแทน
ส่วนหน้าต่างด้านล่างเป็นแบบบาน Fix

สุขภัณฑ์ได้ห้องน้ำเป็นของ American Standard ได้เหมือนกันกับห้องที่แล้วทุกอย่าง

ในห้องได้เตียงนอนขนาด 5 ฟุต ไม่รวมฟูกที่นอน

ได้ชั้นวางทีวีแบบ Built-in บริเวณปลายเตียง

ข้างเตียงเป็น Built-in เป็นโต๊ะหัวเตียงขนาดเล็กมาให้ พร้อมต่อปลั๊กสำหรับใช้งานมาให้ด้วย

ไปดูพื้นที่อื่นๆ ให้ห้องนอนกันบ้างค่ะ

ข้างเตียงอีกฝั่งได้ชั้นวางของ Built-in ทรงสูงจรดฝ้า ด้านบนสุด และล่างสุดของตู้ออกแบบให้เป็นตู้เก็บของ

ได้ตู้เสื้อผ้า Built-in สูงจรดฝ้า แบบบานเปิด 4 บาน Soft Close หน้าบานทึบ มีช่องเก็บของด้านบน
คนตัวเล็กๆ อาจจะเก็บของลำบากนิดนึง

ภายในตู้ด้านในมีราวสำหรับแขวนเสื้อผ้า พร้อมลิ้นชัก และชั้นวางของด้านบนแบบนี้

โต๊ะเครื่องแป้งแบบ Built-in จะอยู่ตรงข้ามตู้เสื้อผ้า ตั้งชิดติดกับประตูระเบียง
เวลาที่เลื่อนเก้าอี้ออกมานั่งใช้งาน อาจทำให้สูญเสียพื้นที่ในการเดินเข้าออกบริเวณระเบียงไปบ้างพอสมควร

ราวระเบียงแบบเหล็กกล่องสีเทา พื้นที่ระเบียงกว้างกว่าห้องที่แล้ว

มีก๊อกน้ำแบบเตี้ยมาให้ 1 จุด คอมเพรสเซอร์แอร์แขวนไว้ทางด้านขวาของระเบียง
ได้ไฟกิ่งติดอยู่เหนือประตูเหมือนห้องที่แล้ว
ราคาและค่าใช้จ่ายที่เกี่ยวข้องโดยประมาณ
ราคาเริ่มต้น Studio พื้นที่ใช้สอยขนาด 27.5 ตร.ม. ราคา 2.69 ล้านบาท
ราคาเริ่มต้น 1 ห้องนอน พื้นที่ใช้สอยขนาด 34.50 ตร.ม. ราคาเริ่มต้น 3.6 ล้านบาท
ราคาเริ่มต้น 2 ห้องนอน พื้นที่ใช้สอยขนาด 63.00 ตร.ม. ราคาเริ่มต้น 6.5 ล้านบาท
ราคาเริ่มต้น 1 ห้องนอน พื้นที่ใช้สอยขนาด 34.50 ตร.ม. ราคาเริ่มต้น 3.6 ล้านบาท
ราคาเริ่มต้น 2 ห้องนอน พื้นที่ใช้สอยขนาด 63.00 ตร.ม. ราคาเริ่มต้น 6.5 ล้านบาท
ค่าส่วนกลาง : 45 บาท/ตร.ม./เดือน (ชำระล่วงหน้า 1 ปี) ผู้ซื้อเป็นผู้ชำระ
เงินกองทุนแรกเข้า : 500 บาท/ตร.ม. (เก็บครั้งเดียว) ผู้ซื้อเป็นผู้ชำระ
เงินกองทุนแรกเข้า : 500 บาท/ตร.ม. (เก็บครั้งเดียว) ผู้ซื้อเป็นผู้ชำระ
ภาพรวมโดยสรุปของโครงการ
- การเดินทางเข้า-ออกโครงการ - การเดินทางที่สะดวกที่สุดในตอนนี้ก็จะเป็นรถยนต์ค่ะ เส้นทางหลักเลยก็คือมาจากวงเวียนใหญ่เข้าถนนเพชรเกษม สำหรับการจราจรในย่านนี้ไม่ค่อยหนาแน่น อาจไม่ค่อยมีปัญหาเรื่องการจราจรมากนัก แต่เมื่อรถไฟฟ้าสายสีน้ำเงินส่วนต่อขยายแล้วเสร็จ สถานีที่ใกล้โครงการที่สุดคือ "สถานีท่าพระ" เป็นจุด Interchange เชื่อมต่อสายหัวลำโพง-บางแค และสายบางซื่อ-ท่าพระ เข้าด้วยกัน ตัวสถานีอยู่ห่างจากโครงการเพียง 100 เมตรเท่านั้น ซึ่งจะทำให้การเดินทางไปมาระหว่างชานเมืองกับในเมืองสะดวกสบายขึ้นอย่างมากเลยค่ะ
- ทำเลรอบโครงการ - สภาพแวดล้อมรอบๆ โครงการในปัจจุบันนั้นยังไม่ค่อยมีร้านค้า, ร้านอาหาร รวมถึงร้านสะดวกซื้อทำให้การหาซื้อข้าวของยามฉุกเฉินนั้นอาจจะค่อนข้างยากอยู่ค่ะ แต่หากจะหาซื้อของใช้ของกินแบบครบวงจรเลย ก็เป็นที่ตลาดพลูหรือตลาดวงเวียนใหญ่ บริเวณใกล้เคียงยังมีธนาคารรวมถึงโรงเรียนและศูนย์การแพทย์ โซนนี้ยังไม่ค่อยมีตึกสูงๆ ให้เห็นมากนัก ส่วยใหญ่เป็นอาคารพาณิชย์สูงไม่เกิน 5 ชั้น
- อาคารและตัวโครงการโดยรวม - เป็นอาคาร High-Rise สูง 22 ชั้น จำนวน 1 อาคาร มีจำนวนยูนิตเพื่อการอยู่อาศัยทั้งหมด 844 ยูนิต ห้องพักส่วนใหญ่หันหน้าเข้าหาทิศตะวันออก และตะวันตก ที่จอดรถจะอยู่บริเวณชั้น 1-5 ส่วน Facility ที่จัดมาให้มีขนาดใหญ่ และเยอะมากเมื่อเทียบกับจำนวนลูกบ้าน ซึ่งจะอยู่ที่ชั้น 1, ชั้น 6, ชั้น 21 และชั้นดาดฟ้า แต่ที่โดดเด่นที่สุดน่าจะเป็นสระว่ายน้ำ White Cloud Pool ขนาดใหญ่ ที่สามารถมองวิวได้แบบ 360 องศา ส่วนลิฟต์ของที่นี่แบ่งเป็นลิฟต์โดยสาร 4 ตัว และลิฟต์บริการ 1 ตัว อัตราส่วนการใช้ลิฟต์เฉลี่ยอยู่ที่ประมาณ 211 ยูนิตต่อลิฟต์ 1 ตัว ซึ่งถือว่าค่อนข้างหนาแน่นเลยทีเดียวยิ่งในชั่วโมงเร่งด่วนอาจต้องรอนานหน่อย ปริมาณที่จอดรถอยู่ที่ 40% แบบไม่รวมจอดซ้อนคัน
- รูปแบบห้องและวัสดุ - ลักษณะห้องพักอาศัยแบ่งเป็น 3 แบบหลักด้วยกัน ตั้งแต่ Studio - 2 ห้องนอน โดยห้อง Studio มีขนาดเริ่มต้นที่ 27.50 ตร.ม. ถือว่าเป็นขนาดที่ไม่เล็กจนเกินไป และสามารถอยู่อาศัยได้จริงอย่างสบายๆ ไม่อึดอัด ทุก Type ออกแบบฟังก์ชั่นการจัดวางห้องได้ดี และเป็นสัดส่วนชัดเจน มีห้องครัวแบบครัวปิดไว้ด้านในสุด ช่วยเก็บกลิ่นได้ดีเวลาทำอาหาร โดยเฉพาะห้องครัวที่อยู่ติดระเบียง ห้องขายแบบ Fully Furnished ได้เฟอร์นิเจอร์แบบ Built-in ครบ เครื่องใช้ไฟฟ้าบางส่วน ซื้อเพิ่มนิดหน่อยเข้าอยู่ได้เลย คุณภาพของวัสดุอยู่ในเกณฑ์ที่ค่อนข้างดีเมื่อเทียบกับราคา
สถานะปัจจุบันของโครงการ
โครงการ ไอดีโด ท่าพระ อินเตอร์เชนจ์ ปัจจุบันผ่าน EIA เรียบร้อยแล้ว โดยได้เปิด Pre-Sales ไปเมื่อวันที่ 13-14 ก.พ. 2559 ที่ผ่านมา ซึ่งได้รับการตอบรับจากลูกค้าเป็นอย่างดี โดยตัวโครงการเริ่มดำเนินการก่อสร้างโครงการแล้วตั้งแต่เดือน กุมภาพันธ์ 2559 และจะก่อสร้างแล้วเสร็จประมาณเดือน มกราคม 2561 สามารถเข้าชมห้องตัวอย่างได้แล้ววันนี้ที่สำนักงานขาย ตั้งแต่เวลา 9.00 น. - 18.00 น. ของทุกวัน
สอบถามเพิ่มเติม Call Center 02-316-2222
แท็กที่เกี่ยวข้อง
เขียนโดย
เช็คราคา.คอม
Condo Guru
พูดคุยกับกูรูได้ที่



