
รีวิว-เยี่ยมชม เมย์แฟร์ เพลส สุขุมวิท 50 (Mayfair Place Sukhumvit 50)
วันนี้ Checkraka.com จะพามาชมคอนโดมิเนียมพร้อมอยู่ เฟอร์นิเจอร์ครบ พร้อม Smart Home Function ทุกยูนิต 1 ห้องนอนหน้ากว้าง 7 เมตร เพดานสูง 3 เมตร ใกล้รถไฟฟ้า BTS อ่อนนุช โครงการนี้มีชื่อว่า เมย์แฟร์ เพลส สุขุมวิท 50 (Mayfair Place Sukhumvit 50) คอนโดมิเนียม High Rise จากพีทีเอฟ เรียลตี้ (2015) ออกแบบสไตล์ Modern Classic โดดเด่นกว่าใครในย่านสุขมวิท 50 เลยทีเดียว เดี๋ยวเราไปชมตัวอย่างห้องกันค่ะ
ข้อมูลโครงการ
- เจ้าของและผู้พัฒนาโครงการ : บริษัท พีทีเอฟ เรียลตี้ (2015) จำกัด
- ที่ตั้งโครงการ : ซอยสุขุมวิท 50 ถนนสุขุมวิท แขวงพระโขนง เขตคลองเตย กรุงเทพฯ 10110
- อาคารชุดพักอาศัยสูง : 14 และ 17 ชั้น จำนวน 2 อาคาร และอาคารจอดรถ 8 ชั้น จำนวน 1 อาคาร
- ขนาดที่ดินทั้งโครงการ : 3-1-72 ไร่
- ลิฟต์ : โดยสาร 2 ตัว และสำหรับบริการ 1 ตัว
- ห้องพักอาศัย : แบบ 1 Bedroom ขนาด 30.33-36.48 ตร.ม. แบบ 2 Bedroom ขนาด 41.40-71.56 ตร.ม. และ แบบ 3 Bedroom ขนาด 78.40-111.84 ตร.ม.
- ที่จอดรถ : 57% ไม่รวมจอดซ้อนคัน
- ราคาเริ่มต้น : 1 ห้องนอน ราคาเริ่มต้น 3.49 ล้านบาท (ข้อมูล ณ 25 ม.ค. 59)
- สถานะโครงการ : โครงการจะสร้างเสร็จประมาณเดือนธันวาคม 2561
- วันที่เข้าเยี่ยมชม-รีวิวคอนโด : 25 ม.ค. 59
เจ้าของและผู้พัฒนาโครงการ
บริษัท พีทีเอฟ เรียลตี้ (2015) จำกัด เกิดจากการรวมกันของสองบริษัทระหว่าง บริษัท แฟร์เท็กส์ไทล์ แอนด์ ลอจิสติกส์ (ประเทศไทย) จำกัด และบริษัท แพน ไทย เรียลเอสเตท จำกัด เพื่อพัฒนาวงการอสังหาริมทรัพย์ในรูปแบบและแนวความคิดใหม่ที่ให้ความพึงพอใจสูงสุดแก่ลูกค้าเพื่อการพักอาศัยในคอนโดมิเนียม มีทุนจดทะเบียน 200 ล้านบาท (ชำระเต็ม) โดยบริหารจัดการโดยทีมงานที่มีประสบการณ์การพัฒนาอสังหาริมทรัพย์มามากกว่า 30 ปี ผลงานที่ผ่านมา ได้แก่ คอนโดมิเนียม ทาวน์โฮม อาคารพาณิชย์ อาคารสำนักงาน และศูนย์การค้า ทั้งในไต้หวัน จีน สหรัฐอเมริกา และ กรุงเทพฯ ปัจจุบันได้พัฒนาโครงการคอนโดมิเนียมรูปแบบใหม่ภายใต้แบรนด์ "Mayfair Place" ให้เป็นที่พักอาศัยที่มีคุณภาพสูงและมีมาตรฐานการบริการที่ดีที่สุด โดยโครงการ Mayfair Place Sukhumvit 64 ได้ประสบความสำเร็จไปแล้วอย่างสวยงามเมื่อปลายปี 2558 และได้พัฒนาโครงการอย่างต่อเนื่องมาเป็นโครงการ Mayfair Place Sukhumvit 50
ทำเลที่ตั้ง
โครงการเมย์แฟร์ เพลส สุขุมวิท 50 ตั้งอยู่ในซอยสุขุมวิท 50 แขวงพระโขนง เขตคลองเตย กรุงเทพฯ 10110 โดยตัวโครงการอยู่ห่างจากปากซอยสุขุมวิท 50 ประมาณ 600 เมตรเท่านั้น

แผนที่โครงการ "เมย์แฟร์ เพลส สุขุมวิท 50 (Mayfair Place Sukhumvit 50)"

ภาพแผนที่แจกแจงให้เห็นรายละเอียดใกล้-ไกลของโครงการกับสถานที่ หรือ Landmark รอบๆ ที่น่าสนใจ
Google Map พิกัด : 13.7047116,100.5927023

"เกตเวย์ เอกมัย" ระยะทางห่างจากโครงการประมาณ 2.8 กม.

"รพ.สุขุมวิท" ระยะทางห่างจากโครงการประมาณ 2.7 กม.

"รพ.กล้วยน้ำไท" ระยะทางห่างจากโครงการประมาณ 2.5 กม.

"ม.กรุงเทพ วิทยาเขตกล้วยน้ำไท" ระยะทางห่างจากโครงการประมาณ 2.1 กม.

"บิ๊กซี เอ็กซ์ตร้า อ่อนนุช" ระยะทางห่างจากโครงการประมาณ 1 กม.

"เทสโก้ โลตัส อ่อนนุช" ระยะทางห่างจากโครงการประมาณ 600 ม.

"Wells International School" ระยะทางห่างจากโครงการประมาณ 1 กม.

"ฟิล (Phill)" ระยะทางห่างจากโครงการประมาณ 1.1 กม.
การเดินทางเข้า-ออกโครงการ
การเดินทางเข้า-ออกโครงการนั้นมีเส้นทางหลักหลายเส้นทาง ดังนี้ค่ะ
1. การเดินทางด้วยรถยนต์
- ทางเข้าโครงการเส้นทางที่ 1 (ทางพิเศษเฉลิมมหานคร - สุขุมวิท 50)

มาดูภาพประกอบการเดินกันนะคะ โดยเราจะเริ่มต้นจากทางพิเศษเฉลิมมหานคร ตรงด่านเพชรบุรีค่ะ








จุดสังเกตง่ายๆ เลย ก็คือ Sales Gallery สีส้มค่ะ
- ทางเข้าโครงการเส้นทางที่ 2 (ถนนสุขุมวิท - สุขุมวิท 50)

- ทางออกโครงการเส้นทางที่ 1 (สุขุมวิท 50 - ทางด่วนรามอินทรา-อาจณรงค์)

- ทางออกโครงการเส้นทางที่ 2 (สุขุมวิท 50-ถนนสุขุมวิท)

2. การเดินทางด้วยรถสาธารณะอื่นๆ
บริเวณหน้าโครงการนั้นมี "วินมอเตอร์ไซค์" และ "รถสองแถว" วิ่งผ่าน โดยเริ่มตั้งแต่ปากซอยสุขุมวิท 50 บริเวณโลตัสอ่อนนุชเลยค่ะ สามารถเลือกนั่งมาลงหน้าโครงการได้เลยค่ะ

วินมอเตอร์ไซค์จะอยู่บริเวณปากซอยสุขุมวิท 50 ข้างๆ โลตัสอ่อนนุช

รถสองแถวสีแดง สาย"คอนโดเอื้ออมรสุข-โลตัส-สุขุมวิท 50"
โดยรถจะวิ่งตามถนนทางรถไฟสายเก่า ทะลุมายังซอยสุขุมวิท 50 มาถึงบริเวณโลตัสอ่อนนุชเลยค่ะ
3. การเดินทางด้วยรถไฟฟ้า
สามารถเดินทางด้วยรถไฟฟ้า BTS โดยลง "สถานีอ่อนนุช" ค่ะ ระยะทางห่างจากโครงประมาณ 600 ม. เท่านั้น


ใช้ทางออกที่ 2 (ฝั่งโลตัส อ่อนนุช)
สภาพแวดล้อมใกล้เคียง
สภาพแวดล้อมรอบๆ โครงการภายในซอยสุขุมวิท 50 นั้น จะเป็นตรอกซอกซอยเล็กๆ แยกออกไปอีก ส่วนใหญ่ยังคงเป็นบ้านพักอาศัย 1-2 ชั้นค่ะ มีอพาร์ตเมนต์สูงๆ อยู่บ้าง แต่ไม่หนาแน่น บรรยากาศค่อนข้างร่มรื่นมีต้นไม้เขียวๆ อยู่พอสมควร

มองออกไปหน้าโครงการจะเจอ 7-ELEVEN เลยค่ะ ข้ามถนนไปปุ๊ปก็ซื้อของได้สบายๆ

เดินไปทางขวามือของโครงการกันก่อนค่ะ
บรรยากาศภายในซอยค่อนข้างเงียบสงบ คึกคักแต่ไม่พลุกพล่าน

เดินไปเรื่อยๆ จะเจอคอนโด "เมธาวนนท์ แมนเนอร์" เป็นคอนโดสูง 8 ชั้น
ระยะทางห่างจากโครงการประมาณ 35 ม.

ข้ามถนนไปฝั่งตรงข้ามโครงการกันค่ะ
"7-ELEVEN" จะอยู่ห่างจากโครงการประมาณ 15 ม. เท่านั้น

ถัดจาก 7-ELEVEN ไปทางซ้ายมือจะเป็นโรงเรียนสอนโยคะ "Arati Yoga Center"
ระยะทางห่างจากโครงการประมาณ 35 ม.

บรรยากาศข้างทางก็จะมีร้านทำผม, ร้านนวด, ร้านอาหารเล็กๆ อยู่พอสมควรเลยค่ะ

เดิมชิลมาเรื่อยๆ จะเป็น "VX The Fifty Hostel" มีคาเฟ่เก๋ๆ อยู่ข้างหน้าด้วย
ระยะทางห่างจากโครงการประมาณ 80 ม.
รูปแบบตึก และตัวโครงการโดยรวม
ตัวที่ตั้งโครงการเข้าไปด้านในจาก BTS อ่อนนุช ประมาณ 600 เมตร มีจำนวน 2 อาคาร และอาคารจอดรถ 1 อาคาร มีจำนวนห้องพักอาศัยทั้งหมด 353 ยูนิต โดยทั้ง 2 อาคาร หันหน้าไปทางทิศตะวันออกเฉียงใต้ ที่จะเป็นซอยสุขุมวิท 50 แต่ห้องส่วนใหญ่จะหันหน้าไปทางทิศตะวันตกเฉียงใต้และตะวันออกเฉียงเหนือค่ะ การออกแบบเน้นความโมเดิร์นและความหรูหรา ซึ่ง Master Plan และ Floor Plan จะหน้าตาเป็นอย่างไรนั้นไปชมกันค่ะ

Master Plan โครงการ เมย์แฟร์ เพลส สุขุมวิท 50
อาคาร A

Floor Plan อาคาร A ชั้น 1

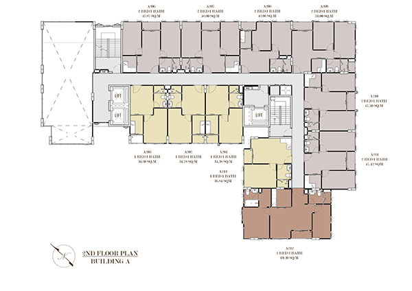
Floor Plan อาคาร A ชั้น 2

Floor Plan อาคาร A ชั้น 3-12

Floor Plan อาคาร A ชั้น 12A-14
อาคาร B

Floor Plan อาคาร B ชั้น 1

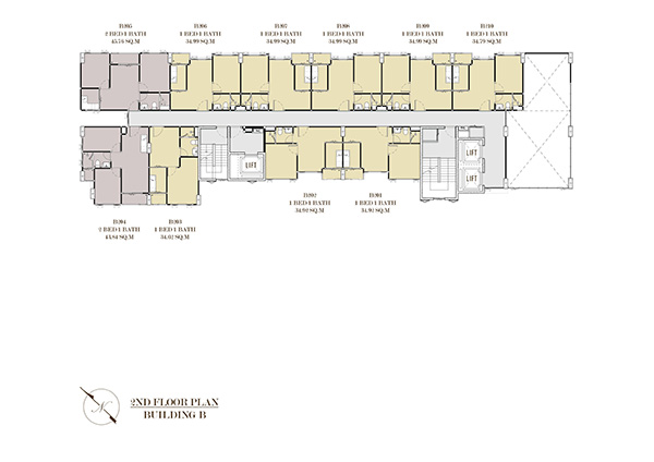
Floor Plan อาคาร B ชั้น 2

Floor Plan อาคาร B ชั้น 3-17
อาคาร C (อาคารจอดรถและส่วนกลาง)

Floor Plan อาคาร C ชั้น 1

Floor Plan อาคาร C ชั้น 2-6

Floor Plan อาคาร C ชั้น 7
ส่วนกลางและสิ่งอำนวยความสะดวก

Plan ส่วนกลางที่ชั้นดาดฟ้า
ส่วนกลางและสิ่งอำนวยความสะดวกที่ทางโครงการจัดมาให้ลูกบ้านหลักๆ จะอยู่ที่ชั้นดาดฟ้าของอาคารจอดรถค่ะ ซึ่งชั้นสำหรับจอดรถคือชั้นที่ 2-7 สามารถจอดได้ 57% ไม่รวมจอดซ้อนคัน โดยส่วนกลางที่ให้มาทั้งหมดมีดังนี้
- โถงต้อนรับ (Lobby)
- ลานสังสรรค์ Bar-B-Q Area
- ห้องซ้อมกอล์ฟ (Golf Simulators)
- ห้องอเนกประสงค์ (Multi-Function)
- ห้องออกกำลังกาย (fitness)
- ห้องสตีม (Steam room)
- สระว่ายน้ำ (สระเด็กและสระผู้ใหญ่)
- จากุซซี่ (Jacuzzi)
- สวนพักผ่อน (Roof Top Garden)
- ห้องสมุด (Library)
- พื้นที่ทำงาน (Business Center)
- ลู่วิ่งออกกำลังกาย (Jogging Track)
- ไวไฟที่โถงต้อนรับ (Wifi in Lobby)
- รถรับส่ง (Shuttle Service)
- ลิฟต์โดยสาร 2 ตัว
- ที่จอดรถประมาณ 57%
- ระบบรักษาความปลอดภัย รปภ. 24 ชม.
- ระบบ Access control
- กล้อง CCTV
- Smart Home Function

ทางเข้าออกโครงการมีทางเดียวค่ะ คือด้านซอยสุขุมวิท 50

อาคารจะมี 3 อาคารด้วยกัน โดยด้านหน้าสุดจะเป็นอาคารจอดรถค่ะ ด้านล่างจะเป็นร้านค้าทั้งหมด 4 ร้าน
ส่วนบนชั้นดาดฟ้าจะเป็นศูนย์รวมของส่วนกลาง

ชั้นบนสุดจะเป็นส่วนกลางค่ะ ประกอบไปด้วยสระว่ายน้ำยาว 27 เมตร ลึก 1.2 เมตร เป็นระบบน้ำเกลือ
นอกจากนั้นก็ยังมีฟิสเนส สตีมรูม ห้องอเนกประสงค์ ห้องซ้อมกอล์ฟ และลานย่างบาร์บีคิวอีกด้วย

ส่วนรอบๆ โครงการก็จะเป็นลานวิ่งจ๊อกกิ้งค่ะ

ที่มุมสุดแปลงที่ดินด้านหลังจะเป็นสนามเด็กเล่น

ระหว่างทางวิ่งก็ไม่ต้องกลัวร้อนค่ะ มีต้นไม้ให้ร่มเงาตลอดทาง

ทางขึ้นอาคารจะหันหน้าเข้าหากันค่ะ

โถงต้อนรับ

ด้านในตกแต่งด้วยสไตล์หรูหรา

พื้นที่นั่งเล่นรวม สามารถมาทำงาน อ่านหนังสือได้ค่ะ

บรรยากาศฟิตเนสยามค่ำคืน
ภาพห้องตัวอย่างและ Lay out
ห้องของโครงการนี้ขายแบบ Fully Furnished ได้ทั้งเฟอร์นิเจอร์แบบ Built-in และเฟอร์นิเจอร์จาก Chic Republic ค่ะ
ห้องพักอาศัยแบ่งออกเป็น 3 แบบ คือ 1 ห้องนอน 2 ห้องนอน และ 3 ห้องนอน โดยมีขนาดต่างๆ ดังนี้ค่ะ
ห้องแบบ 1 ห้องนอน 1 ห้องน้ำ :
- A1 พื้นที่ใช้สอย 34.79 - 34.99 ตร.ม. (คลิกเพื่อชมแปลนห้อง)
- A2 พื้นที่ใช้สอย 34.62 ตร.ม. (คลิกเพื่อชมแปลนห้อง)
- A3 พื้นที่ใช้สอย 36.84 ตร.ม. (คลิกเพื่อชมแปลนห้อง)
ห้องแบบ 2 ห้องนอน 1 ห้องน้ำ :
- B1 45.76 - 48.00 ตร.ม. (คลิกเพื่อชมแปลนห้อง)
- B2 43.84 - 44.10 ตร.ม. (คลิกเพื่อชมแปลนห้อง)
- B3 41.40 ตร.ม. (คลิกเพื่อชมแปลนห้อง)
- B4 42.06 ตร.ม. (คลิกเพื่อชมแปลนห้อง)
- B5 51.00 ตร.ม. (คลิกเพื่อชมแปลนห้อง)
ห้องแบบ 2 ห้องนอน 2 ห้องน้ำ :
- C1 69.20 ตร.ม. (คลิกเพื่อชมแปลนห้อง)
- C2 71.65 ตร.ม. (คลิกเพื่อชมแปลนห้อง)
ภาพห้องตัวอย่างแบบ 1 ห้องนอน 1 ห้องน้ำ ขนาด 35 ตร.ม.

Layout ห้องแบบ 1 ห้องนอน 1 ห้องน้ำ ขนาด 35 ตร.ม.

Digital Door Lock ให้ทุกห้องค่ะ ยี่ห้อ Locpro สามารถปลดล็อกได้ 3 แบบคือ กดรหัส ใช้คีย์การ์ด และใช้กุญแจค่ะ

เข้ามาในห้องจะเจอห้องน้ำทางขวามือ ซ้ายมือจะเป็นโต๊ะรับประทานอาหาร ส่วนพื้นที่นั่งเล่นจะอยู่ด้านหน้าห้องนอนค่ะ
ความสูงจากพื้นถึงฝ้าอยู่ที่ 3 เมตร ทุกห้องเลยค่ะ เรียกว่าสูงโปร่งมากๆ ทำให้ไม่อึดอัด

ส่วนนี้เป็นพื้นที่วางโต๊ะรับประทานอาหาร ซึ่งตรงนี้มีพื้นที่ว่างสามารถวางโต๊ะขนาดใหญ่กว่านี้ได้นะคะ

ทางเข้าครัวจริงๆ จะมีประตูกระจกกั้นให้ค่ะ ป้องกันกลิ่นรบกวนเข้าไปในห้องอื่นๆ
ส่วนพื้นของห้องครัวและพื้นของห้อง (ยกเว้นห้องนอนและห้องน้ำ) จะเป็นพื้นแกรนิตโต้ค่ะ

เซ็ตเคาน์เตอร์ครัวนี้ทางโครงการให้ทั้งเซ็ตเลยค่ะ โดยพื้นผิวจะเป็นหินสังเคราะห์สวยและง่ายต่อการทำความสะอาด
มาพร้อมกับซิงค์ล้างจาน ตู้และลิ้นชักเก็บของ เตาไฟฟ้า และไมโครเวฟ

ส่วนบานพับของชั้นเก็บของด้านบนผิวหน้าเป็นไฮกลอส ผิวเงา หมดกังวลเรื่องคราบน้ำมันเกาะฝังตัว เพราะเช็ดล้างทำความสะอาดง่ายมากๆ และทางโครงการยังให้เครื่องดูดควันมาด้วยค่ะ อยู่ด้านบนของเตาไฟฟ้า

ถัดออกไปจากครัวก็เป็นระเบียงค่ะ

ตัวรั้วกันตกเป็นกระจก

มุมจากอีกด้านหนึ่งของห้องค่ะ จะเห็นว่าห้องขนาด 35 ตร.ม. เท่านั้น แต่ว่าห้องดูกว้างมาก

ตรงนี้เป็นพื้นที่รับแขกและเอาไว้สำหรับนั่งเล่นค่ะ

ห้องนอนและห้องน้ำจะอยู่ติดกันเลย เดี๋ยวเราไปดูห้องนอนกันก่อนดีกว่าค่ะ

ห้องนอนสามารถวางเตียง 5-6 ฟุตได้คะ ส่วนปลายเตียงจะเหลือพื้นที่เพียงเล็กน้อย
หากจะติดตั้งทีวีต้องเป็นประเภทแขวนผนังค่ะ พื้นของห้องนอนจะเป็น Engineering Wood ทนน้ำ ไม่บวม

ห้องน้ำกว้างเลยทีเดียว สุขภัณฑ์สวยหรูของอเมริกัน แสตนดาร์ด มี Shower Box กั้นส่วนเปียกส่วนแห้งด้วยนะคะ

มีฝักบัวและเรนชาวเวอร์ให้ด้วย

ตัวผนังเจาะให้เป็นช่องสำหรับวางอุปกรณ์อาบน้ำค่ะ ขนาดลึกพอสมควร
โดยรูปแบบห้องน้ำจะเป็นมาตรฐานแบบนี้ทุกห้องเลยค่ะ อาจจะแตกต่างกันที่ขนาดพื้นที่และการจัดวาง

สิ่งพิเศษอย่างหนึ่งที่โดดเด่นในโครงการนี้คือ ระบบ Smart Living ค่ะ
มีวิธีการใช้ง่ายๆ ไม่ยุ่งยากคือ การควบคุมระบบไฟฟ้าภายในห้องได้ด้วย Application ในมือถือ ไม่ว่าจะเป็นการเปิด-ปิดไฟ แอร์ ทีวี จะนั่งหรือนอนก็ปิดหรือเปิดได้ หรืออยู่ข้างนอกอยากเปิดแอร์เอาไว้ก่อนก็สามารถทำได้ค่ะ

ตัวสวิตช์ไฟเป็นระบบสัมผัสทันสมัยมากๆ
ภาพห้องตัวอย่างแบบ 2 ห้องนอน 1 ห้องน้ำ ขนาด 44 ตร.ม.

Layout ห้องแบบ 2 ห้องนอน 1 ห้องน้ำ ขนาด 44 ตร.ม.

เข้ามาในห้องจะรู้สึกว่าห้องลึกมากค่ะ

ซ้ายมือจะเป็นครัวแบบเปิดค่ะ ไม่ได้มีบานกระจกหรือผนังกั้นค่ะ
ต่อไปก็จะเป็นพื้นที่รับประทานอาหาร และพื้นที่นั่งเล่นค่ะ

ชุดครัวที่ได้จะได้แบบนี้เลยค่ะ ไม่ว่าจะเป็นเคาน์เตอร์ครัว เตาไฟฟ้า เครื่องดูดควัน
อ่างล้างจาน ตู้เก็บของ และไมโครเวฟ ยกเว้นตู้เย็นที่ไม่ได้ให้

ถัดไปทางโครงการจัดวางเป็นชุดโต๊ะรับประทานอาหาร 4 ที่ค่ะ ติดกันก็เป็นที่นั่งเล่น ดูทีวี

ในส่วนพื้นที่นั่งเล่นนี้หากใช้ทีวีแบบแขวนจะประหยัดพื้นที่ได้มากเลยค่ะ
และสามารถวางโซฟาขนาด 3-4 ที่ได้พอดี

ออกมาระเบียงกันบ้าง ตัวรั้วจะเป็นกระจกค่ะ

ห้องนอนจะมี 2 ห้องนอนค่ะ ห้องน้ำจะอยู่ตรงกลาง

เดินเข้าไปในห้องทางซ้ายมือกันก่อน ห้องใช้การตกแต่งด้วยสีค่อนข้างเข้ม แต่ก็ไม่ได้อึดอัดเลยค่ะ
อาจเป็นเพราะเพดานสูงถึง 3 เมตร และมีหน้าต่างบานใหญ่
แต่บานที่เปิดได้นั้นจะเป็นบานกระทุ้งเล็กๆ อยู่ทางซ้ายและขวาค่ะ

เฟอร์นิเจอร์ที่ได้ก็จะมีเตียงขนาด 5 ฟุต ตู้เสื้อผ้าบิวท์อิน

ฝั่งตรงข้ามกันจะเป็นห้องนอนอีกห้องค่ะ

ตู้เสื้อผ้าบิวท์อินดีไซน์สวยที่โครงการให้มาด้วย

สุขภัณฑ์ในห้องน้ำเป็นของ American Standard ค่ะ ในห้องน้ำมีครบเลย อาทิ อ่างล้างหน้าและตู้เก็บของ
โถสุขภัณฑ์ ตู้อาบน้ำกั้นส่วนเปียกส่วนแห้ง ฝักบัว และ rain shower
ภาพห้องตัวอย่างแบบ 2 ห้องนอน 1 ห้องน้ำ ขนาด 48 ตร.ม.

Layout ห้องแบบ 2 ห้องนอน 1 ห้องน้ำ ขนาด 48 ตร.ม.

เข้ามาภายในห้องขวามือจะเจอโต๊ะรับประทานอาหารและทางซ้ายมือจะเป็นห้องน้ำค่ะ

โต๊ะรับประทานอาหารถูกจัดวางไว้ที่หน้าห้องครัวพอดี ทำให้สะดวกในการจัดเตรียมและทานอาหารค่ะ

เปิดประตูกระจกบานสไลด์เข้ามาดูในห้องครัวบ้างค่ะ ครัวจะได้ตามแบบที่โชว์เลย
แต่ตู้เย็นไม่ได้นะคะ

ห้องน้ำดีไซน์สวยงาม ได้ตามนี้เป๊ะๆ เลยค่ะ สุขภัณฑ์ของ American Standard
มาพร้อมกับฝักบัว และ Rain shower อาบแบบสะใจกันเลย

ด้านในสุดของห้องจะเป็นส่วนของพื้นที่รับแขกค่ะ

ถัดออกไปก็เป็นระเบียง โดยรั้วกั้นจะเป็นกระจกค่ะ

มาถึงห้องนอนห้องแรกกันแล้ว กระจกบานใหญ่สามารถรับวิวได้เต็มที่เลยค่ะ

อีกมุมหนึ่งของห้องนอนค่ะ

อีก 1 ห้องนอน ก็จะอยู่ฝั่งตรงกันข้าม

ขนาดของห้องและรูปแบบเหมือนกันกับห้องนอนแรกเลยค่ะ
ราคาและค่าใช้จ่ายที่เกี่ยวข้องโดยประมาณ (ณ วันที่ 25 ม.ค. 59)
สำหรับราคาอยู่ที่ 120,000 บาท/ตร.ม. โดยประมาณค่ะ
ค่าส่วนกลาง : 55 บาท/ตร.ม./เดือน ผู้ซื้อเป็นผู้ชำระ
เงินกองทุนแรกเข้า : 500 บาท/ตร.ม. (เก็บครั้งเดียว) ผู้ซื้อเป็นผู้ชำระ
ค่าส่วนกลาง : 55 บาท/ตร.ม./เดือน ผู้ซื้อเป็นผู้ชำระ
เงินกองทุนแรกเข้า : 500 บาท/ตร.ม. (เก็บครั้งเดียว) ผู้ซื้อเป็นผู้ชำระ
ภาพรวมโดยสรุปของโครงการ
- การเดินทางเข้า-ออกโครงการ - สำหรับการเดินทางเข้า-ออกนั้นมีหลายเส้นทางเลยค่ะ สะดวกทั้งการออกไปปากซอยสุขุมวิท 50 ที่มีรถสองแถวและวินมอเตอร์ไซค์ให้บริการ พร้อมที่จะเชื่อมต่อ BTS เข้าเมืองได้เลย อีกเส้นทางคือสามารถทะลุไปยังทางด่วนหลักๆ ได้ถึง 2 สาย ไม่ว่าจะเป็นทางพิเศษเฉลิมมหานครและทางด่วนรามอินทรา-อาจณรงค์
- ทำเลรอบโครงการ - สภาพแวดล้อมรอบๆ โครงการเป็นบ้านพักอาศัย 1-2 ชั้น และมีอพาร์ตเมนต์สูงๆ อยู่บ้างแต่ไม่ได้แออัด มีร้านสะดวกซื้ออยู่หน้าโครงการเพียงแค่ข้ามถนนก็ซื้อของกินของใช้ได้แล้ว สำหรับห้างใหญ่อย่างโลตัส สาขาอ่อนนุชก็นั่งวินมอเตอร์ไซค์หรือรถสองแถวมาได้แบบชิลๆ เลยค่ะ
- อาคารและตัวโครงการโดยรวม - เป็นคอนโด High-Rise จำนวน 2 อาคาร อาคาร A สูง 14 ชั้น และอาคาร B สูง 17 ชั้น ส่วนกลางที่มีมาให้ค่อนข้างครบ อาทิ Bar-B-Q Area, Golf Simulators, Multi-Function, Fitness, Steam room, Library, Business Center, Jogging Track, Jacuzzi สระว่ายน้ำ และสวนพักผ่อน นอกจากนั้นยังมี Shuttle Service อำนวยความสะดวกรับส่งจากโครงการไปยัง BTS อ่อนนุช ด้วยค่ะ ปริมาณที่จอดรถอยู่ที่ 57% ไม่รวมจอดซ้อนคัน มีลิฟต์โดยสารให้ 2 ตัว ลิฟต์บริการ 1 ตัว อัตราส่วนการใช้ลิฟต์อยู่ที่ 176 ยูนิตต่อลิฟต์ 1 ตัว ถือว่าเป็นตัวเลขที่โอเคค่ะ ไม่ได้แออัด
- รูปแบบห้องและวัสดุ - ห้องพักอาศัยจะหันหน้าไปทางทิศตะวันตกเฉียงใต้และทิศตะวันออกเฉียงเหนือค่ะ ก็จะไม่โดนแดดแบบเต็มๆ ค่ะ รูปแบบห้องของโครงการนี้จะมีหน้ากว้าง 7 เมตร จึงทำให้ห้องแต่ละห้องดูไม่แคบ ไม่อึดอึดแม้กระทั่งห้องที่มีขนาดที่เล็กที่สุด รวมถึงการจัด Layout เลือกใช้กระจกกั้นแทนผนังเพื่อความโปร่ง ทางโครงการมีแบบให้เลือกหลายแบบ แล้วแต่ความชอบเลยค่ะ ส่วนเฟอร์นิเจอร์จะได้แบบ Fully Furnished เป็นของ Chic Republic ดีไซน์หรูหราสมกับคอนเซปต์โครงการ ส่วนวัสดุที่ได้นั้นเรียกได้กว่าเกรดดีเลยค่ะ ไม่ว่าจะเป็นผนังกั้นห้องที่ใช้นวัตกรรมใหม่ "Innowall" กันเสียง กันแผ่นดินไหว กันความร้อนได้ดีกว่าแบบอิฐทั่วไป พื้นห้องเป็น Engineering wood ดีกว่าทนกว่าพื้นลามิเนต และ Digital Door Lock ที่ให้ก็สามารถปลดล็อคได้หลายแบบ เพิ่มความมั่นใจในเรื่องความปลอดภัย และที่โดดเด่นมากเลยก็คือระบบ Smart Home Function สามารถเปิด-ปิดระบบไฟฟ้าในห้องได้ด้วยแอปพลิเคชันทางสมาร์ทโฟน สะดวกและเป็นโครงการแรกๆ ที่นำเทคโนโลยีนี้มาใช้
- ราคา - ราคาเริ่มต้น 1 ห้องนอน อยู่ที่ 3.49 ล้านบาท ราคาเฉลี่ย/ตร.ม. 120,000 บาท ถือว่าไม่แพงสำหรับคอนโดย่านสุขุมวิทค่ะ อีกทั้งวัสดุที่ให้และเฟอร์นิเจอร์ที่ให้คุณภาพดี ราคานี้จึงถือว่าคุ้มค่ามากๆ ถึงแม้ว่าจะเป็นบริษัทน้องใหม่แต่ก็มั่นใจได้ในการพัฒนาโครงการที่ผ่านมาอย่างโครงการ เมย์แฟร์ เพลส สุขุมวิท 64 ค่ะ
สถานะปัจจุบันของโครงการ (ณ วันที่ 25 ม.ค. 59)
โครงการจะเริ่มดำเนินการก่อสร้างประมาณเดือนมิถุนายน 2559 และคาดว่าจะแล้วเสร็จประมาณเดือนธันวาคม ปี 2561 สำหรับผู้ที่สนใจสามารถแวะชมโครงการ สัมผัสความสุขที่สุดของความหรูหรา ได้ที่สำนักงานขายโครงการ เมย์แฟร์ เพลส สุขุมวิท 50 (Mayfair Place Sukhumvit 50)
สอบถามรายละเอียดเพิ่มเติม โทร. 0 2331 8999 หรือเว็บไซต์ www.mayfairplace50.com
แท็กที่เกี่ยวข้อง
เขียนโดย
เช็คราคา.คอม
Condo Guru
พูดคุยกับกูรูได้ที่




