
รีวิว-เยี่ยมชม มาเอสโตร 03 รัชดา-พระราม 9 (Maestro 03 Ratchada-Rama 9)
สวัสดีค่ะ วันนี้ Checkraka.com จะพาไปเยี่ยมชมโครงการคอนโดมิเนียม มาเอสโตร 03 รัชดา-พระราม 9 (Maestro 03 Ratchada-Rama 9) ซึ่งตั้งอยู่ในซอยรัชดาภิเษก 3 (ข้างสถานทูตจีน) ใกล้ๆ กับสถานทูตจีนและอยู่ใจกลาง New CBD แห่งใหม่ในย่านพระราม 9 เลยค่ะ และเพื่อไม่ให้เป็นการเสียเวลาไปชมรายละเอียดของโครงการกันเลยดีกว่าค่ะ

ข้อมูลโครงการ
- เจ้าของ และผู้พัฒนาโครงการ : บริษัท เมเจอร์ ดีเวลลอปเม้นท์ เอสเตท จำกัด
- ที่ตั้งโครงการ : ซอยรัชดาภิเษก 3 ถนนรัชดาภิเษก แขวงดินแดง เขตดินแดง กรุงเทพมหานคร
- อาคารชุดพักอาศัย : สูง 8 ชั้น จำนวน 3 อาคาร ประกอบด้วย ห้องชุดพักอาศัย จำนวน 320 ยูนิต
- ขนาดที่ดินทั้งโครงการ : 3-0-18 ไร่
- ลิฟต์โดยสาร : 2 ตัวต่ออาคาร
- ห้องชุดพักอาศัย : มี 2 แบบหลักๆ ได้แก่ 1 ห้องนอน และ 2 ห้องนอน
- ขนาดตั้งแต่ 29 - 74 ตร.ม.
- ที่จอดรถประมาณ 55%
- ราคาเริ่มต้น 3.7 ล้านบาท สําหรับห้องแบบ 1 ห้องนอนขนาด 29 ตร.ม. (ข้อมูล ณ 5 พ.ย. 58)
- คาดว่าจะแล้วเสร็จทั้งโครงการประมาณ ก.พ. 2561
- วันที่เข้าเยี่ยมชม-รีวิวคอนโด ข้อมูล ณ 5 พ.ย. 58
เจ้าของและผู้พัฒนาโครงการ
บริษัท เมเจอร์ ดีเวลลอปเม้นท์ จำกัด (มหาชน) ก่อตั้งขึ้นเมื่อวันที่ 14 ก.ค. 2542 โดยครอบครัวพูลวรลักษณ์ ด้วยทุนจดทะเบียนเริ่มแรก 1 ล้านบาท และปัจจุบันบริษัทฯ ได้เข้าจดทะเบียนในตลาดหลักทรัพย์แห่งประเทศไทย (MJD) ด้วยทุนจดทะเบียน 1,050 ล้านบาท (ชำระแล้ว 860 ล้านบาท) บริษัทฯ มุ่งมั่นที่จะพัฒนาคอนโดมิเนียมระดับไฮเอนด์ จากนวัตกรรม และแนวความคิดใหม่ๆ ด้วยมาตรฐานระดับนานาชาติ โดยมีการเปิดตัวโครงการคอนโดมิเนียมไฮไรซ์ โครงการแรกชื่อว่า "แฮมป์ตัน" ตั้งอยู่บนซอยทองหล่อ 10 และในปัจจุบันนี้บริษัท เมเจอร์ ดีเวลลอปเม้นท์ จำกัด (มหาชน) ได้พัฒนาโครงการคอนโดมิเนียมมาแล้วจำนวนกว่า 30 โครงการ รวมมูลค่ากว่า 50,000 ล้านบาท
ทำเลที่ตั้ง
มาเอสโตร 03 รัชดา-พระราม 9 (Maestro 03 Ratchada-Rama 9) ตั้งอยู่ภายในซอยรัชดาภิเษก 3 (ซอยข้างสถานทูตจีน) ซึ่งซอยนี้อยู่ตรงกลางระหว่างรถไฟฟ้า MRT สถานีพระราม 9 และ สถานีศูนย์วัฒนธรรมฯ สำหรับระยะทางจากปากซอยรัชดาภิเษก 3 สามารถเดินเท้าเข้ามาโครงการได้ ระยะทางประมาณ 100 เมตรเท่านั้น

แผนที่โครงการ "มาเอสโตร 03 รัชดา-พระราม 9 (Maestro 03 Ratchada-Rama 9)"

ภาพแผนที่โครงการแจกแจงให้เห็นระยะใกล้-ไกลของโครงการกับสถานที่ หรือ Landmark รอบๆ โครงการที่น่าสนใจ
Google Map พิกัด : 13.7628251,100.5645612

"Fortune Town" ระยะทางห่างจากโครงการประมาณ 800 ม.

"เครือเจริญโภคภัณฑ์" ระยะทางห่างจากโครงการประมาณ 800 ม.

"สถานทูตสาธารณรัฐประชาชนจีน" ระยะทางห่างจากโครงการประมาณ 250 ม.

"ตลาดหลักทรัพย์ SET (ที่ทำการแห่งใหม่)" ระยะทางห่างจากโครงการประมาณ 350 ม.

"AIA Capital Center" ระยะทางห่างจากโครงการประมาณ 400 ม.

"เอสพลานาด รัชดา" ระยะทางห่างจากโครงการประมาณ 700 ม.

"True Tower" ระยะทางห่างจากโครงการประมาณ 550 ม.

"ตลาดละลายทรัพย์ รัชดาซอย 4" ระยะทางห่างจากโครงการประมาณ 500 ม.

"เซ็นทรัล พระราม 9" ระยะทางห่างจากโครงการประมาณ 750 ม.
การเดินทาง
1. การเดินทางด้วยรถยนต์
- ขาเข้าโครงการเส้นทางที่ 1 (แยกอโศก-เพชรบุรี-รัชดาซอย 3)

มาดูภาพประกอบการเดินทางกันค่ะ โดยเริ่มจากบริเวณแยกอโศก-เพชรบุรี







ถึงหน้าโครงการแล้วค่ะ Sales Gallery อยู่ติดริมถนนเลย
- ขาออกโครงการเส้นทางที่ 1 (รัชดาซอย 3-ถนนรัชดาภิเษก)

- ขาออกโครงการเส้นทางที่ 2 (รัชดาซอย 3-ถนนดินแดง)

2. การเดินทางด้วยรถไฟฟ้าใต้ดิน
สามารถเดินทางโดยใช้รถไฟฟ้าใต้ดิน MRT "สถานีพระราม 9" หรือ "สถานีศูนย์วัฒนธรรมฯ" ก็ได้ค่ะ เพราะตัวโครงการอยู่กึ่งกลางระหว่าง 2 สถานีนี้เลย (ระยะห่างระหว่าง 2 สถานีนี้ประมาณ 1 กม.)


แผนที่บริเวณ MRT สถานีพระราม 9 ให้ใช้ทางออกที่ 1 (ฝั่งฟอร์จูน ทาวน์)
ขอบคุณภาพ : www.bangkokmetro.co.th

แผนที่บริเวณ MRT สถานีศูนย์วัฒนธรรมฯ ให้ใช้ทางออกที่ 3 (ฝั่งเอสพลานาด)
ขอบคุณภาพ : www.bangkokmetro.co.th
สภาพแวดล้อมใกล้เคียง
ภาพรวมภายในซอยรัชดาภิเษก 3 ส่วนใหญ่เป็นอาคารพาณิชย์สูง 2-3 ชั้น ชั้นล่างจะเปิดเป็นร้านค้าหรือร้านอาหารเสียส่วนใหญ่ ซอยนี้จะเน้นเรื่องความอุดมสมบูรณ์ในเรื่องอาหารการกิน มีร้านสะดวกซื้อและแผงลอยกระจายตัวอยู่แถบทุกมุมเลยค่ะ

แผนที่ภาพรวมสถานที่โดยรอบโครงการ

"7-ELEVEN" อยู่ก่อนถึงโครงการ ระยะทางห่างจากโครงการประมาณ 10 ม.

"7-ELEVEN" อีกสาขานึงค่ะ อยู่ถัดจากโครงการ ระยะทางห่างจากโครงการประมาณ 10 ม.

"RPD Mansion" ระยะทางห่างจากโครงการประมาณ 20 ม.

ในซอยนี้จะมีร้านอาหารและแผงลอยอยู่รายรอบ ไม่ต้องกลัวอดเลยค่ะ

"ร้านบิวตี้ซาลอน" ระยะทางห่างจากโครงการประมาณ 60 ม.

"อาคารภคินท์" ระยะทางห่างจากโครงการประมาณ 120 ม.

"สถานทูตสาธารณรัฐประชาชนจีน" ระยะทางห่างจากโครงการประมาณ 250 ม.

"ร้านอาหารแซ่บวัน รัชดา" ระยะทางห่างจากโครงการประมาณ 500 ม.

"ตลาดละลายทรัพย์ รัชดาซอย 4" ระยะทางห่างจากโครงการประมาณ 500 ม.
รูปแบบตึก และตัวโครงการโดยรวม

จากภาพโมเดลจะเห็นว่าอาคารทั้ง 3 ล้อบรอบส่วนกลางไว้ เริ่มจากอาคาร A:หันหลังให้ทิศใต้ขนานกับซอยรัชดาภิเษก 3, อาคาร B:หันหลังให้ทิศตะวันตก (ซอยประชาสงเคราะห์) และอาคาร C:หันหลังให้ทิศตะวันออก (สถานทูตจีน)

ที่จอดรถจะอยู่ที่ชั้นใต้ดิน (Basement Parking) ของทั้ง 3 อาคาร โดยจะอยู่ที่ชั้น B1 และB2
ซึ่งความสะดวกสบายของลานจอดรถโครงการนี้ก็คือสามารถใช้ลิฟต์จากลานจอดรถ
ขึ้นไปถึง ห้องพักได้เลย ไม่ต้องเดินไปขึ้นที่ Lobby ค่ะ

ดูจากโมเดล เหมือนว่าหน้าต่างของห้องพักอาคาร B และ C จะจ๊ะเอ๋กัน แต่ในความเป็นจริงแล้ว
เมื่อสร้างเสร็จจะมีระยะห่างกันถึง 19.4 เมตร ซึ่งห่างกันมากทีเดียวค่ะ

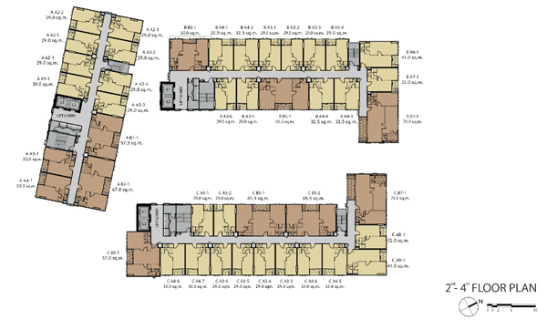
Master Plan ชั้น G แสดงให้เห็นถึงอาคาร A ประกอบไปด้วย Lobby, ลิฟต์, Mail Room และนิติบุคคล
อยู่บริเวณชั้น 1 สำหรับห้องพักอาศัยเริ่มตั้งแต่ชั้น 2-8, อาคาร B และ C หันหน้าเข้าหากัน
มีห้องพักอาศัยเริ่มที่ชั้น 1-8 และ Facility ทั้งหมดจะอยู่ตรงกลางโดยมีอาคารทั้ง 3 ล้อมเอาไว้

Master Plan ตั้งแต่ชั้น 2-4 มีห้องพักอาศัยโดยเฉลี่ยประมาณ 13-16 ยูนิต/ชั้น
ส่วนกลางและสิ่งอำนวยความสะดวก

ภาพจำลอง Elegant Lobby

ภาพจำลองทางวิ่งจ๊อกกิ้งรอบๆ โครงการ

ภาพจำลองสระว่ายน้ำ ขนาด 8x16x1.2 เมตร

ภาพจำลองฟิตเนส
Highlight Facility ชั้น G
- Reading Cabin (ซุ้มอ่านหนังสือ)
- Gourmet Cabin (ซุ้มทำอาหาร)
- BBQ Patio (ลานบาร์บีคิว)
- Pet-Lover's Cabin (ซุ้มคนรักสัตว์เลี้ยง)
- Reflexology garden (สวนหินเพื่อความผ่อนคลาย)
- Jogging Trail (ทางวิ่งจ๊อกกิ้ง)
- Semi Indoor Pool (สระว่ายน้ำกึ่งในร่ม)
- Reflecting Pool (สระว่ายน้ำสไตล์ยุโรป)
- Steam Room (ห้องสตีม)
- Sauna Room (ห้องซาวน่า)
- Mezzanine Fitness Arena (ฟิตเนสบนชั้นลอย)
- Feature Wall (ผนังตกแต่ง)
- Superbike Parking (ที่จอดรถซูเปอร์ไบค์)
- Bike Rack (แร็คสำหรับจอดรถจักรยาน)
- Drop off (จุดจอดรับ-ส่ง)
- Guardhouse (ระบบรักษาความปลอดภัย)
- Elegant Lobby (ล็อบบี้)
- Secure Postbox (กล่องจดหมายส่วนตัว)
- Laundry Room (ห้องซักรีด)
- Pool Deck (ที่นั่งริมสระ)
- Pool Seat (เก้าอี้ริมสระ)
- Basement Parking (ที่จอดรถชั้นใต้ดิน)
- 24/7 Wireless Internet (อินเทอร์เน็ตไร้สาย 24 ชม.)
- 24/7 Security Service (ระบบรักษาความปลอดภัย 24 ชม.)
- Shuttle Service (บริการรถรับส่ง)
ภาพห้องตัวอย่างและ Lay out
1. ห้องแบบ 1 ห้องนอน (1 ห้องนอน, 1 ห้องน้ำ, 1 ห้องครัว) พื้นที่ใช้สอย 29 ตร.ม.
(คลิกเพื่อชมตัวอย่างแปลนห้องขนาดใหญ่)
2. ห้องแบบ 1 ห้องนอน (1 ห้องนอน, 1 ห้องน้ำ, 1 ห้องครัว) พื้นที่ใช้สอย 32.5 ตร.ม.
(คลิกเพื่อชมตัวอย่างแปลนห้องขนาดใหญ่)
3. ห้องแบบ 2 ห้องนอน (2 ห้องนอน, 2 ห้องน้ำ, 2 ห้องครัว) พื้นที่ใช้สอย 65.5 ตร.ม.
(คลิกเพื่อชมตัวอย่างแปลนห้องขนาดใหญ่)
4. ห้องแบบ 2 ห้องนอน (2 ห้องนอน, 2 ห้องน้ำ, 2 ห้องครัว) พื้นที่ใช้สอย 74 ตร.ม.
(คลิกเพื่อชมตัวอย่างแปลนห้องขนาดใหญ่)
(คลิกเพื่อชมตัวอย่างแปลนห้องขนาดใหญ่)
2. ห้องแบบ 1 ห้องนอน (1 ห้องนอน, 1 ห้องน้ำ, 1 ห้องครัว) พื้นที่ใช้สอย 32.5 ตร.ม.
(คลิกเพื่อชมตัวอย่างแปลนห้องขนาดใหญ่)
3. ห้องแบบ 2 ห้องนอน (2 ห้องนอน, 2 ห้องน้ำ, 2 ห้องครัว) พื้นที่ใช้สอย 65.5 ตร.ม.
(คลิกเพื่อชมตัวอย่างแปลนห้องขนาดใหญ่)
4. ห้องแบบ 2 ห้องนอน (2 ห้องนอน, 2 ห้องน้ำ, 2 ห้องครัว) พื้นที่ใช้สอย 74 ตร.ม.
(คลิกเพื่อชมตัวอย่างแปลนห้องขนาดใหญ่)
ห้องตัวอย่างแบบ 1 ห้องนอน ขนาด 29 ตร.ม. (MONET FURNITURE STYLE)

Layout ห้องแบบ 1 ห้องนอน ขนาด 29 ตร.ม. มี 1 ห้องน้ำ 1 ห้องนั่งเล่น และ 1 ห้องครัว (แบบเปิด)

สำหรับโครงการนี้ห้องไซส์เล็กสุดจะเป็นแบบ 1 ห้องนอน มีขนาด 29 ตร.ม.

ภายในห้องจะแยกโซนด้วยพื้นกระเบื้องที่อยู่ในส่วนของครัว และพื้นลามิเนตที่เป็นในส่วน
ของห้องนั่งเล่นและห้องนอน สังเกตว่าไฟภายในห้องจะมีดีไซน์โดยไม่ฝังดาวน์ไลท์เหมือนปกติทั่วไป
แต่จะทำเป็นแบบโชว์กล่องเพิ่มมิติให้เพดานค่ะ ความสูงจากพื้นถึงเพดาน 2.45 เมตร

หลังประตูห้องจะเป็นตู้ Built-in สำหรับวางเครื่องซักผ้า, อุปกรณ์ทำความสะอาดต่างๆ (ฝั่งซ้าย)
และเป็นที่เก็บรองเท้าหรือกระเป๋า (ฝั่งขวา) ดูเป็นระเบียบมากทีเดียวค่ะ

เดินเลยตู้ Built-in ไปหน่อย จะเป็นห้องนอน และห้องน้ำ และระหว่างห้องนั่งเล่นกับห้องนอน
ในส่วนของห้องจริงจะกั้นด้วยประตูบานสวิงนะคะ

เนื่องจากทางโครงการเพิ่มพื้นที่ในห้องนอนให้กว้างขึ้น ดังนั้นส่วนของห้องนั่งเล่นจึงแคบนิดหน่อย
ตรงนี้จึงมีระยะห่างระหว่างโซฟากับชั้นวางทีวีประมาณนี้ค่ะ

ช่องเก็บคอมเพรสเซอร์จะดีไซน์ให้ซี่กริลเป็นรูปตัว Z เพื่อระบายลมร้อนให้แฉลบออกไปด้านนอก

กลับมาดูวัสดุตรงโซนครัวกันค่ะ ท็อปเคาน์เตอร์เป็นหินควอทซ์ ผนังเป็นกระเบื้อง

ได้เตาไฟฟ้า+เครื่องดูดควัน และก๊อกน้ำ+ซิงค์ล้างจาน

โต๊ะรับประทานอาหารเป็นแบบ Multifunction สามารถพับเก็บแนบไปกับเคาน์เตอร์ครัวได้เมื่อไม่ได้ใช้งาน

เดินเข้ามาในห้องนอนกันดีกว่าค่ะ แอร์สำหรับห้องไซส์นี้จะได้ 9,000 BTU ทั้งในห้องนอน และห้องนั่งเล่น

สำหรับห้องไซส์นี้ ห้องน้ำจะอยู่ภายในห้องนอนค่ะ

ข้างเตียงนอนขนาด 5 ฟุต เป็นโต๊ะเครื่องแป้ง และโต๊ะทำงานใช้งานได้ทั้ง 2 ฟังก์ชั่น เพราะสามารถเปิดกระจก
ขึ้นมาเป็นโต๊ะเครื่องแป้ง หรือพับกระจกลงเป็นโต๊ะทำงานได้ค่ะ

หน้าตาของห้องน้ำจะได้กระเบื้องสีแบบนี้เลย สวยและดูดีมากๆ ค่ะ แยกโซนเปียก กับโซนแห้ง
ด้วย Shower Box แบบ Tempered Glass มีโถสุขภัณฑ์และพัดลมระบายอากาศมาให้ด้วย

เจาะช่องให้สำหรับวางแชมพู และสบู่

อ่างล้างหน้าถูกบิ้วท์ในตำแหน่งระหว่างผนังกับผนัง ให้ space นิดหน่อย
อาจจะช่วยให้การทำความสะอาดง่ายขึ้น

สวิตช์ไฟจะเป็นของ Siemens ทั้งหมด สีจะเป็นแบบนี้เลยค่ะ คล้ายๆ สีทองแดง ดูหรูหราทีเดียว
ราคาและค่าใช้จ่ายที่เกี่ยวข้องโดยประมาณ (ณ วันที่ 5 พ.ย. 2558)
ราคาเริ่มต้น 3.7 ล้านบาท สำหรับห้องแบบ 1 ห้องนอน ขนาด 29 ตร.ม.
ค่าใช้จ่ายอื่นๆ ของโครงการ
- ค่าส่วนกลาง 65 บาท/ตร.ม./เดือน ชำระล่วงหน้า 1 ปี ณ วันโอนกรรมสิทธิ์
- เงินกองทุนส่วนกลาง 650 บาท/ตร.ม. ชำระ ณ วันโอนกรรมสิทธิ์
- ค่าธรรมเนียมการโอนกรรมสิทธิ์ ผู้ซื้อและผู้ขายแบ่งชำระกันคนละครึ่ง
ภาพรวมโดยสรุปของโครงการ
- การเดินทางเข้า-ออกโครงการ - ถนนรัชดาภิเษกเป็นถนนที่การจราจรค่อนข้างหนาแน่นตลอดเวลา สำหรับซอยรัชดาภิเษก 3 หรือซอยข้างสถานทูตจีนนั้นสามารถใช้เป็นเส้นทางลัดไปออกถนนประชาสงค์เคราะห์ ทะลุถนนดินแดง และยังสามารถเชื่อมไปถนนวิภาวดีรังสิตได้อีก แต่เส้นทางนั้นเป็นแค่ตรอกซอกซอยเล็กๆ มีมอเตอร์ไซค์ขับซอกแซกเยอะทีเดียว รถยนต์อาจจะต้องระวังนิดนึงนะคะ อีกทางเลือกที่ช่วยเลี่ยงปัญหารถติดได้มากทีเดียวก็คือ รถไฟฟ้าใต้ดิน (MRT) ค่ะ ซึ่ง MAESTRO 03 นั้นอยู่ตรงกลางระหว่างสถานีพระราม 9 และ สถานีศูนย์วัฒนธรรมฯ สามารถเลือกขึ้น-ลงได้ทั้ง 2 สถานีเลยค่ะ
- ทำเลรอบโครงการ - ในซอยรัชดาภิเษก 3 นั้น เป็นซอยที่คึกคักทีเดียวค่ะ มีร้านรวงที่เปิดอยู่ชั้นล่างของอาคารพาณิชย์รวมถึงแผงลอยริมทางเยอะแยะเลย เรื่องอาหารการกิน และข้าวของเครื่องใช้นั้นไม่ต้องห่วง สำหรับอาคารส่วนใหญ่ในซอยนี้จะเป็นบ้านพักอาศัย 1-2 ชั้น, อพาร์ตเมนต์, และอาคารพาณิชย์ 4-5 ชั้น ซอยนี้มีความสำคัญอีกอย่างคืออยู่ข้างๆ "สถานทูตจีน" และใกล้ๆ กับ New CBD แห่งใหม่บริเวณแยกพระราม 9 ซึ่งในอนาคตนั้นมั่นใจได้เลยค่ะว่าจะต้องคับคั่งและคึกคักกว่าเดิมแน่นอน เพราะเป็นทำเลทองที่กำลังจะกลายเป็นศูนย์กลางธุรกิจในไม่ช้า
- อาคารและตัวโครงการโดยรวม - เป็นโครงการ Low Rise 8 ชั้น 3 อาคาร บนพื้นที่ 3-0-18 ไร่ ที่อยู่ภายในซอย (ถนน 2 เลน) รวม 320 ยูนิต โดยเฉลี่ยมีห้องพักอาศัยประมาณ 13-16 ยูนิตต่อชั้นเท่านั้น ซึ่งถือว่าน้อยและไม่แออัดจนเกินไป แยกลานจอดรถไปอยู่ที่ชั้นใต้ดินของทุกอาคาร สะดวกด้วยลิฟต์ที่ต่อตรงถึงห้องพักได้ทันทีโดยไม่ต้องผ่านบริเวณ Lobby ซึ่งสามารถจอดรถได้ทั้งหมด 55% ที่นี่มีลิฟต์โดยสาร 2 ตัว ต่อ 1 อาคาร เป็นระบบล็อคชั้น อัตราส่วนการใช้ลิฟต์อยู่ที่ 53 ยูนิตต่อลิฟต์ 1 ตัว ถือว่าไม่หนาแน่นเลยค่ะ และถึงแม้ว่าทั้ง 3 อาคารจะหันหน้าเข้าหากันแต่ก็มีระยะที่ห่างกันมากพอสมควร ทำให้ลูกบ้านในแต่ละอาคารที่มีห้องพักอยู่ทางด้านใน หรือวิวสระว่ายน้ำไม่รู้สึกถึงความอัดอัดที่จะเทควิว และลูกบ้านที่กำลังใช้ Facility ไม่ว่าจะเป็นฟิตเนส สระว่ายน้ำ หรือนั่งชิลล์อยู่ภายในสวน ก็ให้ความรู้สึกปลอดภัย เพราะถูกโอบล้อมด้วยอาคารทั้ง 3 นั่นเอง
- รูปแบบห้องและวัสดุ - โครงการนี้จะขายแบบ Fully Furnished ขนาด 29 ตร.ม. ราคาจะอยู่ที่ 3.7 ล้านบาท (เฉลี่ย 125,000 บาท/ตร.ม.) มีห้องพักอาศัย 2 แบบ คือแบบ 1 ห้องนอน และ 2 ห้องนอน รวมทั้งหมด 320 ยูนิต โดยในแต่ละห้องมีเพดานสูง 2.45 เมตร พื้นเป็นลามิเนต หนา 8 มม. เฟอร์นิเจอร์ที่ได้เป็นแบบบิวท์อินก็จะมี ชุดเคาน์เตอร์ครัว ที่มีหน้าท็อปเป็นหินควอทซ์สีขาวช่วยในเรื่องของความทนทาน และรู้สึกหรูหราทีเดียวค่ะ ให้ Hob และ Hood ยี่ห้อ Electrolux มาด้วย ก๊อกน้ำกับซิงค์ล้างจานก็เป็นยี่ห้อ MEX ในส่วนของจุดเด่นภายในห้องจะเน้นที่การใช้งานเป็นหลัก ควบคู่ไปกับความสวยงาม เช่น ตู้ Built in ทรงสูงที่มีไว้สำหรับเก็บเครื่องซักผ้าที่ถูกวางไว้ร่วมกันกับตู้รองเท้าในบานประตูเดียวกัน หรือโต๊ะรับประทานอาหารที่เน้นฟังก์ชั่นการใช้งาน และเมื่อไม่จำเป็นต้องใช้ก็สามารถพับเก็บให้ดูเป็นระเบียบเรียบร้อย ไม่เกะกะทางเดิน โครงการนี้ให้เฟอร์นิเจอร์ค่อนข้างเยอะ ไม่ว่าจะเป็นโซฟา โต๊ะวางทีวี โต๊ะเครื่องแป้ง เก้าอี้ เรียกได้ว่าหิ้วกระเป๋ามาก็เข้าอยู่ใช้ชีวิตที่นี่ได้ทันที
สถานะปัจจุบันของโครงการ (ณ วันที่ 5 พ.ย. 2558)
ปัจจุบันโครงการได้จัดตั้งสำนักงานขายและห้องตัวอย่างเสร็จเรียบร้อยแล้ว โดยคาดว่าจะเริ่มก่อสร้างเดือน ม.ค. 2559 และจะแล้วเสร็จประมาณเดือน ก.พ. 2561 หากท่านใดที่สนใจโครงการ มาเอสโตร 03 รัชดา-พระราม 9 สามารถเข้าไปชมห้องตัวอย่างได้ที่สำนักงานขาย โทร. 02-246-5522 หรือ www.mde.co.th
เขียนโดย
เช็คราคา.คอม
Condo Guru
พูดคุยกับกูรูได้ที่
