
รีวิว-เยี่ยมชม คิว ชิดลม-เพชรบุรี (Q Chidlom-Phetchaburi)
วันนี้ Checkraka ขอพาทุกท่านมาเยี่ยมชมคอนโดมิเนียมที่เรียกได้ว่ามีส่วนกลางที่สวยที่สุด และ Hip ที่สุดโครงการหนึ่งในเมืองไทย พร้อมกับทำเลชิดลม เพชรบุรี ประตูน้ำ สะดวกทุกการเดินทางทั้งรถยนต์ รถไฟฟ้า และเรือด่วน เพียบพร้อมแบบนี้คงจะเป็นที่ไหนไม่ได้นอกจากโครงการ คิว ชิดลม-เพชรบุรี ตัวอาคารและห้องจะสวยแค่ไหนไปดูกันเลยค่ะ


ข้อมูลโครงการ
- เจ้าของและผู้พัฒนาโครงการ : บริษัท อนันดา ดีเวลลอปเม้นท์ จำกัด (มหาชน)
- ที่ตั้งโครงการ : ถนนเพชรบุรี แขวงมักกะสัน เขตราชเทวี กรุงเทพมหานคร 10400
- อาคารชุดพักอาศัย : สูง 42 ชั้น และชั้นลอย จำนวน 1 อาคาร ประกอบด้วย ห้องชุดพักอาศัย จำนวน 352 ยูนิต ร้านค้า 2 ยูนิต
- ขนาดที่ดินทั้งโครงการ : 1-2-80.9 ไร่
- ลิฟต์โดยสาร 3 ตัว ลิฟต์บริการ 1 ตัว
- ห้องชุดพักอาศัย : มี 3 รูปแบบ ได้แก่ 1 Bedroom ขนาด 35, 45 และ 47 ตร.ม., 2 Bedroom ขนาด 63 ตร.ม., และ Duplex ขนาด 62, 73, 78, 81.5 และ 109.5 ตร.ม.
- ที่จอดรถประมาณ 63% (รวมจอดซ้อนคัน)
- ราคาเริ่มต้น 5.5 ล้านบาท สําหรับห้องแบบ 1 Bedroom ขนาด 35 ตร.ม. (ข้อมูล ณ 13 ส.ค. 58)
- คาดก่อสร้างแล้วเสร็จเดือนมีนาคม 2561
- วันที่เข้าเยี่ยมชม-รีวิวคอนโด 13 ส.ค. 58
เจ้าของและผู้พัฒนาโครงการ
บริษัท อนันดา ดีเวลลอปเม้นท์ จำกัด (มหาชน) เป็นบริษัทมหาชนประกอบธุรกิจพัฒนาอสังหาริมทรัพย์ และจดทะเบียนอยู่ในตลาดหลักทรัพย์แห่งประเทศไทย มีทุนจดทะเบียนทั้งสิ้น 3,636,630,000 บาท เป็นบริษัทอสังหาฯ ที่มีสโลแกนสำคัญในการพัฒนาโครงการที่พักอาศัยคือ "Live / Work / Play" (Let's live, work and play more) ปัจจุบันบริษัทฯ พัฒนาทั้งคอนโดมิเนียม และโครงการบ้านจัดสรรในกรุงเทพ และปริมณฑล โดยในส่วนของคอนโดมิเนียมนั้นมุ่งเน้นไปที่โครงการใจกลางห่างจากรถไฟฟ้าไม่เกิน 300 เมตรกับแบรนด์ "ไอดีโอ" โครงการใหม่ที่เพิ่งเปิดตัวไป เช่น คิว ชิดลม-เพชรบุรี, ไอดีโอ คิว สยาม-ราชเทวี, ไอดีโอ คิว จุฬา-สามย่าน และไม่เกิน 600 เมตรกับแบรนด์ "เอลลิโอ" โดยคอนโดมิเนียมโครงการแรกของบริษัทฯ ที่ถูกพัฒนาขึ้นมาในปี 2550 คือโครงการ "ไอดีโอ ลาดพร้าว 17" จวบจนปัจจุบัน บริษัทฯ พัฒนาคอนโดมิเนียมมาแล้วทั้งหมดเกือบ 40 โครงการ โดยในปี 2558 นี้ ทางบริษัทอนันดาฯ ก็เตรียมเปิดตัว 12 โครงการใหม่ มูลค่ากว่า 31,500 ล้านบาท และมีการขยาย segment เพิ่มกับแบรนด์ใหม่ๆ เช่น UNIO CONDO, ASHTON RESIDENCE 41 และทาวน์โฮม ARDEN
ทำเลที่ตั้ง
โครงการคิว ชิดลม-เพชรบุรี ตั้งอยู่ริมถนนเพชรบุรี แขวงมักกะสัน เขตราชเทวี กรุงเทพมหานคร 10400 ใกล้ BTS สถานีชิดลม เชื่อมต่อกับถนนสายสำคัญใจกลางกรุงเทพมหานคร เช่น ซอยชิดลม, ถนนเพลินจิต, ถนนราชดำริ, ถนนราชปรารภ, ถนนพญาไท, ถนนสุขุมวิท, ถนนหลังสวน, ถนนวิทยุ, ถนนราชดำริ, ถนนพระรามที่ 4, ถนนสีลม, ถนนอโศกมนตรี, ถนนสีลม, และถนนรัชดาภิเษก ใกล้กับสถานที่สำคัญ และแหล่งช้อปปิ้งชั้นนำ เช่น Central ชิดลม (ห่างจากโครงการประมาณ 600 เมตร), CentralWorld (ห่างจากโครงการประมาณ 600 เมตร), Central Embassy (ห่างจากโครงการประมาณ 1.1 กม.), Big C ราชดำริ (ห่างจากโครงการประมาณ 550 ม.), ศูนย์การค้าเกษร (ห่างจากโครงการประมาณ 950 เมตร), The Mercury Ville @ Chidlom (ห่างจากโครงการประมาณ 950 เมตร), Siam Center (ห่างจากโครงการประมาณ 1.5 กม.), Siam Paragon (ห่างจากโครงการประมาณ 1.1 กม.), The Platinum Fashion Mall (ห่างจากโครงการประมาณ 450 เมตร) และ Amarin Plaza (ห่างจากโครงการประมาณ 1 กม.)

ภาพแผนที่โครงการ คิว ชิดลม-เพชรบุรี

ภาพแผนที่โครงการแจกแจงให้เห็นระยะใกล้-ไกลของโครงการกับสถานที่ หรือ Landmark รอบๆ โครงการที่น่าสนใจตำแหน่ง GPS โดยประมาณของโครงการ = 13.749506, 100.543902

Central ชิดลม ห่างจากโครงการประมาณ 600 เมตร

CentralWorld ห่างจากโครงการประมาณ 600 เมตร

Central Embassy ห่างจากโครงการประมาณ 1.1 กม.

Big C ราชดำริ ห่างจากโครงการประมาณ 550 เมตร

ศูนย์การค้าเกษร ห่างจากโครงการประมาณ 950 เมตร

The Mercury Ville @ Chidlom ห่างจากโครงการประมาณ 950 เมตร

Siam Center ห่างจากโครงการประมาณ 1.5 กม.

Siam Paragon ห่างจากโครงการประมาณ 1.1 กม.

The Platinum Fashion Mall ห่างจากโครงการประมาณ 450 เมตร

Amarin Plaza ห่างจากโครงการประมาณ 1 กม.
ตัวอย่างโครงการใหม่ๆ ที่จะเกิดขึ้นในอนาคตบริเวณรอบๆ โครงการ คิว ชิดลม-เพชรบุรี

1. King Place Market - โครงการใหม่บริเวณใกล้แยกประตูน้ำ บนเนื้อที่ประมาณ 7 ไร่ ลักษณะโครงการเป็นศูนย์การค้า 5 ชั้น มีศูนย์อาหาร และที่จอดรถสามารถรองรับรถได้ประมาณ 1,200 กว่าคัน
2. The Market by Platinum - โครงการตลาดนัดติดแอร์ ใจกลางเมืองแห่งแรก บริเวณย่านราชประสงค์ ซึ่งประกอบด้วยร้านค้ากว่า 3,000 ร้านค้า มีสินค้าหลากหลาย ครบวงจร ที่สามารถตอบสนองความต้องการของกลุ่มลูกค้าทุกไลฟ์สไตล์ โดยโครงการดังกล่าวคาดว่าจะใช้เงินลงทุนรวมทั้งสิ้นประมาณ 8,000 ล้านบาท โดยคาดว่าจะเริ่มก่อสร้างในปี พ.ศ. 2557 แล้วเสร็จพร้อมเปิดดำเนินการได้ประมาณปี พ.ศ. 2560
3. Luxury complex by Gaysorn - โครงการ Residential and Commercial ใหม่ 40 ชั้น จาก Gaysorn ตั้งอยู่ข้างศูนย์การค้าเกษร ตรงข้าม CentralWorld บนพื้นที่กว่า 10 ไร่
4. Makkasan Project - โครงการพัฒนาที่ว่างใกล้ Airport Rail Link สถานีมักกะสัน ประกอบไปด้วย พื้นที่ 140 ไร่ สำหรับพื้นที่เชิงพาณิชย์ เฟส 1, พื้นที่ 177 ไร่ สำหรับพื้นที่เชิงพาณิชย์ เฟส 2, พื้นที่ 150 ไร่ สำหรับสวนสาธารณะ และพื้นที่ 30 ไร่ สำหรับพิพิธภัณฑ์รถไฟ
5. Expressway Head Quarters - โครงการก่อสร้างสำนักงานใหญ่การทางพิเศษแห่งประเทศไทยตั้งอยู่ระหว่างทางด่วนศรีรัช และ Airport Rail Link
6. RSU International Hospital - โครงการโรงพยาบาลนานาชาติแห่งใหม่โดย RSU Healthcare บนเนื้อที่ 6 ไร่ บริเวณใกล้ถนนเพชรบุรี คาดว่าจะแล้วเสร็จช่วงปี 2561
การเดินทางเข้า-ออกโครงการ
1. เดินทางด้วยรถยนต์
การเดินทางด้วยรถยนต์สามารถมาได้หลายเส้นทาง โดยมีเส้นทางหลักดังต่อไปนี้ค่ะ
ขาเข้าโครงการ เส้นทางที่ 1 มาจากทางด่วนขั้นที่ 1 ลงถนนเพชรบุรี

เดี๋ยวเราลองมาดูตัวอย่างการเดินทางด้วยรถยนต์ส่วนตัวจากทางด่วนขั้นที่ 1 ลงถนนเพชรบุรีกันดีกว่านะคะ

มาจากทางด่วนขั้นที่ 1 มุ่งหน้าถนนเพชรบุรี ให้ใช้ทางออกถนนเพชรบุรีค่ะ

พอลงทางด่วนมาแล้วให้ตรงไปเรื่อยๆ จะเจอสามแยกไฟแดงจุดตัดกับถนนวิทยุให้ตรงไปค่ะ

ตรงมาประมาณ 80 ม. จะเห็นธนาคารไทยพาณิชย์ สาขาชิดลม อยู่ทางซ้ายมือค่ะ

ตรงมาอีกประมาณ 400 ม. จะถึงจุดตัดกับซอยชิดลม ให้ตรงไป
(ถ้าเราเลี้ยวซ้ายก็จะเป็นซอยชิดลม สามารถตรงไปออกถนนหลังสวนได้)

ตรงมาจะเห็นอาคาร KPI แสดงว่าใกล้ถึงแล้วค่ะ ให้เตรียมชิดซ้ายได้เลยค่ะ

ถัดจากอาคาร KPI ก็จะถึงโครงการ คิว-ชิดลม-เพชรบุรี แล้วค่ะ อยู่ทางซ้ายมือ
ขาเข้าโครงการ เส้นทางที่ 2 มาจากแยกอโศก-เพชรบุรี

ขาออกโครงการ เส้นทางที่ 1 ออกไปขึ้นทางด่วนด่านเพชรบุรี

ขาออกโครงการ เส้นทางที่ 2 ออกไปแยกปทุมวัน

2. เดินทางด้วยรถไฟฟ้า
2.1 รถไฟฟ้า BTS สถานีชิดลม
เดี๋ยวเราลองมาดูตัวอย่างเส้นทางการเดินทางจากรถไฟฟ้า BTS สถานีชิดลมไปยังโครงการกันนะคะ

ลงรถไฟฟ้า BTS สถานีชิดลม ให้เดินออกตรงทางออกที่ 3 ค่ะ

เมื่อลงจากสถานีรถไฟฟ้า BTS ชิดลม ให้เลี้ยวขวาย้อนไปทางถนนชิดลมค่ะ

บรรยากาศถนนชิดลมค่ะ ซ้ายมือเป็นการไฟฟ้านครหลวง ขวามือเป็นเซ็นทรัลชิดลม

เดินเข้ามาตามถนนชิดลมแล้ว มองไปขวามือจะเป็นทางเข้าด้านข้างของเซ็นทรัลชิดลมค่ะ

บริเวณถนนชิดลมจะมีอาคารสำนักงานเป็นส่วนใหญ่ จึงทำให้คึกคักอยู่ตลอดเวลา มีพ่อค้าแม่ค้ามาขายของเรียงราย
ตลอดเส้นทาง และยังมี The 19th @ Chidlom ที่มีร้านอาหารและเครื่องดื่ม
อาทิ Starbucks Coffee , Yamagoya Ramen และ The Gallery Sushi Bar เป็นต้น

เดินมาอีกนิดก็เป็น McDonald's ที่มีบริการ Drive-thru ค่ะ เปิด 24 ชั่วโมงด้วย

ติดกันกับ Mcdonald's ก็เป็นศูนย์รักษาผู้มีบุตรยาก สถานพยาบาลเจตนินค่ะ

เดินข้ามสะพานมา ซ้ายมือเราจะเห็นท่าเรือชิดลมค่ะ เป็นการเดินทางที่สะดวกมากทางหนึ่งหากจะมาที่ตัวโครงการ
ท่าเรือชิดลมนั้นจะอยู่บริเวณใต้สะพานชิดลม เดี๋ยวเราเดินไปโครงการกันต่อเลยค่ะ เกือบจะถึงแล้ว

จากถนนชิดลมเลี้ยวซ้ายมาจะเจอ KPI TOWER โครงการของเราจะอยู่ติดกับอาคารนี้เลยค่ะ

เลย KPI TOWER มาก็ถึงโครงการแล้วค่ะ ตอนนี้เริ่มเคลียร์สถานที่แล้ว
2.2 รถไฟฟ้า Airport Rail Link - สถานีราชปรารภ
2.3 รถไฟฟ้า MRT สายสีส้ม (โครงการในอนาคต คาดว่าจะเปิดให้บริการในช่วงปี 2563 เป็นต้นไป) - สถานีราชปรารภ และสถานีประตูน้ำ
3. เดินทางด้วยเรือโดยสาร
สามารถลงเรือโดยสารคลองแสนแสบได้ที่ "ท่าเรือชิดลม" เลยค่ะ แล้วเดินเท้าต่อไปอีกประมาณ 200 เมตรก็จะถึงโครงการ

แผนที่เส้นทางเดินเรือโดยสารคลองแสนแสบ

เรือโดยสารคลองแสนแสบกำลังแล่นออกจาก "ท่าเรือชิดลม" มุ่งหน้า "ท่าเรือประตูน้ำ"
สภาพแวดล้อมใกล้เคียง

แผนที่สภาพแวดล้อมใกล้เคียงรอบๆ โครงการ
สภาพแวดล้อม เมื่อเลี้ยวซ้ายจากโครงการไปทางประตูน้ำ

เมื่อเดินไปทางด้านซ้ายจะเจอโครงการแมนฮัตตัน ชิดลม ที่อยู่ติดกัน

บรรยากาศถนนเพชรบุรีมุ่งหน้าสู่แยกประตูน้ำ

ตั้งแต่ตัวโครงการยาวมาถึงแยกประตูน้ำจะเป็นอาคารพาณิชย์หมดเลยค่ะ
มีทั้งร้านขายอาหาร ร้านขายยา ร้านสะดวกซื้อ และธนาคาร

ร้านข้าวมันไก่ประตูน้ำที่ขึ้นชื่อก็อยู่แถวนี้ด้วย เท่าที่เห็นมีอยู่ 2 ร้านใหญ่ๆ ทีมงานไปช่วงเที่ยงคนแน่นมากๆ ค่ะ

มีร้านขายขนมปัง ปอเปี๊ยะสด หมูสะเต๊ะ อยู่สุดมุมถนนบริเวณแยกประตูน้ำน่าทานมากๆ
เรียกได้ว่าอยู่แถวนี้มีอาหารให้กินกันได้ทั้งวันทั้งคืน

ถ้ามองไปอีกฝั่งก็จะเป็นห้างสรรพสินค้า เดอะพาลาเดียม เวิลด์ ช้อปปิ้งค่ะ

พอถึงแยกประตูน้ำ เราเลี้ยวซ้ายเดินมาอีกนิดหน่อยจะเจอท่าเรือประตูน้ำค่ะ
เดี๋ยวเรากลับหลังหัน ข้ามถนนไปดูอีกฝั่งกันดีกว่า

ข้ามมาปุ๊บก็จะเห็นโรงแรมโนโวเทล กรุงเทพ แพลตทินัม ประตูน้ำ มีสตาร์บัคส์อยู่ชั้นล่างด้วยค่ะ
(ห่างจากโครงการ ประมาณ 400 เมตร)

ด้านล่างของโรงแรมจะเป็นแหล่งชอปปิ้งชื่อดัง เดอะแพลตินัม แฟชั่นมอลล์ ค่ะ
มีทั้งร้านขายเสื้อผ้า ร้านอาหาร ร้านไอศกรีมให้เลือกทานหลายร้านเลย

เดินมาอีกนิดเป็นโรงแรมแกรนด์ ไดมอนด์ พลาซ่า ด้านในก็มีของขายด้วยค่ะ

บริเวณนี้เรียกได้ว่าเป็นโซนขายเสื้อผ้าราคาส่ง มีสินค้าให้เลือกเยอะมากๆ
ในภาพคือกรุงทองพลาซ่า อยู่ตรงข้ามกับเดอะแพลตินัม แฟชั่นมอลล์

นอกจากเสื้อผ้าแล้วร้านอาหาร เครื่องดื่ม ของทานเล่นต่างๆ ก็ยังมีเยอะมาก
เรียกได้ว่าไม่ต้องกังวลเรื่องอาหารการกินแน่นอนค่ะ

เดินมาอีกนิดเดียวก็จะเป็นศูนย์รวมสินค้าไอที พันธุ์ทิพย์ พลาซ่า ตอนนี้กำลังปรับปรุงด้านหน้าพอดี
(ห่างจากโครงการคิว ชิดลม-เพชรบุรี ประมาณ 750 เมตร)
สภาพแวดล้อม เมื่อเลี้ยวขวาออกจากโครงการไปทางถนนเพฃรบุรีตัดใหม่

เรามาดูทางขวาของโครงการกันบ้าง ถนนเพชรบุรีตัดใหม่มุ่งหน้าสู่แยกอโศกค่ะ

เลี้ยวขวาออกจากโครงการผ่าน KPI TOWER ข้ามสะพานลอยมาจะเจอธนาคารไทยพาณิชย์ค่ะ

ติดกันก็จะเป็นไปรษณีย์ สาขาไทยพาณิชย์

เดินไปอีกนิดหน่อยก็จะมีร้านขายของ ขายอาหาร ช่วงเที่ยงคึกคักมากๆ ค่ะ

ด้านหลังของร้านขายของตอนนี้กำลังก่อสร้างสไมล์ สแควร์ ห้างสรรพสินค้าและโรงแรมค่ะ
(ห่างจากโครงการคิว ชิดลม-ราชเทวี 350 เมตร)
ขอบคุณภาพจาก Smile Square BKK - สไมล์ สแควร์ กรุงเทพ
รูปแบบตึก และตัวโครงการโดยรวม
คิว ชิดลม-เพชรบุรี เป็นโครงการคอนโด High Rise ความสูง 42 ชั้น และชั้นลอย มีจำนวนยูนิตรวม 352 ยูนิต และร้านค้าอีก 2 ยูนิต ส่วนแปลงที่ดินโครงการมีขนาด 1-2-80.9 ไร่ ทางเข้าโครงการตั้งอยู่ติดกับถนนเพชรบุรี สะดวกทั้งการเดินทางด้วยรถยนต์และรถโดยสารสาธารณะ (รถเมล์และรถไฟฟ้า BTS สถานีชิดลม และแอร์พอร์ตลิ้งก์ สถานีราชปรารภ) รวมถึงเรือด่วนคลองแสนแสบ ท่าเรือชิดลมห่างจากโครงการ 200 เมตร ตัวโครงการมีสัดส่วนพื้นที่สำหรับจอดรถอยู่ที่ 63% โดยสามารถจอดรถยนต์ได้ที่ชั้น 2-9 ส่วนชั้นที่อยู่อาศัยเริ่มตั้งแต่ชั้น 10-39 โดยตั้งแต่ชั้น 40 เป็นต้นไปจะเป็นชั้นรวมที่ตั้งของส่วนกลางต่างๆ อย่างโซเชียลคลับ ห้องสมุด ห้องสำหรับแช่น้ำร้อนสไตล์ตุรกี ห้องซาวน่า ห้องสตีม ห้องซักรีด ฟิตเนส และสระว่ายน้ำ

ตัวโครงการ คิว ชิดลม-เพชรบุรี โดยรวมค่ะ

โมเดลจำลองโครงการเมื่อมองจากทางทิศเหนือค่ะ ตัวโครงการอยู่ริมถนนเพชรบุรีใกล้แยกประตูน้ำ

มุมมองจากทางทิศตะวันตกค่ะ ฝั่งนี้จะติดกับโครงการแมนฮัตตันที่มีความสูง 34 ชั้น

ด้านหลังโครงการค่ะ

ตัวอาคารทางทิศตะวันออก ฝั่งนี้จะติดกับอาคาร KPI ความสูง 24 ชั้น

ทางเข้า-ออกโครงการเข้าได้ทางเดียวคือทางถนนเพชรบุรีตัดใหม่ค่ะ
Floor Plan ชั้นต่างๆ ของโครงการ คิว ชิดลม-เพชรบุรี

Floor Plan ชั้นที่ 1 แสดงแปลงพื้นที่โครงการ ทางเข้าออกและตำแหน่งในจุดต่างๆ ภายในอาคารบริเวณชั้น 1

Floor Plan ชั้นที่ 10-31

Floor Plan ชั้นที่ 32 มีสวนบริเวณด้านทิศเหนือ

Floor Plan ชั้นที่ 33 มีสวนเล็กๆ สำหรับนั่งพักผ่อน

Floor Plan ชั้นที่ 34 และ 36 ชั้นนี้จะเริ่มเป็นชั้นห้อง Duplex ชั้นล่างค่ะ (ห้องแบบ Duplex จะมี 2 ชั้น)

Floor Plan ชั้นที่ 35 และ 37 ชั้นนี้จะเป็นชั้นห้อง Duplex ชั้นบนค่ะ โดยชั้น 34-37 นี้ จะมีไม้ยืนต้นขนาดกลางแซมอยู่บริเวณระเบียงด้านทิศเหนือให้ความร่มรื่นและสร้างบรรยากาศภายนอกอาคารให้สวยงามด้วยค่ะ

Floor Plan ชั้นที่ 38 เป็นชั้นล่างของห้อง Duplex เพิ่มพื้นที่สีเขียวทั้งสองฝั่งอาคาร

Floor Plan ชั้นที่ 39 เป็นชั้นบนของห้อง Duplex

Floor Plan ชั้นที่ 40 จะเป็นชั้นเริ่มต้นของส่วนกลางค่ะ ชั้นนี้จะมี Social Club, Library and Co-Working Space

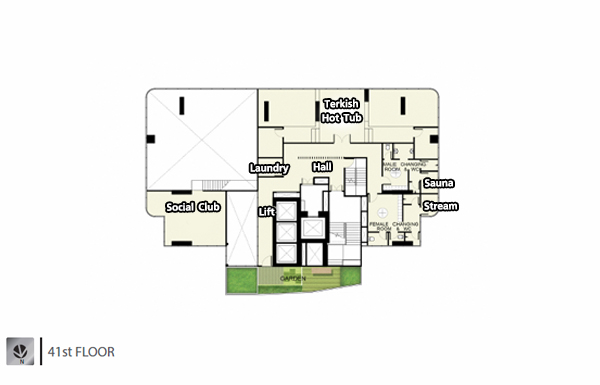
Floor Plan ชั้นที่ 41 จะมี Social Club, Laundry, Terkish Hot Tub, Sauna, Steam พร้อมห้องเปลี่ยนชุด

Floor Plan ชั้นที่ 42 เป็นสระว่ายน้ำ 360 องศา พร้อมจากุชชี่ สระตื้น และที่นั่งเล่น

Floor Plan ชั้นลอย จะเป็นที่ตั้งของ Fitness ค่ะ
ที่ตั้งโครงการคิว ชิดลม-เพชรบุรี

ที่ตั้งโครงการอยู่บนถนนเพชรบุรี
คลิกเพื่อดูภาพขยายใหญ่
ด้านหน้าโครงการ (ทิศเหนือ) อยู่ติดถนนเพชรบุรี
ด้านหลังโครงการ (ทิศใต้) อยู่ติดคลองแสนแสบ
ขวามือโครงการ (ทิศตะวันออก) อยู่ติดอาคาร KPI (สูง 24 ชั้น)
ซ้ายมือโครงการ (ทิศตะวันตก) อยู่ติดแมนฮัตตัน ชิดลม (สูง 34 ชั้น)
บรรยากาศสำนักงานขายโครงการคิว ชิดลม-เพชรบุรี

ที่ตั้งของสำนักงานขาย "Q Gallery" อยู่ริมถนนเพชรบุรี บริเวณแยกราชเทวีค่ะ คนละที่กับที่ตั้งโครงการนะคะ

บรรยากาศหน้าสำนักงานขายค่ะ

ด้านในตกแต่งสไตล์หรูหราผสมผสานกับสไตล์โมเดิร์น

ที่นั่งรองรับผู้เข้าชมห้องตัวอย่าง
ส่วนกลางและสิ่งอำนวยความสะดวก
ส่วนกลางและสิ่งอำนวยความสะดวกของโครงการมีให้พอสมควรค่ะ โดยจะไปอยู่ที่ชั้น 40, 41, 42 และชั้นลอย ส่วนกลางออกแบบโดยเน้นความหรูหรา สวยงาม และเห็นทัศนียภาพเมืองและสูงเหมือนได้สัมผัสกับวิวขอบฟ้า โดยส่วนกลางและสิ่งอำนวยความสะดวกที่ให้มาประกอบไปด้วย
- พนักงานรักษาความปลอดภัยตลอด 24 ชั่วโมง
- กล้องวงจรปิด CCTV
- ระบบ Key Card Access Control
- ที่จอดรถชั้น 2- 9
- ลิฟต์โดยสาร 3 ตัว ลิฟต์บริการ 1 ตัว
- ร้านค้า 2 ร้าน (Shop)
- ห้องเก็บขยะ (Garbage Room)
- ห้องพักจดหมาย (Mail Room)
- สวนหย่อม (Pocket Garden)
- โถงต้อนรับ (Lobby)
- โซเชียลคลับ (Social Club)
- ห้องสำหรับแช่น้ำร้อนสไตล์ตุรกี (Turkish Hot Tub )
- ห้องสมุด (Library)
- พื้นที่ทำงานร่วมกัน (Co-working Space)
- ห้องซักรีด (Laundry)
- ห้องอบไอน้ำ (Steam Room)
- ห้องซาวน่า (Sauna Room)
- ห้องออกกำลังกาย (Fitness)
- สระว่ายน้ำ (Sky Pool)
- จากุชชี่ (Jacuzzi)
- สระตื้น (Shallow Pool)
- เตียงนอนริมสระว่ายน้ำ (Pool Deck)

Sky Facilities ส่วนกลางลอยฟ้าตั้งแต่ชั้น 40 41 42 และชั้นลอยค่ะ

ภาพจำลอง Lobby ตกแต่งด้วยหินอ่อน หรูหรามีระดับ

Library and Co-working Space ออกแบบโดยได้รับแรงบันดาลใจจากห้องรับรองในเรือยอร์ช

Social Club โซนพักผ่อนและเพลิดเพลินไปกับเครื่องเล่นที่โครงการเตรียมไว้

Turkish Hot Tub ห้องสำหรับแช่น้ำร้อนสไตล์ตุรกี

ผ่อนคลายความเหนื่อยล้าด้วยการแช่น้ำร้อน

สระว่ายน้ำลอยฟ้า 360 องศา และฟิตเนสวิวพาโนรามาที่ชั้นลอย

Shallow Pool สระตื้นๆ ที่สามารถนั่งเล่น ขอจุ่มน้ำชิลล์ๆ ได้
ภาพห้องตัวอย่างและ Lay out
สำหรับห้องของโครงการนี้มีห้องให้เลือก 3 Type ด้วยกัน ซึ่งแต่ละ Type มีขนาดต่างๆ ดังนี้
1) 1 Bedroom ขนาดพื้นที่ 35 ตร.ม., 45 ตร.ม. และ 47 ตร.ม.
2) 2 Bedroom ขนาดพื้นที่ 63 ตร.ม.
3) Duplex ขนาดพื้นที่ 62 ตร.ม., 73 ตร.ม., 78 ตร.ม., 81.50 ตร.ม. และ 109.50 ตร.ม.
2) 2 Bedroom ขนาดพื้นที่ 63 ตร.ม.
3) Duplex ขนาดพื้นที่ 62 ตร.ม., 73 ตร.ม., 78 ตร.ม., 81.50 ตร.ม. และ 109.50 ตร.ม.
ภาพห้องตัวอย่างแบบ 1 Bedroom ขนาด 45 ตร.ม

Unit Plan ขนาด 45 ตร.ม.

สวยหรูมาตั้งแต่ประตูหน้าห้องเลยค่ะ พร้อมระบบรักษาความปลอดภัยด้วยระบบ Digital Door Lock ยี่ห้อ Yale

เปิดเข้ามาในห้องขวามือจะเป็นครัวค่ะ ทางโครงการให้เคาท์เตอร์ครัว ชั้นวาง ซิงค์ล้างจาน เตาไฟฟ้า และเครื่องดูดควัน

เปิดให้ดูชั้นเก็บของค่ะ สามารถเอาไว้เก็บจาน ชาม อาหารแห้ง หรือเครื่องปรุงต่างๆ ได้

ต่อกันกับเคาน์เตอร์ครัวก็จะเป็นตู้เก็บรองเท้าค่ะ ตู้นี้ทางโครงการก็ให้ด้วยเหมือนกัน

ตรงข้ามกับห้องครัวจะเป็นห้องน้ำค่ะ

เข้ามาในห้องน้ำจะตกแต่งด้วยลายหินอ่อนสวยงาม

ห้องขนาด 45 ตร.ม. ขึ้นไปจะมีอ่างอาบน้ำให้ด้วยค่ะ
และห้องน้ำนี้มีทางเข้า-ออก 2 ทาง คือจากทางครัวตอนที่เราพาเข้ามาเมื่อสักครู่และอีกทางหนึ่งคือทางห้องนอนค่ะ

ภาพนี้ถ่ายย้อนกลับออกไปทางประตูค่ะ จะเห็นว่าทางเข้าไม่ได้กว้างมาก

มาถึงโซนนั่งเล่นกันบ้าง สามารถตั้งโซฟาขนาด 4-5 ที่และโต๊ะกลางเล็กๆ ได้ค่ะ

พื้นที่โซนนั่งเล่น/รับแขกนั้นจะเชื่อมต่อกับห้องนอนแต่จะมีฉากกั้นค่ะ หากต้องความเป็นส่วนตัวก็สามารถปิดได้
หรือถ้าหากต้องการความโล่งก็เลื่อนเปิดออกได้เลย

มาถึงตัวห้องนอนกันบ้างค่ะ พื้นที่สามารถวางเตียง King Size ได้เลย
และตรงมุมห้องยังมีช่องสำหรับใส่โซฟาเอาไว้นั่งเล่นได้ค่ะ

ห้องนอนจะมีลักษณะยาวลึกลงไปจนสุดค่ะ มองจากตรงเตียงนอนต่อไปก็จะมีพื้นที่ว่างเหลืออยู่เยอะเหมือนกัน
และต่อจากนั้นก็จะเป็นจุดวางโต๊ะเครื่องแป้ง และ Walk in Closet ค่ะ

พื้นที่ Walk in Closet

ลองเปิดตู้ที่ทาโครงการบิวท์ไว้ให้ค่ะ เก็บได้เยอะพอสมควรเลย

ออกมาดูระเบียงกันค่ะ ประตูที่เปิดออกไประเบียงเป็นประตูบานเลื่อน 3 ตอน มีราวกันตกเป็นโครงเหล็กทาสีค่ะ

จะเห็นว่าจะมีหน้าต่างบานเลื่อนอีกชั้นหลังจากราวกันตก ถือว่าดีมากๆ เลยค่ะ เพราะถ้าอยากจะตากผ้าหรือนั่งเล่นก็เปิดหน้าต่างให้ลมโกรกได้ หรือถ้าอากาศร้อนมากหรือฝนตกแต่อยากนั่งชมวิวก็ปิดหน้าต่างนั่งชมวิวได้ค่ะ

ส่วนคอมเพรสเซอร์แอร์ก็อยู่ที่ระเบียงเหมือนคอนโดปกติค่ะ แต่ของคิว ชิดลม จะหันคอมเพรสเซอร์ออกไปด้านนอกและมีประตูสำหรับกันเสียง ความร้อน และกันความเย็นจากภายในออกสู่ภายนอกด้วยค่ะ
ราคาและค่าใช้จ่ายที่เกี่ยวข้องโดยประมาณ (13 ส.ค. 58)
| ตัวอย่างราคาห้องขนาด 35 ตร.ม. (1 ห้องนอน) | ||||
| ชั้น | ราคารวม (บาท) | ส่วนลด (บาท) | ราคาสุทธิ (บาท) | ราคา/ตร.ม. |
| 14 | 5,931,000 | 200,000 | 5,731,000 | 163,743 |
| 18 | 6,071,000 | 200,000 | 5,871,000 | 167,743 |
| 19 | 6,656,000 | 200,000 | 6,456,000 | 184,457 |
| ตัวอย่างราคาห้องขนาด 45 ตร.ม. (1 ห้องนอน) | ||||
| ชั้น | ราคารวม (บาท) | ส่วนลด (บาท) | ราคาสุทธิ (บาท) | ราคา/ตร.ม. |
| 19 | 7,907,000 | 300,000 | 7,607,000 | 169,044 |
| 27 | 8,267,000 | 300,000 | 7,967,000 | 177,044 |
| ตัวอย่างราคาห้องขนาด 47 ตร.ม. (1 ห้องนอน) | ||||
| ชั้น | ราคารวม (บาท) | ส่วนลด (บาท) | ราคาสุทธิ (บาท) | ราคา/ตร.ม. |
| 14 | 8,002,000 | 300,000 | 7,702,000 | 163,872 |
| ตัวอย่างราคาห้องขนาด 63 ตร.ม. (2 ห้องนอน) | ||||
| ชั้น | ราคารวม (บาท) | ส่วนลด (บาท) | ราคาสุทธิ (บาท) | ราคา/ตร.ม. |
| 11 | 10,529,000 | 400,000 | 10,129,000 | 160,778 |
| 18 | 10,970,000 | 400,000 | 10,570,000 | 167,778 |
| 27 | 11,800,000 | 400,000 | 11,400,000 | 180,952 |
| 27 | 12,089,000 | 400,000 | 11,689,000 | 185,540 |
| ตัวอย่างราคาห้องขนาด 75 ตร.ม. (Duplex) | ||||
| ชั้น | ราคารวม (บาท) | ส่วนลด (บาท) | ราคาสุทธิ (บาท) | ราคา/ตร.ม. |
| 34 | 14,718,000 | 400,000 | 14,318,000 | 183,564 |
ค่าบริการส่วนกลาง 70 บาท/ตร.ม./เดือน ชำระล่วงหน้า 1 ปี
ค่ากองทุนแรกเข้า 750 บาท/ตร.ม. ชำระครั้งเดียว
ภาพรวมโดยสรุปของโครงการ
- การเดินทางเข้าออกโครงการ - หากเป็นการเดินทางด้วยรถยนต์ส่วนตัวก็ถือว่าสะดวกค่ะ โครงการอยู่ติดกับถนนเพชรบุรีช่วงใกล้กับแยกประตูน้ำ ใกล้กับทางด่วนขั้นที่ 1 ด่านเพชรบุรี ตรงถนนเพชรบุรี เพียง 600 ม. และด่านสุขุมวิท ตรงถนนเพลินจิต เพียง 1.5 กม. นอกจากนี้ยังเชื่อมต่อกับถนนหลักใจกลางเมืองหลายๆ เส้น เช่น ถนนเพลินจิต, ถนนสุขุมวิท, ถนนพระรามที่ 4, ถนนพระราม9, ถนนสีลม ฯลฯ หากเป็นการเดินทางด้วยรถไฟฟ้าก็สะดวกเช่นกันเพราะอยู่ใกล้รถไฟฟ้า BTS สถานีชิดลม ซึ่งสถานีชิดลมนี้ก็อยู่ห่างกับ BTS สถานีสยามเพียง 1 สถานี (เชื่อมต่อกับ BTS สายสีลมที่สถานีนี้), ห่างกับ BTS สถานีอโศก 3 สถานี (เชื่อมต่อกับ MRT สายสีน้ำเงิน สถานีสุขุมวิทที่สถานีนี้), ใกล้ Airport Rail Link สถานีราชปรารภ และในอนาคตก็จะมีโครงการรถไฟฟ้า MRT สายสีส้ม ที่คาดว่าจะเปิดให้บริการได้ช่วง 2563 เป็นต้นไป มีสถานีที่อยู่ใกล้โครงการ เช่น สถานีราชปรารภและสถานีประตูน้ำ ก็จะทำให้การเดินทางสะดวกมากขึ้นไปอีก โดยรวมแล้วการเดินทางเข้าออกโครงการถือว่าดีค่ะ
- ทำเลรอบโครงการ - ทำเลรอบๆ โครงการ ณ ปัจจุบัน ส่วนมากจะเป็นอาคารพาณิชย์อยู่ทั้งด้านฝั่งโครงการ และฝั่งตรงข้ามโครงการ หากเดินไปทางซ้ายมือโครงการมุ่งหน้าไปทางแยกประตูน้ำประมาณ 100-200 ม. ก็จะมีร้านอาหารริมทาง, ร้านข้าวมันไก่ประตูน้ำ, ร้านก๋วยเตี๋ยว, 7-Eleven, วินมอเตอร์ไซค์ ฯลฯ ส่วนถ้าออกไปในระยะ 1-2 กม. แล้วถือได้ว่าอุดมสมบูรณ์ไปด้วยแหล่ง Shopping ชั้นนำ เช่น CentralWorld, Central ชิดลม, Central Embassy, Siam Paragon, สยามสแควร์, MBK, Big C ราชดำริ, The Platinum Fashion Mall ฯลฯ โดยรวมแล้วทำเลรอบโครงการถือว่าดีค่ะ ล้อมรอบไปด้วยแหล่ง Shopping กลางเมือง
- อาคารและตัวโครงการโดยรวม - เป็นคอนโด High-rise สูง 42 ชั้น และชั้นลอย จำนวน 1 อาคาร มีจำนวนยูนิตทั้ง หมด 352 ยูนิต สามารถจอดรถได้ 63% ตัวอาคารแบ่งเป็นสัดเป็นส่วนพื้นที่จอดรถจะอยู่ที่ชั้น 2-9 และที่พักอาศัยจะเป็นชั้นที่ 10-39 ส่วน Facility อยู่ที่ชั้น 40-42 และชั้นลอย ส่วนกลางของที่นี่เรามองว่าสวยงามและดูหรูหราทีเดียว อีกทั้งยังให้มาครบทั้งสวน โซเชียลคลับ สระว่ายน้ำ ห้องสำหรับแช่น้ำร้อนสไตล์ตุรกี ห้องซาวน่า ห้องสตรีม ห้องสมุดและพื้นที่ทำงานค่ะ ส่วนลิฟต์โดยสารมี 3 ตัว ลิฟต์บริการ 1 ตัว อัตราส่วนการใช้ลิฟท์อยู่ที่ 117 : 1 ถือว่าไม่แออัดค่ะ
- รูปแบบห้องและวัสดุ - ขนาดห้องที่มีให้เลือก 3 แบบหลักๆ คือ 1 ห้องนอน 2 ห้องนอน และแบบดูเพล็กซ์ ซึ่งมีขนาดต่างๆ ให้เลือกตามต้องการค่ะ โดยขนาดเริ่มต้นคือ 1 ต้องนอน 35 ตร.ม. วัสดุที่ให้มาเป็นวัสดุเกรดพรีเมียมค่ะ โดยเฉพาะห้องน้ำที่ให้มาแบบจัดเต็มมาก มีอ่างอาบน้ำ Rain Shower Shower Box อ่างล้างหน้า โถสุขภัณฑ์ ฝักบัว สวยงามและคุณภาพดี และตู้เก็บรองเท้า เคาน์เตอร์ครัว และตู้เสื้อผ้าที่บิวท์อินไว้ให้ก็แข็งแรงสวยงามค่ะ โดยรวมแล้วดูหรูหรา ส่วน Digital Door Lock ของ Yale ก็มีให้ทุกยูนิต และเครื่องปรับอากาศสำหรับ 1 ห้องนอนก็จะได้ที่ห้องนอน 1 ตัว และ ห้องนั่งเล่น 1 ตัว รวมเป็นทั้งหมด 2 ตัวค่ะ
- ราคา - ราคาเฉลี่ยต่อตารางเมตร เริ่มต้นอยู่ที่ประมาณ 157,000 บาท ถือว่าเป็นราคาที่ค่อนข้างคุ้มค่าเมื่อแลกกับทำเลใจกลางเมืองย่านชิดลม-ประตูน้ำ การเดินทางสะดวกมากๆ โดยเฉพาะรถสาธารณะ อีกทั้งยังรายล้อมด้วยห้างสรรพสินค้า แหล่งค้าส่งมากมาย นอกจากนั้นโครงการยังมอบเฟอร์นิเจอร์คุณภาพระดับพรีเมียมและส่วนกลางที่หรูหรา ไม่ว่าจะซื้อไว้เพื่ออยู่เอง หรือว่าจะซื้อเพื่อการลงทุนก็ถือว่าเป็นอีกหนึ่งโครงการที่น่าสนใจค่ะ
สถานะปัจจุบันของโครงการ (13 ส.ค. 58)
ปัจจุบันมีผู้ที่สนใจจองไปแล้วประมาณ 30% คาดว่าจะเริ่มก่อสร้างประมาณเดือนตุลาคม 2558 หากท่านใดที่สนใจโครงการ คิว ชิดลม-เพชรบุรี สามารถเข้าไปชมห้องตัวอย่างได้ที่ Q Gallery BTS ราชเทวีค่ะ
ติดต่อโครงการ โทร. 02 316 2222 หรืออ่านรายละเอียดโครงการเพิ่มเติมได้ที่ www.ananda.co.th
แท็กที่เกี่ยวข้อง
เขียนโดย
เช็คราคา.คอม
Condo Guru
พูดคุยกับกูรูได้ที่


