เยี่ยมชม-รีวิว "ศุภาลัย ซิตี้ รีสอร์ท @ ระยอง"
ฤกษ์งามยามดีของบ่ายแก่ๆ วันนี้ทีมงาน CheckRaKa.com ได้มีโอกาสออกนอกกรุงเทพเพื่อเดินทางไปยังจังหวัดชายทะเลชื่อดังอย่าง "ระยอง" ซึ่งในวันเสาร์ อาทิตย์ที่ 26-27 ตุลาคมนี้ ที่นี่จะมีงานเปิดตัวโครงการคอนโดใหม่ ทำเลใจกลางเมืองระยองอย่างโครงการ "ศุภาลัย ซิตี้ รีสอร์ท @ ระยอง" ซึ่งเมื่อพวกเราชาวทีมงาน CheckRaKa.com ทราบข่าวก็ไม่พลาดโอกาส รีบออกเดินทางเพื่อไปเยี่ยมชมสำนักงานขายใหม่เอี่ยมเพื่อเก็บภาพ และรวบรวมรายละเอียดของโครงการ "ศุภาลัย ซิตี้ รีสอร์ท @ ระยอง" มาฝากผู้อ่านกันค่ะ
บริษัท ศุภาลัย จำกัด (มหาชน) เป็นบริษัทที่อยู่ในวงการธุรกิจอสังหาริมทรัพย์มาเป็นเวลากว่า 24 ปีแล้ว (ก่อตั้ง 26 มิถุนายน 2532) ปัจจุบันเป็นบริษัทมหาชนที่จดทะเบียนในตลาดหลักทรัพย์แห่งประเทศไทย มีทุนจดทะเบียน ณ เดือนกันยายน 2556 ทั้งสิ้น 1,770 ล้านบาท (ชำระแล้ว 1,716.55 ล้านบาท) มีผลงานในวงการอสังหาริมทรัพย์ทั้งในแนวราบ (บ้านและทาวน์โฮม) และแนวดิ่ง (คอนโดมิเนียม โรงแรม และสำนักงานให้เช่า) ตั้งแต่อดีต จนถึงปัจจุบันกว่า 100 โครงการทั้งในกรุงเทพฯ และต่างจังหวัดในเมืองใหญ่ทั่วประเทศ เช่น เชียงใหม่ ภูเก็ต หาดใหญ่ ชลบุรี พัทยา ระยอง ขอนแก่น และอุดรธานี เป็นต้น
โครงการ "ศุภาลัย ซิตี้ รีสอร์ท @ ระยอง" ตั้งอยู่ที่บริเวณถนนอดุลย์ธรรมประภาส ตำบลเชิงเนิน อำเภอเมือง จังหวัดระยอง ตามแผนที่ด้านล่าง เป็นทำเลที่อยู่ห่างจากถนนสุขุมวิทเพียง 1.5 กิโลเมตร และยังใกล้กับถนนเลียบชายฝั่งของหาดแสงจันทร์ในระยะทางเพียง 2 กิโลเมตรเท่านั้น

แผนที่โครงการ "ศุภาลัย ซิตี้ รีสอร์ท @ ระยอง"

แผนที่โครงการเพือให้เห็นพิกัดความใกล้ หรือไกลจากแต่ละสถานที่กันชัดๆ
การเดินทาง
สามารถเดินทางเข้าออกโครงการได้สะดวก ไม่ว่าจะใช้รถยนต์ส่วนตัวหรือใช้รถสาธารณะเนื่องจากโครงการตั้งอยู่บนถนนอดุลย์ธรรมประภาส เป็นถนนเส้นหลักในตำบลเชิงเนิน ใช้เป็นทางผ่านเพื่อไปลงถนนเลียบชายฝั่งได้ ตัวโครงการอยู่ห่างจากถนนสุขุมวิทเพียง 1.5 กม.
รถสาธารณะ
หากเดินทางด้วยรถสาธารณะจากกรุงเทพฯ สามารถนั่งรถโดยสารธรรมดา และรถโดยสารปรับอากาศของบริษัท ขนส่ง จำกัด สายกรุงเทพฯ-ระยอง หรือจะเลือกใช้บริการรถตู้จากอนุสาวรีย์มาก็ค่อนข้างสะดวกและรวดเร็ว ส่วนการเดินทางภายในจังหวัดที่นิยมก็จะเป็นรถสองแถว และรถมอเตอร์ไซค์ โดยรถสองแถวนั้นจะมีวิ่งในทุกเส้นทางหลักรอบๆ ตำบลเชิงเนิน รวมถึงถนนอดุลย์ธรรมประภาสผ่านหน้าโครงการด้วย

มีรถสาธารณะให้บริการรอบเมือง เช่น รถปรับอากาศ บขส., รถตู้, รถสองแถว, มอเตอร์ไซค์
รถยนต์
หากมาด้วยรถยนต์ส่วนตัวจากกรุงเทพ สามารถใช้เส้นมอเตอร์เวย์ หรือทางพิเศษบูรพาวิถี (ทางยกระดับบางนา-ตราด) แล้วเข้าเส้นบายพาส ทางหลวงหมายเลข 7 (เลี่ยงเมืองชลบุรี) ไปตามป้ายบอกทางจังหวัดระยองเรื่อยๆ ก็จะเข้าทางหลวงหมายเลข 36 (บายพาสพัทยา-ระยอง) สู่จังหวัดระยอง (ใช้เวลาประมาณ 2 ชั่วโมงครึ่ง ถึง 3 ชั่วโมง)

แผนที่การเดินทางทางรถยนต์จากกรุงเทพสู่อำเภอเมืองระยอง

พอเข้ามาถึงตัวอำเภอเมืองระยองแล้ว ท่านสามารถใช้เส้นทางเดินทางมาโครงการทางรถยนต์ส่วนตัวได้หลายเส้นทาง เช่น
เส้นทางที่ 1 (จากกรุงเทพทางบายพาส-ทางหลวง36) - ให้เลี้ยวขวาตรงสี่แยกเกาะลอย จากนั้นให้ตรงไปเรื่อยๆ ประมาณ 1.6 กม. เลี้ยวขวาตรงสี่แยกจันทอุดม แล้วชิดซ้ายทันที เพื่อเลี้ยวซ้ายเข้าซอยแรก ชื่อว่า ซ.นครระยอง 50 (ภักดีบริรักษ์) เข้าซอยมาประมาณ 300 ม. ให้เลี้ยวขวาเข้าถนนราษฎร์บำรุง ตรงมา 75 ม. ให้เลี้ยวซ้ายเข้าถนนอดุลย์ธรรมประภาส ตรงมาอีกประมาณ 1.5 กม. ก็จะถึงสี่แยกบางจาก โครงการจะอยู่ตรงแยกพอดี
เส้นทางที่ 2 (มาจากเส้นสุขุมวิทกรุงเทพ-สัตหีบ-บางฉาง) - ตรงมาเรื่อยๆ ผ่านสี่แยกจันทอุดม (โรงพยาบาลระยองจะอยู่ทางซ้ายมือ) ผ่านแยกมาประมาณ 450 ม. ให้ U-Turn กลับมาสี่แยกจันทอุดม เลี้ยวซ้ายซอยแรก ชื่อว่า ซ.นครระยอง 50 (ภักดีบริรักษ์) เข้าซอยมาประมาณ 300 ม. ให้เลี้ยวขวาเข้าถนนราษฎร์บำรุง ตรงมา 75 ม. ให้เลี้ยวซ้ายเข้าถนนอดุลย์ธรรมประภาส ตรงมาอีกประมาณ 1.5 กม. ก็จะถึงสี่แยกบางจาก โครงการจะอยู่ตรงแยกพอดี
เส้นทางที่ 3 (มาจากถนนเลียบชายฝั่ง) - พอถึงสี่แยกบางจาก ให้ U-Turn ที่สี่แยก พอ U-Turn มาก็ชิดซ้ายเข้าโครงการได้เลย
เส้นทางที่ 4 (มาเส้นสุขุมวิทจากบ้านเพ-จันทบุรี) - เลี้ยวซ้ายเข้าถนนตากสินมหาราช ตรงมาเรื่อยๆประมาณ 1.6 กม. ให้เลี้ยวขวาเข้าถนนบางจาก ถนนไปอีกประมาณ 700 ม. จะถึงสี่แยกบางจากให้เลี้ยวซ้าย โครงการจะอยู่ทางซ้ายมือพอดี
ภาพตัวอย่างการเดินทางจากทางจากกรุงเทพทางบายพาส-ทางหลวง36 (เส้นทางที่ 1 ตามแผนที่ข้างบน)

จากกรุงเทพฯให้ไปตามป้ายบอกทางไประยองตลอดทางจนเข้าทางหลวง 36

ตรงไปเรื่อยๆ ประมาณ 14 กม. จะเริ่มเข้าเขตจังหวัดระยอง

ตรงไปประมาณ 29 กม. จะเห็น Makro อยู่ทางซ้าย

ตรงไปอีก 450 ม.จะเห็น Big C อยู่ทางซ้าย

ตรงไปอีกประมาณ 500 ม. ถึงสี่แยกเกาะลอย ให้เลี้ยวขวา

ตรงไปเรื่อยๆอีกประมาณ 1.6 กม.

ถึงสี่แยกจันทอุดม ให้เลี้ยวขวา

เลี้ยวซ้ายเข้าซอยแรก ชื่อว่า ซ.นครระยอง 50 (ภักดีบริรักษ์)

เข้าซอยมาประมาณ 300 ม. ให้เลี้ยวขวาเข้าถนนราษฎร์บำรุง

ตรงมา 75 ม. ให้เลี้ยวซ้ายเข้าถนนอดุลย์ธรรมประภาส

ตรงทางถนนอดุลย์ธรรมประภาสมาอีกประมาณ 1.5 กม.

ถึงสี่แยกบางจาก โครงการจะอยู่ตรงแยกพอดี
สภาพแวดล้อมใกล้เคียง
บรรยากาศรอบๆ โครงการนั้น ค่อนข้างสงบ โครงการตั้งอยู่บริเวณสี่แยกบางจาก มีรถผ่านอยู่เรื่อยๆ แต่ไม่ถึงกับจอแจ มีอาหารตามสั่ง, อาหารอีสาน, ร้านกาแฟ อยู่รอบๆ โครงการ เดินไปทานได้ง่ายมาก นอกจากนั้นยังมีอาคารพาณิชย์ขายของชำ และซักอบรีดตั้งอยู่ใกล้ๆ โครงการ ถ้าตรงไปทางถนนอดุลย์ธรรมประภาสอีกประมาณ 550 ม. ก็จะเจอ 7-Eleven และร้านอาหารริมทาง ส่วนถ้าไปทางโซนถนนตากสินมหาราชประมาณ 650 ม. โซนทางนี้จะค่อนข้างคึกคักด้วยของกิน และสิ่งอำนวยความสะดวกเนื่องจากอยู่ใกล้กับวิทยาลัยเทคนิคระยอง และโรงเรียนระยองวิทยาคม มี 7-Eleven, Lotus Express, อาคารพาณิชย์ และร้านอินเทอร์เน็ต

แผนที่แสดงแปลงที่ดินโครงการ และสภาพแวดล้อมใกล้เคียงโครงการ

บรรยากาศบริเวณสี่แยกบางจาก โครงการจะอยู่ทางซ้ายมือ หากมาจากถนนสุขุมวิท

อีกมุมหากมาจากถนนเลียบชายฝั่ง

โครงการใกล้ร้านอาหาร และอาคารพาณิชย์
รูปแบบตึก และตัวโครงการโดยรวม
โครงการมีขนาดพื้นที่รวม 4-1-88 ไร่ หน้าตาของแปลงที่ดินมีลักษณะคล้ายสี่เหลี่ยมคางหมูตั้งขนานไปกับแนวถนนช่วงบริเวณหัวมุมถนนบางจากตัดกับถนนอดุลย์ธรรมประภาสซึ่งเป็นสี่แยกขนาดย่อมที่อยู่ห่างจากถนนสุขุมวิท และหาดแสงจันท์เพียง 1.5-2 กม. ตัวอาคารเป็นอาคารแบบ High Rise สูง 23 ชั้น (รวมดาดฟ้า) จำนวน 1 อาคาร มียูนิตรวม 525 ยูนิต แบ่งเป็นยูนิตเพื่อการพักอาศัย 520 ยูนิต และเป็นยูนิตร้านค้าที่ขั้นล่างสุดอีก 5 ยูนิต สำหรับตัวอาคารมีรูปทรงคล้ายสี่เหลี่ยมผืนผ้าที่ใช้สีแดงเป็นแนวเส้น และตกแต่งโดยได้รับแรงบัลดาลใจจากปะการังแดง จัดวางตำแหน่งตัวอาคารไว้กลางแปลงพื้นที่ และกำหนดให้ถนนในโครงการวิ่งเป็นวงกลมล้อมรอบตัวตึก ส่วนภายในตึกแบ่งยูนิตพักอาศัยออกเป็นสองฝั่งให้ด้านนึงหันหน้าออกไปทางด้านทิศเหนือ และอีกด้านหันหน้าไปทางทิศใต้เพื่อหลีกเลี่ยงความร้อนจากแดดตอนเช้าของทิศตะวันออกและแดดในช่วงบ่ายจากทิศตะวันตก

ภาพจำลองของโครงการจะเห็นวิวด้านทะเลจากทางด้านหลัง (อาคารฝั่งทิศใต้)

โมเดลโครงการฝั่งทิศเหนือ ยูนิตฝั่งนี้รับวิวเมืองและเห็นวิวสีเขียวจากสวนสาธารณะอย่างสวนศรีเมือง

โมเดลโครงการฝั่งทิศใต้ ซึ่งที่ดินแปลงข้างๆ จะขึ้นเป็นหมู่บ้านเดี่ยวของทางศุภาลัยเช่นกัน

โมเดลโครงการฝั่งทิศตะวันออก เห็นทางเข้า-ออกหลักของโครงการที่อยู่ติดด้านถนนอดุลย์ธรรมประภาส

โมเดลโครงการฝั่งทิศตะวันตก ที่ดินฝั่งนี้เป็นที่อยู่อาศัยของชาวบ้านในท้องที่

มาสเตอร์แพลนของโครงการ

Floor Plan ชั้น 3-22 แสดงให้เห็นการจัดวางยูนิตทั้งสองฝั่งที่หันหน้าไปทางทิศเหนือและทิศใต้ของตัวอาคาร

Floor Plan ชั้น 23 (ดาดฟ้า) จัดเป็น Roof Top Garden ประกอบไปด้วย SKY LOUNGE และลานอเนกประสงค์

ที่ตั้งของสำนักงานขายอยู่ตรงหัวมุมถนนบริเวณสี่แยกซึ่งสร้างอยู่บนที่ดินจริงของตัวโครงการ
ส่วนนี้จะกลายเป็นที่จอดรถ และถนนในโครงการเมื่อสำนักงานขายนี้รื้อออก

ทางเข้า-ออกของสำนักงานขายในปัจจุบันคาดว่าน่าจะเป็นทางเข้า-ออกหลักของโครงการในอนาคต

แปลงที่ดินจริงของโครงการ ณ ตอนนี้สร้างเป็นสำนักงานขายและที่จอดรถ
โดยหลังรั้วด้านขวาของรูปกำลังทำการก่อสร้างโครงการบ้านเดี่ยวของทางศุภาลัยเช่นกัน
ส่วนกลางและสิ่งอำนวยความสะดวก
- สระว่ายน้ำระบบเกลือ 1 สระ ขนาด 8x18 เมตร มีพื้นที่ส่วนน้ำลึกและน้ำตื้น ที่บริเวณชั้น 1
- ห้องออกกำลังกาย Fitness ที่บริเวณชั้น 1
- Sky Lounge บนชั้นดาดฟ้า
- Roof Garden บนชั้นดาดฟ้า
- Lobby โอ่โถงตกแต่งหรูหราตามคอนเซปต์ที่ได้รับแรงบัลดาลใจจากปะการังแดง
- ที่จอรถรวม 40%
- พื้นที่สีเขียวกว่า 2,000 ตารางเมตร
- พื้นที่เปิดโล่ง 75%
- เจ้าหน้าที่รักษาความปลอดภัย ระบบรักษาความปลอดภัย Finger Scan พร้อมกล้องวงจรปิด CCTV ตลอด 24 ชั่วโมง
- ระบบป้องกันอัคคีภัย Smoke & Heat Detector และ Fire Alarm
- ระบบเชื่อมต่ออินเทอร์เน็ตแบบ Hi-Speed Internet Broadband
- ระบบเสาอากาศทีวีรวม และเคเบิ้ลทีวี

ภาพจำลอง Lobby โครงการโอ่โถงและหรูหรา

ภาพจำลองพื้นที่สันทนาการบริเวณ Roof Top Garden

Model จำลองแสดงพื้นที่ Sky Lounge & Roof Top Garden บนชั้นดาดฟ้า (ชั้น23)

ภาพจำลองสระว่ายน้ำระบบเกลือและห้อง Fitness ที่บริเวณชั้น 1 ตกแต่งคล้ายน้ำตกจำลอง
พร้อมให้ความเป็นส่วนตัวด้วยรั้วไม้ระแนง และแนวต้นไม้สีเขียว

ภาพ Model โครงการแสดงตำแหน่งของสระว่ายน้ำและห้องฟิตเนสที่ตั้งอยู่บริเวณชั้น 1
ภาพห้องตัวอย่างและ Lay Out
โครงการมีห้อง 3 ขนาดดังนี้
1) ห้องสตูดิโอ - เนื้อที่ 32.50-33.50 ตร.ม. มี 3 แบบดังนี้
- Rayong Suite พื้นที่ 32.50 ตร.ม. (คลิกเพื่อดู Lay Out)
- Rayong Suite (s) พื้นที่ 32.50 ตร.ม. (คลิกเพื่อดู Lay Out)
- Rayong Suite (ex) พื้นที่ 33.50 ตร.ม. (คลิกเพื่อดู Lay Out)
2) ห้องแบบ 1 BEDROOM - มี 3 แบบดังนี้
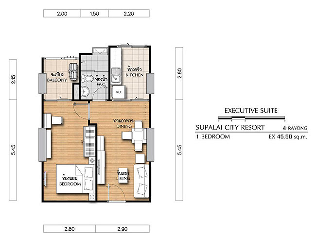
- EXECUTIVE SUITE - พื้นที่ 45.50 ตร.ม. (คลิกเพื่อดู Lay Out)
- EXECUTIVE SUITE (s) - พื้นที่ 48.50 ตร.ม. (คลิกเพื่อดู Lay Out)
- DELUXE SUITE - พื้นที่ 53.00 ตร.ม. (คลิกเพื่อดู Lay Out)
3) ห้องแบบ 2 BEDROOM - มี 1 แบบ
- FAMILY SUITE - พื้นที่ 62.00 ตร.ม. (คลิกเพื่อดู Lay Out)
สำหรับห้องตัวอย่างที่ทางโครงการสร้างโชว์ในสำนักงานขายมีด้วยกันอยู่ 2 ขนาด คือห้องแบบสตูดิโอ และ 1 BEDROOM
ห้องตัวอย่างแบบที่ 1 ห้องสตูดิโอ "RAYONG SUITE" ขนาดพื้นที่ห้อง 32.50 ตร.ม.

ภาพแปลนห้องตัวอย่างแบบ STUDIO หน้ากว้าง 3.75 เมตร

ภาพมุมกว้างของห้องสตูดิโอที่ทางโครงการตกแต่งห้องพร้อมอยู่ตามที่แสดงไว้ในห้องตัวอย่างเลย
โดยเฟอร์นิเจอร์ที่โครงการเลือกใช้เป็นแบรนด์ของ STARMARK

แยกสองมุมอย่างมุมทานอาหารที่โครงการจัดโต๊ะขนาด 2 ที่วางชิดผนังซ้ายมือ และส่วนรับแขกกับโซฟาขนาดกลาง
พร้อมโต๊ะกลาง ส่วนตู้บิ้วท์อินน์สีขาวข้างโซฟาคือตู้เก็บรองเท้าขนาดย่อม

ถัดเข้ามาเป็นส่วนที่นอนจัดวางเตียงคู่ขนาด Queen Size พร้อมตู้หัวเตียงวางโคมไฟฝั่งขวา และบิ้วท์อินตู้เสื้อผ้า 1 ตู้ทางซ้ายมือ ห้องแบบสตูดิโอแถมเครื่องปรับอากาศ LG ขนาด 18,000 BTU ติดผนังด้านข้างก่อนแบ่งพื้นที่ครัวด้วยประตูบานเลื่อนออกจากส่วนพื้นที่ที่ต้องการใช้แอร์เพื่อช่วยประหยัดไฟ ซึ่งเป็นสไตล์เอกลักษณ์ของแปลนห้องจากศุภาลัย

ปลายเตียงเหลือระยะกำลังดีเลือกแขวน TV จอแบนติดผนัง และจัดวางเฟอร์นิเจอร์เป็นตู้วางของพร้อมลิ้นชักเ
และโต๊ะเครื่องแป้งบิ้วท์อินน์ไว้ให้นั่งแต่งตัว (ห้องจริงจะไม่มีกระจกเปิดโล่งแบบนี้นะคะ จะเป็นกำแพงทึบหมด)

ถัดเข้ามาเป็นส่วนครัวขนาดประมาณ 2.20 x 2.60 ตารางเมตร และส่วนระเบียงที่ถูกแยกออกจากส่วนห้องนอน
ด้วยประตูบานเลื่อนสองชั้น ทำครัวหนักๆ ได้สบายโดยไม่ต้องกังวลเรื่องกลิ่น เพราะสามารถเปิดประตูบานเลื่อน
ตรงระเบียงระบายอากาศได้ โดยส่วนครัวทางโครงการจัดเคาน์เตอร์ครัว
พร้อมอ่างล้างจานขนาด 1 หลุมมาให้ ส่วนเตาไม่แถมต้องซื้อหามาติดตั้งเพิ่มกันเอง

ส่วนสุดท้ายของห้องตัวอย่างแบบสตูดิโอ คือห้องน้ำซึ่งแบ่งพื้นที่การใช้งานแยกส่วนเปียก ส่วนแห้ง ด้วยฉากกั้นอาบน้ำกระจกนิรภัย ซึ่งแถมเครื่องทำน้ำอุ่นของ LG ให้เรียบร้อย ส่วนสุขภัณฑ์ทั้งหมดในห้องน้ำเลือกใช้ของ COTTO
ห้องตัวอย่างแบบที่ 2 คือห้อง 1 BEDROOM "EXECUTIVE SUITE" ขนาดพื้นที่ห้อง45.50 ตร.ม.

ภาพแปลนห้องตัวอย่างแบบ 1 BEDROOM

ส่วนแรกเริ่มด้วยภาพมุมกว้างของห้อง 1 BEDROOM ที่จัดส่วนรับแขกด้วยโซฟาขนาด 3 ที่นั่ง
พร้อมโต๊ะกลางสีเหลี่ยมผืนผ้า ระยะห่างให้นั่งดูทีวีกันสบายๆ

อีกมุมนึงจากด้านหน้าห้องที่ฝั่งตรงข้ามโซฟานั่งเล่นจัดเฟอร์นิเจอร์บิ้วท์อินน์เป็นตู้วางทีวีพร้อมลิ้นชัก และช่องใส่ของกระจุกกระจิก ด้านบนเป็นตู้ลอยติดผนังให้ใช้วางของโชว์หรือกล่องดีวีดีก็เก๋ดี ส่วนตู้ด้านข้างที่สูงพอๆ กับทีวีเป็นตู้ใส่รองเท้า ภาพมุมนี้จะมองเห็นการแบ่งพื้นที่การใช้งานในส่วนต่างๆ ของห้องแบบ 1 BEDROOM ในฝั่งแรกได้ทั้งห้อง

แยกส่วนภาพให้เห็นกันชัดๆ กับบิ้วท์อินน์ชั้นวางทีวี ชั้นวางของ ตู้วางรองเท้า และส่วนทานข้าวที่อยู่ถัดไปจากโซนห้องรับแขก โครงการเค้าจัดโต๊ะทานข้าวขนาดสองที่นั่งวางชิดผนังมาให้ก่อนเถิบเข้าไปในส่วนครัว

ภาพมุมนี้เห็นส่วนครัวที่แบ่งพื้นที่ด้วยประตูบานเลื่อนออกจากพื้นที่ในส่วนที่ต้องใช้แอร์ (แถมแอร์ LG 15,000 BTU)
โดยในห้องครัวมีกระจกบานเลื่อนขนาดใหญ่ให้เปิดรับลมหรือระบายกลิ่นเวลาทำกับข้าวได้ ทางขวามือคือห้องน้ำ
และประตูทางเข้าห้องนอน ซึ่งระเบียงของห้องแบบ 1 BEDROOM ห้องนี้จะอยู่ในส่วนห้องนอน

มุมภาพส่วนครัวแบบชัดๆ เคาน์เตอร์ครัว และตู้ลอยติดผนังของห้อง 1 BEDROOM จะมีขนาดยาวกว่าห้องสตูดิโอ
ตามขนาดของครัวที่มียาวกว่า (ขนาดครัว 2.20 X 2.80 ตารางเมตร)

ถัดมาจากส่วนห้องครัวคือห้องน้ำของห้องแบบ 1 BEDROOM ตกแต่ง
และใช้สุขภัณฑ์แบบเดียวกับห้องสตูดิโอแต่ขนาดห้องจะใหญ่กว่านิดหน่อย

ส่วนพื้นที่ในห้องนอนของห้องนี้จะมีระเบียงขนาดเกือบจะเป็นสี่เหลี่ยมจตุรัสที่แยกออกจากพื้นที่ส่วนห้องนอน
ด้วยประตูเลื่อนอยู่ทางซ้ายมือ โดยภาพขวามือคือมุมมองเมื่อเปิดประตู
และเดินเข้ามาในห้องนอนที่มี Built-in โต๊ะเครื่องแป้ง และชั้นติดผนังสำหรับวางของ

ส่วนอีกด้านของห้องนอนจัดวางเตียงตู่ขนาด Queen Size พร้อมโต๊ะข้างเตียงขนาดเล็กให้ทั้งสองฝั่ง
แถมด้วยตู้เสื้อผ้าบิ้วท์อินน์ใบใหญ่สองบานเลื่อนมาให้อีกหนึ่งใบ

สุดท้ายเป็นรูปถ่ายมุมมองที่ย้อนกลับเข้าไปในห้องนอน ซึ่งจะเห็นว่าห้องนี้รับแสงโดยตรงจากทางระเบียง และพื้นที่ส่วนปลายเตียงซึ่งมีขนาดค่อนข้างจำกัด ทำให้ทางโครงการต้องจัดทีวี LCD จอแบนติดกับผนัง
ราคาและค่าใช้จ่ายที่เกี่ยวข้องโดยประมาณ (ณ เดือนตุลาคม 2556)
ราคาเริ่มต้น
- ห้องแบบสตูดิโอราคาเริ่มต้นที่ 1.2 ล้านบาท
- ห้องแบบ 1 BEDROOM ราคาเริ่มต้นที่ 1.6 ล้านบาท
- ห้องแบบ 2 BEDROOM ราคาเริ่มต้นที่ 2.3 ล้านบาท
Promotion และส่วนลดเบื้องต้น
- ฟรี แอร์ วอลเปเปอร์ ชุดเฟอร์นิเจอร์ครัว เครื่องทำน้ำอุ่น และฉากกั้นอาบน้ำแบบกระจกนิรภัย
- พิเศษ Your Free Choice ให้คุณมีสิทธิ์เลือกไม่บังคับ เลือกรับเฟอร์นิเจอร์ครบชุดจาก STARMARK (ตามห้องตัวอย่าง) + ส่วนลด หรือรับส่วนลดพิเศษ 2 เท่า มูลค่า 160,000 - 300,000 บาท (เป็นไปตามเงื่อนไขของทางโครงการ)
เงินจอง 10,000 บาททุกแบบห้อง
เงินทำสัญญา (ระยะเวลา 15 วันหลังจากจอง)
- ห้องแบบสตูดิโอ 59,000 บาท
- ห้องแบบ 1 BEDROOM 59,000 บาท
- ห้องแบบ 2 BEDROOM 99,000 บาท
เงินผ่อนดาวน์
- ห้องแบบสตูดิโอ 2,900 บาท ระยะเวลา 30 งวด
- ห้องแบบ 1 BEDROOM 5,900 บาท ระยะเวลา 30 งวด
- ห้องแบบ 2 BEDROOM 9,900 บาท ระยะเวลา 30 งวด
โครงการนี้เหมาะกับใคร
อาจจะต้องพิจารณากัน 2 มุมมอง คือ (ก) สำหรับคนที่อยู่ หรือทำงานบริเวณระยองอยู่แล้ว และ (ข) สำหรับคนที่ไม่ได้อยู่ หรือทำงานบริเวณระยองเลย สำหรับคนกลุ่มแรก โครงการนี้ถือว่าอยู่ในย่านที่กำลังดี ไปตัวเมืองระยองก็ได้ บ้านฉางก็ไม่ไกล (ห่างกันประมาณ 27 กม.) มาบตาพุดก็ขับรถสบายๆ (ห่างกันประมาณ 20 กม.) หรือจะลงทะเลก็ได้ ห่างจากถนนใหญ่สุขุมวิทประมาณ 1.5 ก.ม. ดังนั้น ด้วยราคาที่ไม่แพงจนเกินไป (เริ่มต้น 1.2 ล้านบาท) ประกอบกับโลเกชั่นที่ใช้ได้ โครงการนี้จึงน่าจะเหมาะสำหรับคนที่มีบ้านอยู่ในระยองอยู่แล้ว แต่สนใจอยากมีคอนโดในระยองไว้สักหนึ่งห้องเมื่อเริ่มต้นมีครอบครัว หรือเป็นบ้านที่สอง หรือปล่อยเช่า หรือสำหรับคนที่ทำงานอยู่ในแถบระยองอยู่แล้ว และเช่าอพาร์ตเมนท์อยู่ ก็อาจคิดเปลี่ยนจากจ่ายค่าเช่าเป็นจ่ายเงินดาวน์คอนโดแทนด้วยจำนวนเงินดาวน์แต่ละงวดที่พอจะเทียบเคียงได้กับค่าเช่า (เริ่มต้นที่ 2,900 บาทต่องวด) และสำหรับคนกลุ่มสองที่ไม่ได้อยู่ หรือทำงานแถบจังหวัดระยอง ตามที่พูดมาแล้วว่าทำเลโครงการนี้ถือว่าอยู่ในย่านที่กำลังดี และสำหรับห้องที่ไม่เตี้ยจนเกินไปก็สามารถมองเห็นชายหาดได้ (โครงการห่างจากชายหาดประมาณ 1.8 กม.) ดังนั้น หากใครที่สนใจอยากมีคอนโดตากอากาศที่ราคาโอเค และไม่ไกลจากกรุงเทพฯ มาก และไม่ใช่พัทยา หรือหัวหิน คอนโดนี้ก็เป็นอีกทางเลือกหนึ่งที่น่าสนใจ
สถานะปัจจุบันของโครงการ (ตุลาคม 2556)
โครงการศุภาลัย ซิตี้ รีสอร์ท @ ระยอง จะเริ่มก่อสร้างประมาณเดือน ก.ค. 2557 โดยคาดว่าจะแล้วเสร็จเดือน ต.ค 2559 ปัจจุบันตอนนี้อยู่ระหว่างดำเนินการขอใบอนุญาตสิ่งแวดล้อม (EIA) โดยอีกเพียงไม่กี่วันนี้ทางศุภาลัยกำลังจะจัดงานเปิดตัวโครงการอย่างเป็นทางการในวันเสาร์และอาทิตย์ที่ 26-27 ตุลาคม 2556 นี้ ณ สำนักงานขายที่ก่อสร้างเรียบร้อยบนสถานที่ก่อสร้างโครงการจริง ผู้ที่สนใจสามารถเข้าเยี่ยมชมห้องตัวอย่างพร้อมรับโปรโมชั่นตลอดจนเงื่อนไขพิเศษจากทางโครงการได้เลยค่ะ
สอบถามข้อมูลเพิ่มเติมโทร. 038-612-111
เขียนโดย
เช็คราคา.คอม
Condo Guru
พูดคุยกับกูรูได้ที่
